$4,950 - 259 S Avenue 54 # 1/2, Los Angeles

  • 4Beds
  • 4Baths
  • 1,900SQ. Feet
  • 0.20Acres

Los Angeles Home For Sale

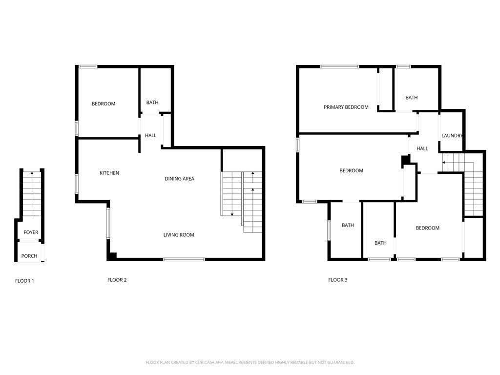
Brand New Luxury Townhome in the heart of Highland Park. Welcome to 259 ½ Avenue 54, a beautifully designed tri-level residence featuring 4 bedrooms and 4 bathrooms with modern finishes and thoughtfully designed living spaces throughout. Enter into a light-filled foyer and make your way to the main living level, where an expansive open-concept layout awaits. The living and dining areas feature soaring ceilings, wide-plank white oak flooring, custom railings, and abundant natural light. The chef’s kitchen is the centerpiece of the living area, complete with a large island, sleek white oak cabinetry, quartz countertops, and a full suite of brand-new stainless steel appliances, including refrigerator, range, dishwasher, and microwave. This level also includes a private bedroom and full bathroom ideal for guests, a home office, or flexible living. The upper level offers three spacious bedrooms, each with its own en-suite bathroom for maximum privacy and comfort, along with a conveniently located laundry area with washer and dryer. Designer finishes continue throughout, including spa-inspired bathrooms with modern vanities, premium tile, recessed lighting, and matte black hardware. Additional features include central heating and A/C, solar panels huge savings on energy bills, EV charger readiness, one dedicated garage parking space, and secure entry. Ideally located in one of Northeast LA’s most sought-after neighborhoods, you’re just moments from York Boulevard and Figueroa Street’s vibrant dining, shopping, and café scene including Highland Park Bowl, Kitchen Mouse, Café de Leche, and Hippo. With easy access to the Metro Gold Line, commuting to Downtown LA, Pasadena, or beyond is effortless.A rare opportunity to be the first to live in a brand-new, thoughtfully designed home in a prime Highland Park location.

Sales Agent

Sam Smith
  • Sam Smith
  • San Clemente Realtor ®
  • Phone: 949-204-5110
  • Cell: 949-204-5110
  • Contact Agent Now

Amenities

  • UtilitiesElectricity Connected, Sewer Connected, Water Connected, Gardener
  • Parking Spaces2
  • ParkingAssigned, Garage
  • # of Garages2
  • GaragesAssigned, Garage
  • ViewCity Lights, Hills, Neighborhood
  • PoolNone
  • SecurityGated Community

School Information

  • DistrictLos Angeles Unified

Essential Information

  • MLS® #OC26066594
  • Price$4,950
  • Bedrooms4
  • Bathrooms4.00
  • Full Baths4
  • Square Footage1,900
  • Acres0.20
  • Year Built2025
  • TypeResidential Lease
  • Sub-TypeTownhouse
  • StyleContemporary
  • StatusActive
  • Listing AgentDrew Dunn
  • Listing OfficeFour Brothers Real Estate, Inc.

Exterior

  • ExteriorDrywall, Frame, Stucco
  • Lot DescriptionZeroToOneUnitAcre, Paved, Sprinkler System
  • RoofComposition
  • ConstructionDrywall, Frame, Stucco
  • FoundationSlab

Additional Information

  • Date ListedMarch 27th, 2026
  • Days on Market20
  • Short SaleN
  • RE / Bank OwnedN

Community Information

  • Address259 S Avenue 54 # 1/2
  • Area632 - Highland Park
  • CityLos Angeles
  • CountyLos Angeles
  • Zip Code90042

Interior

  • InteriorLaminate, Wood
  • Interior FeaturesBalcony, Eat-in Kitchen, Quartz Counters, Bedroom on Main Level, Main Level Primary
  • AppliancesDishwasher, Electric Cooktop, Electric Oven, Electric Range, Disposal, Microwave, Refrigerator, Vented Exhaust Fan, Dryer, Washer
  • HeatingCentral
  • CoolingCentral Air
  • FireplacesNone
  • # of Stories3
  • StoriesThree Or More

Similar Type Properties to OC26066594, 259 S Avenue 54 # 1/2, Los Angeles

Back to Results

Los Angeles 257 S Avenue 54 # 1/4

$4,950
Los Angeles,
4 Beds
5 Baths
2,005 SqFt
20 Days On Market
Community:

Los Angeles 649 W 92nd Street

$4,950
Los Angeles,
5 Beds
3 Baths
1,588 SqFt
254 Days On Market
Community:

Los Angeles 1411 N Tremont Street # 3

$3,995
Los Angeles,
3 Beds
3 Baths
2,400 SqFt
1 Days On Market
Community:

Los Angeles 1022 S Cloverdale Avenue

$5,200
Los Angeles,
4 Beds
2 Baths
2,000 SqFt
12 Days On Market
Community:

Similar Neighborhoods to "" in Los Angeles, California

Back to Results

  • City:
    Los Angeles
  • Price Range:
    $695 - $300,000
  • Current Listings:
    3137
  • HOA Dues:
    $12
  • Average Price per Square Foot:
    $4

Back to Search Results

Based on information from California Regional Multiple Listing Service, Inc. as of April 16th, 2026 at 10:50am PDT. This information is for your personal, non-commercial use and may not be used for any purpose other than to identify prospective properties you may be interested in purchasing. Display of MLS data is usually deemed reliable but is NOT guaranteed accurate by the MLS. Buyers are responsible for verifying the accuracy of all information and should investigate the data themselves or retain appropriate professionals. Information from sources other than the Listing Agent may have been included in the MLS data. Unless otherwise specified in writing, Broker/Agent has not and will not verify any information obtained from other sources. The Broker/Agent providing the information contained herein may or may not have been the Listing and/or Selling Agent.