$4,950 - 257 S Avenue 54 # 1/4, Los Angeles

  • 4Beds
  • 5Baths
  • 2,005SQ. Feet
  • 0.20Acres

Los Angeles Home For Sale

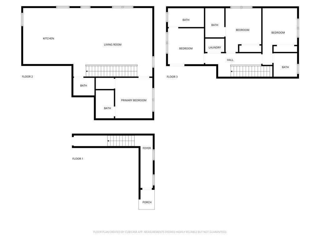
Brand New Luxury Townhome in the heart of Highland Park! Welcome to 257 1/4 Avenue 54 a stunning tri-level residence offering 4 bedrooms and 4.5 bathrooms with spacious, light-filled interiors and high-end finishes throughout. Upon entry you'll head straight into the main living level where you’ll find an expansive great room designed for modern living. The open-concept layout seamlessly connects the living and dining areas to a beautifully appointed wraparound kitchen featuring custom white oak cabinetry, quartz countertops, stainless steel appliances, and a large center island perfect for entertaining. This level also includes a convenient powder room and a private 1-bedroom, 1-bathroom en-suite ideal for guests, a home office, or flexible living space. The upper level offers three generously sized bedrooms, each with its own en-suite bathroom for ultimate privacy and comfort, along with a dedicated laundry area with side-by-side washer and dryer. Throughout the home, enjoy wide-plank white oak flooring, designer tile finishes, custom iron railings, recessed lighting, and abundant natural light. Additional features include central heating and A/C, solar panels for huge savings on energy bills, EV charger readiness, one dedicated garage parking space, and secure entry. Ideally situated in one of Northeast LA’s most sought-after neighborhoods, you’re just moments from York Boulevard and Figueroa Street’s vibrant dining and retail scene, including Highland Park Bowl, Civil Coffee, Café de Leche, and Hippo. With close proximity to the Metro Gold Line, commuting to Downtown LA or Pasadena is effortless. A rare opportunity to own a thoughtfully designed, move-in-ready home in a prime Highland Park location.

Sales Agent

Sam Smith
  • Sam Smith
  • San Clemente Realtor ®
  • Phone: 949-204-5110
  • Cell: 949-204-5110
  • Contact Agent Now

Amenities

  • UtilitiesElectricity Connected, Sewer Connected, Water Connected, Gardener
  • Parking Spaces2
  • ParkingAssigned, Garage
  • # of Garages2
  • GaragesAssigned, Garage
  • ViewMountain(s), Neighborhood
  • PoolNone
  • SecurityGated Community

School Information

  • DistrictLos Angeles Unified

Essential Information

  • MLS® #OC26066556
  • Price$4,950
  • Bedrooms4
  • Bathrooms5.00
  • Full Baths4
  • Half Baths1
  • Square Footage2,005
  • Acres0.20
  • Year Built2025
  • TypeResidential Lease
  • Sub-TypeTownhouse
  • StatusActive
  • Listing AgentDrew Dunn
  • Listing OfficeFour Brothers Real Estate, Inc.

Exterior

  • ExteriorDrywall
  • Lot DescriptionZeroToOneUnitAcre
  • RoofComposition
  • ConstructionDrywall
  • FoundationSlab

Additional Information

  • Date ListedMarch 27th, 2026
  • Days on Market20
  • Short SaleN
  • RE / Bank OwnedN

Community Information

  • Address257 S Avenue 54 # 1/4
  • Area632 - Highland Park
  • CityLos Angeles
  • CountyLos Angeles
  • Zip Code90042

Interior

  • InteriorLaminate, Wood
  • Interior FeaturesQuartz Counters
  • AppliancesDishwasher, Electric Cooktop, Electric Oven, Disposal, Microwave, Refrigerator, Range Hood, Vented Exhaust Fan, Dryer, Washer
  • HeatingCentral
  • CoolingCentral Air
  • FireplacesNone
  • # of Stories3
  • StoriesThree Or More, Multi/Split

Similar Type Properties to OC26066556, 257 S Avenue 54 # 1/4, Los Angeles

Back to Results

Los Angeles 259 S Avenue 54 # 1/2

$4,950
Los Angeles,
4 Beds
4 Baths
1,900 SqFt
20 Days On Market
Community:

Los Angeles 4040 Grand View Boulevard # 22

$4,000
Los Angeles,
2 Beds
2 Baths
841 SqFt
2 Days On Market
Community:

Los Angeles 630 E Adams Boulevard

$4,000
Los Angeles,
4 Beds
3 Baths
1,660 SqFt
20 Days On Market
Community:

Los Angeles 1943 Carmen # 1943

$5,600
Los Angeles,
4 Beds
3 Baths
1,908 SqFt
64 Days On Market
Community:

Similar Neighborhoods to "" in Los Angeles, California

Back to Results

  • City:
    Los Angeles
  • Price Range:
    $695 - $300,000
  • Current Listings:
    3152
  • HOA Dues:
    $12
  • Average Price per Square Foot:
    $4

Back to Search Results

Based on information from California Regional Multiple Listing Service, Inc. as of April 16th, 2026 at 1:27pm PDT. This information is for your personal, non-commercial use and may not be used for any purpose other than to identify prospective properties you may be interested in purchasing. Display of MLS data is usually deemed reliable but is NOT guaranteed accurate by the MLS. Buyers are responsible for verifying the accuracy of all information and should investigate the data themselves or retain appropriate professionals. Information from sources other than the Listing Agent may have been included in the MLS data. Unless otherwise specified in writing, Broker/Agent has not and will not verify any information obtained from other sources. The Broker/Agent providing the information contained herein may or may not have been the Listing and/or Selling Agent.