$908,800 - 3979 E Tulane Way, Ontario

  • 4Beds
  • 3Baths
  • 2,586SQ. Feet
  • 0.13Acres

Ontario Home For Sale

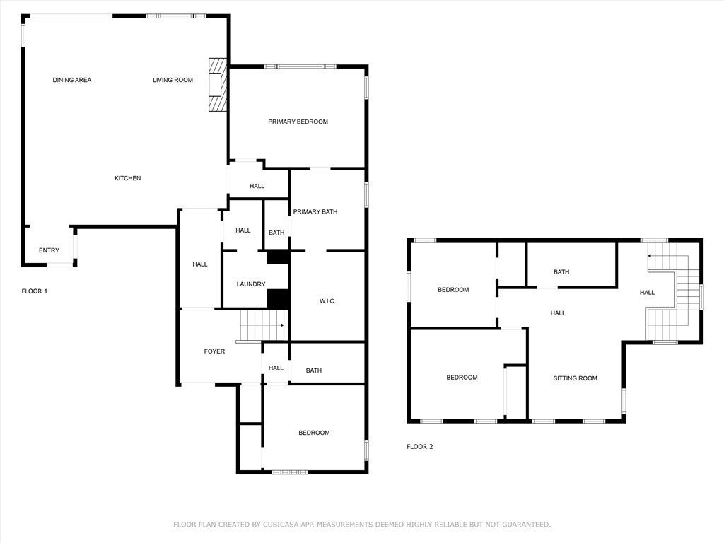
This stunning former model home offers a rare and highly functional layout with the primary suite conveniently located on the first floor. The private owner’s retreat features a spacious walk-in closet and spa-inspired ensuite bath. Also on the main level, a secondary bedroom with a full bathroom near the entrance provides the perfect setup for guests or a home office. Upstairs, two additional bedrooms share a full guest bathroom, alongside a versatile open family room ideal for a play area, study space, or media lounge. Designed with both comfort and flexibility in mind, the home’s thoughtful floor plan works beautifully for multi-generational living or growing households. Complemented by $100K+ in builder upgrades—including an expansive California room, a professionally finished backyard, high-quality laminate flooring, and an upgraded kitchen—this home stands apart from the rest. Located in the desirable Ontario Ranch community with lower taxes and low HOA, residents enjoy access to a clubhouse, pool, tot lot, game room, and basketball courts, all while being minutes from schools, freeways, Ontario Airport, Ontario Mills, and Victoria Gardens. A perfect blend of luxury, function, and location—this one won’t last!

Sales Agent

Sam Smith
  • Sam Smith
  • San Clemente Realtor ®
  • Phone: 949-204-5110
  • Cell: 949-204-5110
  • Contact Agent Now

Amenities

  • AmenitiesPool, Barbecue, Picnic Area
  • UtilitiesSee Remarks, Electricity Available, Natural Gas Available, Sewer Available, Water Available
  • Parking Spaces2
  • # of Garages2
  • ViewNeighborhood
  • Has PoolYes
  • PoolCommunity, Association

School Information

  • DistrictChaffey Joint Union High

Essential Information

  • MLS® #WS25220319
  • Price$908,800
  • Bedrooms4
  • Bathrooms3.00
  • Full Baths3
  • Square Footage2,586
  • Acres0.13
  • Year Built2017
  • TypeResidential
  • Sub-TypeSingle Family Residence
  • StatusActive Under Contract
  • Listing AgentHui Wang
  • Listing OfficeIRN REALTY

Exterior

  • Lot DescriptionZeroToOneUnitAcre

Additional Information

  • Date ListedSeptember 18th, 2025
  • Days on Market141
  • Short SaleN
  • RE / Bank OwnedN

Community Information

  • Address3979 E Tulane Way
  • Area686 - Ontario
  • CityOntario
  • CountySan Bernardino
  • Zip Code91761

Interior

  • InteriorLaminate
  • Interior FeaturesOpen Floorplan, Bedroom on Main Level, Granite Counters, Main Level Primary, Pantry, Recessed Lighting, Walk-In Closet(s)
  • AppliancesDishwasher, Microwave, Disposal, Gas Range
  • HeatingCentral
  • CoolingCentral Air
  • FireplaceYes
  • FireplacesLiving Room
  • # of Stories2
  • StoriesTwo

Price Change History for 3979 E Tulane Way, Ontario, (MLS® #WS25220319)

Date Details Price Change
Active Under Contract (from Active)
Price Reduced (from $928,800) $908,800 $20,000 (2.15%)

Similar Type Properties to WS25220319, 3979 E Tulane Way, Ontario

Back to Results

Ontario 2714 Virginia

$839,000
Ontario,
4 Beds
3 Baths
2,144 SqFt
26 Days On Market
Community:

Ontario 4547 S Luna Privado

$780,000
Ontario,
2 Beds
2 Baths
1,556 SqFt
169 Days On Market
Community:

Ontario 3873 Cranbrook Paseo

$799,000
Ontario,
4 Beds
3 Baths
2,365 SqFt
8 Days On Market
Community:

Ontario 4040 S Bowery

$949,888
Ontario,
5 Beds
4 Baths
3,173 SqFt
19 Days On Market
Community:

Similar Neighborhoods to "" in Ontario, California

Back to Results

  • City:
    Ontario
  • Price Range:
    $238,000 - $2,100,000
  • Current Listings:
    360
  • HOA Dues:
    $202
  • Average Price per Square Foot:
    $422

Back to Search Results

Based on information from California Regional Multiple Listing Service, Inc. as of February 6th, 2026 at 7:40pm PST. This information is for your personal, non-commercial use and may not be used for any purpose other than to identify prospective properties you may be interested in purchasing. Display of MLS data is usually deemed reliable but is NOT guaranteed accurate by the MLS. Buyers are responsible for verifying the accuracy of all information and should investigate the data themselves or retain appropriate professionals. Information from sources other than the Listing Agent may have been included in the MLS data. Unless otherwise specified in writing, Broker/Agent has not and will not verify any information obtained from other sources. The Broker/Agent providing the information contained herein may or may not have been the Listing and/or Selling Agent.