$717,080 - 26135 Mercury Drive, Loma Linda

  • 4Beds
  • 3Baths
  • 2,152SQ. Feet
  • 2026Built

Loma Linda Home For Sale

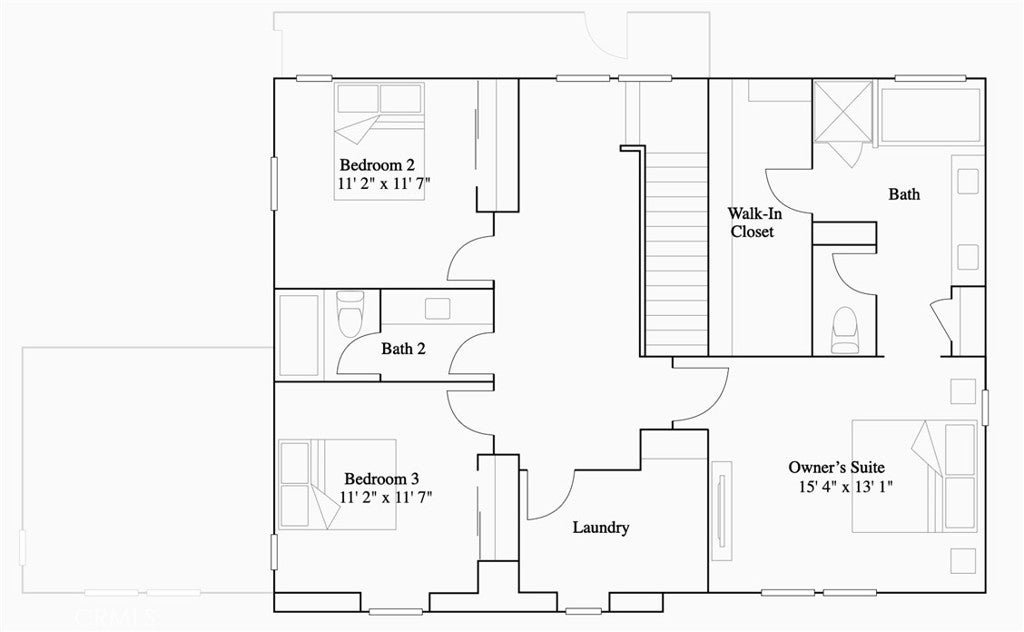
NEW CONSTRUCTION! Ready for Quick Move-in! A bedroom and open-concept floorplan shared between the kitchen, dining room and Great Room make up the first level of this new-story home. Upstairs are three bedrooms, including the luxurious owner’s suite with a spa-inspired bathroom and walk-in closet. A two-bay garage completes the home. The kitchen features white quartz countertops and white cabinetry. Sierra Crest is a collection offering new single-family homes now selling at The Groves masterplan in Loma Linda, CA. The community is located a variety of local recreational activities, including parks, golf courses and more. Medical professionals looking for shorter commutes will enjoy proximity to the Loma Linda University system, with several other nearby schools from the primary to university levels.

Sales Agent

Sam Smith
  • Sam Smith
  • San Clemente Realtor ®
  • Phone: 949-204-5110
  • Cell: 949-204-5110
  • Contact Agent Now

Amenities

  • AmenitiesMaintenance Grounds, Maintenance Front Yard
  • UtilitiesCable Connected, Electricity Connected, Phone Connected, Sewer Connected, Underground Utilities, Water Connected
  • Parking Spaces2
  • ParkingDirect Access, Driveway, Garage
  • # of Garages2
  • GaragesDirect Access, Driveway, Garage
  • ViewNone
  • PoolNone
  • SecurityCarbon Monoxide Detector(s), Smoke Detector(s)

School Information

  • DistrictRedlands Unified

Essential Information

  • MLS® #SW26010427
  • Price$717,080
  • Bedrooms4
  • Bathrooms3.00
  • Full Baths3
  • Square Footage2,152
  • Acres0.00
  • Year Built2026
  • TypeResidential
  • Sub-TypeCondominium
  • StatusActive
  • Listing AgentTodd Myatt
  • Listing OfficeCentury 21 Masters

Exterior

  • ExteriorFrame, Stucco
  • Lot DescriptionLevel
  • RoofTile
  • ConstructionFrame, Stucco
  • FoundationSlab

Additional Information

  • Date ListedJanuary 14th, 2026
  • Days on Market5
  • Short SaleN
  • RE / Bank OwnedN

Community Information

  • Address26135 Mercury Drive
  • Area267 - Loma Linda
  • CityLoma Linda
  • CountySan Bernardino
  • Zip Code92373

Interior

  • Interior FeaturesBreakfast Bar, Separate/Formal Dining Room, Granite Counters, Open Floorplan, Recessed Lighting, Bedroom on Main Level, Walk-In Pantry, Walk-In Closet(s)
  • AppliancesBuilt-In Range, Dishwasher, Electric Range, Disposal, Microwave
  • HeatingCentral
  • CoolingCentral Air
  • FireplacesNone
  • # of Stories2
  • StoriesTwo

Similar Type Properties to SW26010427, 26135 Mercury Drive, Loma Linda

Back to Results

Loma Linda 26125 Mercury Drive

$715,872
Loma Linda,
4 Beds
3 Baths
2,152 SqFt
28 Days On Market
Community:

Loma Linda 26127 Mercury Drive

$746,653
Loma Linda,
4 Beds
3 Baths
2,388 SqFt
42 Days On Market
Community:

Loma Linda 26113 Mercury Drive

$668,082
Loma Linda,
3 Beds
3 Baths
1,916 SqFt
13 Days On Market
Community:

Loma Linda 10871 Pala Bells Street

$720,005
Loma Linda,
4 Beds
3 Baths
2,388 SqFt
20 Days On Market
Community:

Similar Neighborhoods to "" in Loma Linda, California

Back to Results

  • City:
    Loma Linda
  • Price Range:
    $300,000 - $1,200,000
  • Current Listings:
    42
  • HOA Dues:
    $111
  • Average Price per Square Foot:
    $362

Back to Search Results

Based on information from California Regional Multiple Listing Service, Inc. as of January 20th, 2026 at 5:56am PST. This information is for your personal, non-commercial use and may not be used for any purpose other than to identify prospective properties you may be interested in purchasing. Display of MLS data is usually deemed reliable but is NOT guaranteed accurate by the MLS. Buyers are responsible for verifying the accuracy of all information and should investigate the data themselves or retain appropriate professionals. Information from sources other than the Listing Agent may have been included in the MLS data. Unless otherwise specified in writing, Broker/Agent has not and will not verify any information obtained from other sources. The Broker/Agent providing the information contained herein may or may not have been the Listing and/or Selling Agent.