$1,500,000 - 5319 Penfield Avenue, Woodland Hills

  • 4Beds
  • 3Baths
  • 1,927SQ. Feet
  • 0.22Acres

Woodland Hills Home For Sale

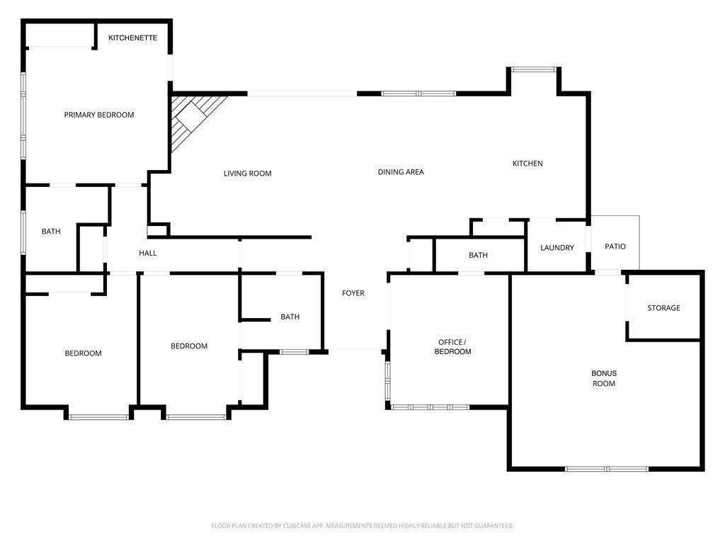
Magical single story Mid-Century ranch home desirably located South of the Boulevard. First time on the market by the original owners who built this home with love. This remodeled stunner is set back from the street behind a sweeping circular driveway, mature trees, and drought resistant landscaping. Step inside to find a formal entry foyer that leads to a completely open sunlit floor plan featuring high vaulted ceilings with skylights that bask the home with natural light. The living room features a fireplace, sliding glass doors that open to the yard, and custom built-in storage. Separate formal dining room connects the living room with the upgraded open kitchen with quartz counters, peninsula with breakfast bar seating, stainless appliances, double ovens, and pantry. An office/guest room off the entry features large picture windows, built-in bookshelves, and access to a powder bathroom. The primary bedroom is perfectly positioned on a private wing featuring French door that opens to the yard, kitchenette with sink, and en-suite remodeled bathroom with walk-in shower and designer tiling. Two additional secondary bedrooms are each well appointed and share a spacious remodeled hall bathroom with walk-in shower. The finished garage (not included in square footage) is the ideal flex space for creatives/office/gym/etc and an indoor laundry room with storage provides ultimate convenience. The private backyard is a true sanctuary for entertaining boasting the most gorgeous professionally designed idyllic grounds featuring covered patio, separate gazebo, meandering pathways with patios, and lush full growth landscaping that truly comes alive at night under the lights. Recent system upgrades include new roof (2025) and newer 200 amp electrical panel (2020). Adjacent to terrific dining & shopping, Westfield Topanga Mall & Village, Warner Center, local parks/hiking trails, & easy access to the beach and freeways.

Sales Agent

Sam Smith
  • Sam Smith
  • San Clemente Realtor ®
  • Phone: 949-204-5110
  • Cell: 949-204-5110
  • Contact Agent Now

Amenities

  • Parking Spaces6
  • ParkingCircular Driveway, Direct Access, Garage, RV Access/Parking, Boat, Converted Garage
  • GaragesCircular Driveway, Direct Access, Garage, RV Access/Parking, Boat, Converted Garage
  • ViewNone
  • PoolNone

School Information

  • DistrictLos Angeles Unified
  • ElementaryWilbur
  • MiddleWoodland Hills
  • HighTaft

Essential Information

  • MLS® #SR26058764
  • Price$1,500,000
  • Bedrooms4
  • Bathrooms3.00
  • Full Baths2
  • Half Baths1
  • Square Footage1,927
  • Acres0.22
  • Year Built1958
  • TypeResidential
  • Sub-TypeSingle Family Residence
  • StyleMid-Century Modern, Ranch
  • StatusActive
  • Listing AgentDesiree Zuckerman
  • Listing OfficeRodeo Realty

Exterior

  • Exterior FeaturesLighting, Rain Gutters
  • Lot DescriptionBack Yard, Front Yard, Landscaped, Level, Rectangular Lot

Additional Information

  • Date ListedMarch 18th, 2026
  • Days on Market13
  • Short SaleN
  • RE / Bank OwnedN

Community Information

  • Address5319 Penfield Avenue
  • AreaWHLL - Woodland Hills
  • CityWoodland Hills
  • CountyLos Angeles
  • Zip Code91364

Interior

  • Interior FeaturesBreakfast Bar, Built-in Features, Ceiling Fan(s), Separate/Formal Dining Room, High Ceilings, Open Floorplan, Pantry, Quartz Counters, Recessed Lighting, All Bedrooms Down, Bedroom on Main Level, Entrance Foyer, Main Level Primary
  • AppliancesDouble Oven, Dishwasher, Freezer, Gas Cooktop, Microwave, Refrigerator
  • HeatingCentral
  • CoolingCentral Air
  • FireplaceYes
  • FireplacesLiving Room
  • # of Stories1
  • StoriesOne

Price Change History for 5319 Penfield Avenue, Woodland Hills, (MLS® #SR26058764)

Date Details Price Change
Active
Pending (from Active)

Similar Type Properties to SR26058764, 5319 Penfield Avenue, Woodland Hills

Back to Results

Woodland Hills 4249 Torreon Drive

$1,649,000
Woodland Hills,
4 Beds
3 Baths
2,775 SqFt
31 Days On Market
Community:

Woodland Hills 5160 Medina Road

$1,275,000
Woodland Hills,
3 Beds
3 Baths
2,184 SqFt
20 Days On Market
Community:

Woodland Hills 5105 Tendilla

$1,249,000
Woodland Hills,
3 Beds
2 Baths
1,611 SqFt
10 Days On Market
Community:

Woodland Hills 22623 Cavalier Street

$1,275,000
Woodland Hills,
4 Beds
5 Baths
2,194 SqFt
15 Days On Market
Community:

Similar Neighborhoods to "" in Woodland Hills, California

Back to Results

  • City:
    Woodland Hills
  • Price Range:
    $339,000 - $10,999,999
  • Current Listings:
    288
  • HOA Dues:
    $132
  • Average Price per Square Foot:
    $667

Back to Search Results

Based on information from California Regional Multiple Listing Service, Inc. as of April 10th, 2026 at 9:50am PDT. This information is for your personal, non-commercial use and may not be used for any purpose other than to identify prospective properties you may be interested in purchasing. Display of MLS data is usually deemed reliable but is NOT guaranteed accurate by the MLS. Buyers are responsible for verifying the accuracy of all information and should investigate the data themselves or retain appropriate professionals. Information from sources other than the Listing Agent may have been included in the MLS data. Unless otherwise specified in writing, Broker/Agent has not and will not verify any information obtained from other sources. The Broker/Agent providing the information contained herein may or may not have been the Listing and/or Selling Agent.