$49,000 - 6368 Graham, Paradise

  • 0.55Acres

Paradise Home For Sale

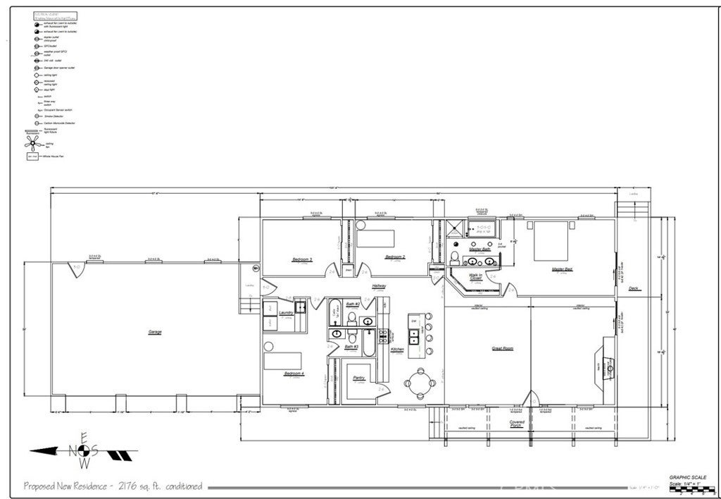
Save time and tens of thousands in development costs with this level, ready-to-build .55-acre lot in a fantastic West Side location near Bille Park. The seller has already completed a survey, maintained an active PID account, and secured approved building plans—eliminating many of the biggest hurdles in the building process. The plans feature a beautifully designed 2,176 sq. ft. single-story home with 4 bedrooms, 3 bathrooms, and an attached garage. The layout offers open-concept living, a spacious kitchen with a large island and walk-in pantry, indoor laundry, and a generous covered porch perfect for relaxing or entertaining. An incredible opportunity to fast-track your dream home in one of Paradise’s most desirable neighborhoods!

Sales Agent

Sam Smith
  • Sam Smith
  • San Clemente Realtor ®
  • Phone: 949-204-5110
  • Cell: 949-204-5110
  • Contact Agent Now

Amenities

  • UtilitiesElectricity Available, Natural Gas Available, Water Available, Water Connected
  • ViewNone

Essential Information

  • MLS® #SN26064745
  • Price$49,000
  • Bathrooms0.00
  • Acres0.55
  • TypeLand
  • StatusActive
  • Listing AgentShane Collins
  • Listing OfficeRe/Max of Chico

Exterior

  • Lot DescriptionFront Yard, Near Park, Street Level, Yard, Flag Lot

Community Information

  • Address6368 Graham
  • CityParadise
  • CountyButte
  • Zip Code95969

Additional Information

  • Date ListedMarch 25th, 2026
  • Days on Market16
  • ZoningTR-1/2
  • Short SaleN
  • RE / Bank OwnedN

Similar Type Properties to SN26064745, 6368 Graham, Paradise

Back to Results

Paradise 1041 Green Tree Court

$49,950
Paradise,
Baths
24 Days On Market
Community:

Paradise 5856 Grape Lane

$45,000
Paradise,
Baths
161 Days On Market
Community:

Paradise 8736 Nugget

$45,000
Paradise,
Baths
7 Days On Market
Community:

Paradise 1642 Bille

$50,000
Paradise,
Baths
78 Days On Market
Community:

Similar Neighborhoods to "" in Paradise, California

Back to Results

  • City:
    Paradise
  • Price Range:
    $9,999 - $1,900,000
  • Current Listings:
    339
  • HOA Dues:
    $7
  • Average Price per Square Foot:
    $

Back to Search Results

Based on information from California Regional Multiple Listing Service, Inc. as of April 10th, 2026 at 4:15am PDT. This information is for your personal, non-commercial use and may not be used for any purpose other than to identify prospective properties you may be interested in purchasing. Display of MLS data is usually deemed reliable but is NOT guaranteed accurate by the MLS. Buyers are responsible for verifying the accuracy of all information and should investigate the data themselves or retain appropriate professionals. Information from sources other than the Listing Agent may have been included in the MLS data. Unless otherwise specified in writing, Broker/Agent has not and will not verify any information obtained from other sources. The Broker/Agent providing the information contained herein may or may not have been the Listing and/or Selling Agent.