$63,000 - 123 Henshaw Avenue # 616, Chico

  • 3Beds
  • 2Baths
  • 1,368SQ. Feet
  • 1971Built

Chico Home For Sale

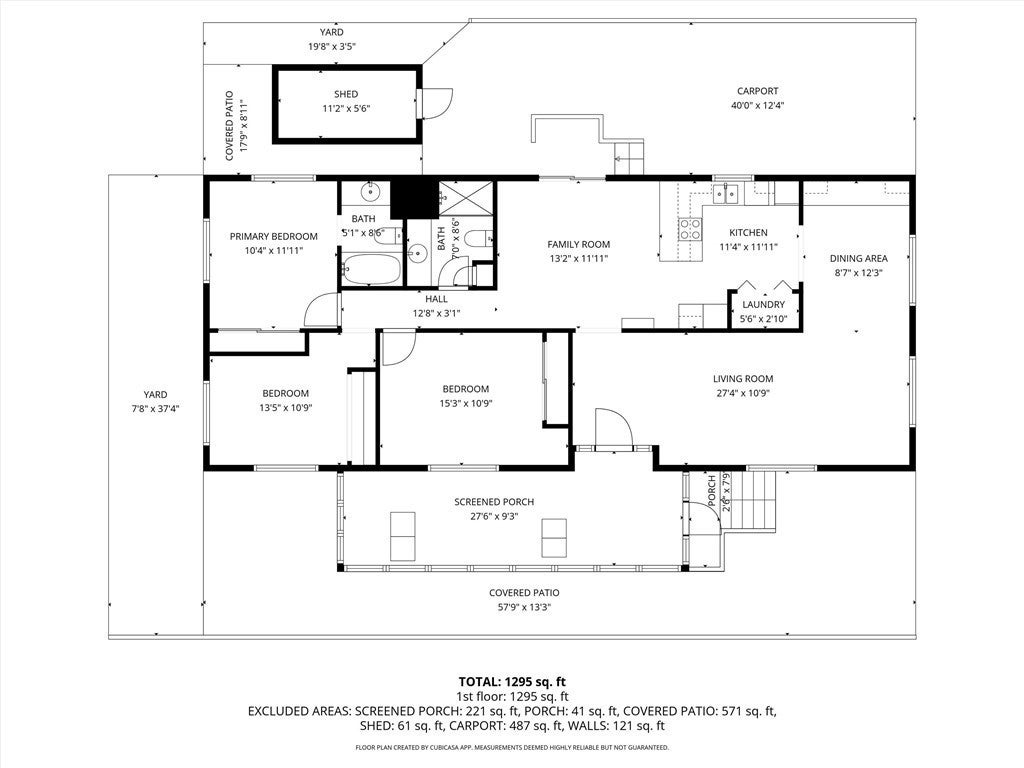
Welcome to Kentwood Mobile Estates, a well-established 55+ senior community offering one of the lower space rents in Chico along with desirable amenities. This 3-bedroom, 2-bath home offers approximately 1,368 sq ft (24’ x 57’) and presents a functional layout with excellent covered outdoor spaces. The roof was professionally coated in 2021, providing added weather protection and ongoing maintenance benefit. Exterior features include a full-length covered carport with privacy siding, a large covered and enclosed front porch, an additional covered walkway, and a wood-frame storage shed. A handicap lift provides added accessibility. Community amenities include a clubhouse, exercise room, and community swimming pool. The park also features convenient back-gate access to the adjacent shopping center, with this home located close to the gate for easy access to nearby shops and services. An excellent opportunity to own in a senior community offering affordability, amenities, and a convenient location.

Sales Agent

Sam Smith
  • Sam Smith
  • San Clemente Realtor ®
  • Phone: 949-204-5110
  • Cell: 949-204-5110
  • Contact Agent Now

Amenities

  • UtilitiesElectricity Available, Electricity Connected, Natural Gas Connected, Sewer Connected, Water Connected, Sewer, Trash Collection, Water, Natural Gas Available, Water Available
  • ParkingCovered
  • GaragesCovered
  • ViewNeighborhood
  • PoolNone

School Information

  • DistrictChico Unified

Essential Information

  • MLS® #SN25276264
  • Price$63,000
  • Bedrooms3
  • Bathrooms2.00
  • Full Baths1
  • Square Footage1,368
  • Acres0.00
  • Year Built1971
  • TypeManufactured In Park
  • StatusActive
  • Listing AgentNorm Atkin
  • Listing OfficeAtkin Real Estate Inc

Exterior

  • Exterior FeaturesAwning(s)
  • Lot DescriptionZeroToOneUnitAcre
  • WindowsDrapes

Additional Information

  • Date ListedDecember 16th, 2025
  • Days on Market90
  • Short SaleN
  • RE / Bank OwnedN

Community Information

  • Address123 Henshaw Avenue # 616
  • CityChico
  • CountyButte
  • Zip Code95973

Interior

  • InteriorCarpet, Vinyl
  • AppliancesDishwasher, Disposal, Microwave, Refrigerator, Electric Cooktop, Electric Oven
  • HeatingCentral
  • CoolingCentral Air
  • # of Stories1
  • StoriesOne

Price Change History for 123 Henshaw Avenue # 616, Chico, (MLS® #SN25276264)

Date Details Price Change
Active
Pending (from Active)
Price Reduced $63,000 $6,500 (9.35%)
Price Reduced (from $80,500) $69,500 $11,000 (13.66%)

Similar Type Properties to SN25276264, 123 Henshaw Avenue # 616, Chico

Back to Results

Chico 3548 Via Medio

$74,900
Chico,
2 Beds
2 Baths
1,368 SqFt
73 Days On Market
Community:

Chico 701 E Lassen Avenue # 294

$64,500
Chico,
2 Beds
2 Baths
1,440 SqFt
77 Days On Market
Community:

Chico 701 E Lassen # 88

$68,500
Chico,
3 Beds
2 Baths
1,440 SqFt
36 Days On Market
Community:

Chico 123 Henshaw Avenue # 107

$59,000
Chico,
2 Beds
1 Baths
800 SqFt
89 Days On Market
Community:

Similar Neighborhoods to "" in Chico, California

Back to Results

  • City:
    Chico
  • Price Range:
    $22,995 - $192,000
  • Current Listings:
    32
  • HOA Dues:
    $0
  • Average Price per Square Foot:
    $76

Back to Search Results

Based on information from California Regional Multiple Listing Service, Inc. as of April 6th, 2026 at 12:56am PDT. This information is for your personal, non-commercial use and may not be used for any purpose other than to identify prospective properties you may be interested in purchasing. Display of MLS data is usually deemed reliable but is NOT guaranteed accurate by the MLS. Buyers are responsible for verifying the accuracy of all information and should investigate the data themselves or retain appropriate professionals. Information from sources other than the Listing Agent may have been included in the MLS data. Unless otherwise specified in writing, Broker/Agent has not and will not verify any information obtained from other sources. The Broker/Agent providing the information contained herein may or may not have been the Listing and/or Selling Agent.