$1,595,000 - 642 W 1st Avenue, Chico

  • 12Beds
  • 6Baths
  • 0.45Acres

Chico Home For Sale

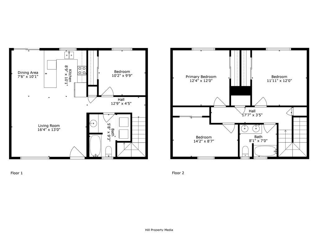
College Place | 642 W. 1st Avenue | Prime Chico Multi-Family Investment Opportunity Harris Commercial is pleased to present College Place, an exceptional 8-unit multi-family investment opportunity located at 642 W. 1st Avenue in Chico, California. Ideally situated within walking distance to both California State University, Chico and downtown Chico, this property offers strong existing income, long-term upside, and an unbeatable location. College Place consists of two buildings, each with four large, townhouse-style apartments, all fully leased and 100% occupied. Each 4-bedroom, 2-bath unit is thoughtfully laid out with a downstairs bedroom, bathroom, kitchen, and living area, and three bedrooms and a second bathroom upstairs—a layout perfectly suited for student and group living. One of the units has been completely remodeled, commanding rents approximately 8% higher than the others, providing a clear value-add opportunity for future ownership. Additional highlights include: - Individually metered for electric, gas, and water – a rare and valuable feature that shifts utility costs to tenants - Connected to city sewer and full municipal services - Private fenced patios for each unit - Low-maintenance, professionally redesigned landscaping to minimize ongoing expenses - Fenced common rear yard with bike racks and BBQ area - Professionally managed for many years with stable operations and low vacancy With a desirable unit mix, separate utility metering, professional management, and premium walkability, College Place offers a rare opportunity to acquire a high-performing, easy-to-operate asset in one of Chico’s most sought-after rental markets.

Sales Agent

Sam Smith
  • Sam Smith
  • San Clemente Realtor ®
  • Phone: 949-204-5110
  • Cell: 949-204-5110
  • Contact Agent Now

Amenities

  • ParkingConcrete
  • GaragesConcrete
  • PoolNone

Additional Information

  • Date ListedJuly 1st, 2025
  • Days on Market267
  • ZoningCITY
  • Short SaleN
  • RE / Bank OwnedN

Essential Information

  • MLS® #SN25136861
  • Price$1,595,000
  • Bedrooms12
  • Bathrooms6.00
  • Acres0.45
  • Year Built1984
  • TypeResidential Income
  • Sub-TypeApartment
  • StatusActive
  • Listing AgentBrandon Harris
  • Listing OfficeHarris Commercial Real Estate

Exterior

  • ExteriorPlaster, Stucco, Vinyl Siding
  • Lot DescriptionBack Yard, Level, Near Public Transit, No Landscaping, Rectangular Lot, Street Level, Yard
  • RoofComposition
  • ConstructionPlaster, Stucco, Vinyl Siding
  • FoundationSlab

Community Information

  • Address642 W 1st Avenue
  • CityChico
  • CountyButte
  • Zip Code95926

Interior

  • HeatingCentral
  • CoolingCentral Air
  • FireplacesNone
  • # of Stories2
  • StoriesTwo

Price Change History for 642 W 1st Avenue, Chico, (MLS® #SN25136861)

Date Details Price Change
Price Reduced $1,595,000 $80,000 (4.78%)
Price Reduced (from $1,760,000) $1,675,000 $85,000 (4.83%)

Similar Type Properties to SN25136861, 642 W 1st Avenue, Chico

Back to Results

Chico 811 W 2nd

$1,299,000
Chico,
26 Beds
14 Baths
110 Days On Market
Community:

Chico 1 Mayfair

$1,395,000
Chico,
11 Beds
7 Baths
9 Days On Market
Community:

Similar Neighborhoods to "" in Chico, California

Back to Results

  • City:
    Chico
  • Price Range:
    $197,000 - $8,200,000
  • Current Listings:
    32
  • HOA Dues:
    $22
  • Average Price per Square Foot:
    $193

Back to Search Results

Based on information from California Regional Multiple Listing Service, Inc. as of April 7th, 2026 at 3:15am PDT. This information is for your personal, non-commercial use and may not be used for any purpose other than to identify prospective properties you may be interested in purchasing. Display of MLS data is usually deemed reliable but is NOT guaranteed accurate by the MLS. Buyers are responsible for verifying the accuracy of all information and should investigate the data themselves or retain appropriate professionals. Information from sources other than the Listing Agent may have been included in the MLS data. Unless otherwise specified in writing, Broker/Agent has not and will not verify any information obtained from other sources. The Broker/Agent providing the information contained herein may or may not have been the Listing and/or Selling Agent.