$82,500 - 23701 S Western Avenue # 221, Torrance

  • 2Beds
  • 2Baths
  • 1,140SQ. Feet
  • 1972Built

Torrance Home For Sale

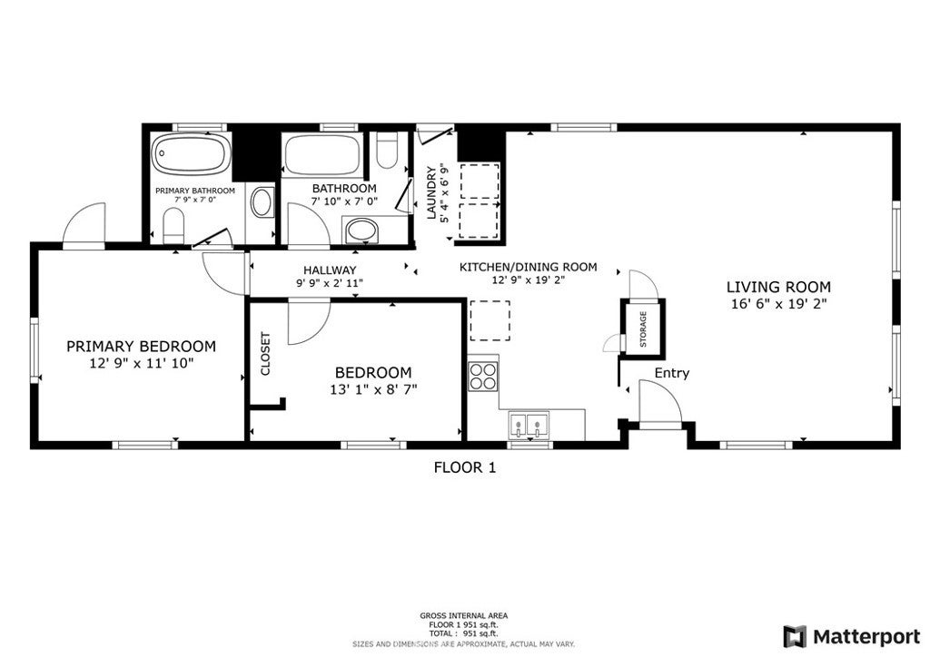
Seller will credit the Buyer for the first month of space rent! Welcome home to one of the largest and most private floorplans in the Knolls Lodge community! Tucked away in the back of the park for added privacy, this beautifully maintained 2-bedroom, 2-bathroom manufactured home offers both comfort and convenience in a desirable Torrance location. Step inside to a warm and inviting living room with large windows that flood the space with natural light. The open-concept layout flows into the dining area, where elegant built-in cabinetry with glass accents provides the perfect space for display and storage. The tastefully updated kitchen features tile countertops, a contemporary tile backsplash, a center island, and a mix of upper and lower modern white cabinetry for ample storage. Included appliances are a freestanding gas stove, a built-in range hood, and a stainless-steel side-by-side refrigerator. Just off the kitchen is a separate laundry room with washer and dryer hookups, built-in shelving, and cabinet storage for added convenience. The expansive primary suite is a true retreat, complete with a large walk-in closet and an ensuite bathroom featuring new laminate flooring. The second bedroom is generously sized, and both bathrooms have been recently updated with new flooring and new toilets. Outside, enjoy a covered carport that accommodates two vehicles, a front porch with steps and a railing for added safety, a storage shed, and decorative potted plants that add charm to the muted green and white exterior. As a resident of Knolls Lodge, you’ll have access to two sparkling outdoor pools, a well-appointed recreation room with a fireplace and foosball table, and beautifully maintained landscaping. The community is pet-friendly (with breed and size restrictions), offers visitor parking, and is conveniently located near shopping, schools, and restaurants. Don’t miss your opportunity to own this beautifully updated home in a welcoming, Torrance community!

Sales Agent

Sam Smith
  • Sam Smith
  • San Clemente Realtor ®
  • Phone: 949-204-5110
  • Cell: 949-204-5110
  • Contact Agent Now

Amenities

  • UtilitiesPool, Electricity Connected, Natural Gas Connected, Sewer Connected, Water Connected
  • Parking Spaces2
  • ParkingAttached Carport, Covered, Driveway, Tandem
  • GaragesAttached Carport, Covered, Driveway, Tandem
  • ViewNone
  • Has PoolYes
  • PoolAssociation, Community
  • SecurityCarbon Monoxide Detector(s), Resident Manager, Smoke Detector(s)

School Information

  • DistrictTorrance Unified

Essential Information

  • MLS® #SB25076009
  • Price$82,500
  • Bedrooms2
  • Bathrooms2.00
  • Full Baths1
  • Square Footage1,140
  • Acres0.00
  • Year Built1972
  • TypeManufactured In Park
  • StatusActive Under Contract
  • Listing AgentDanielle Whitney Moore
  • Listing OfficeKeller Williams Realty

Exterior

  • Lot DescriptionStreet Level
  • WindowsBlinds

Additional Information

  • Date ListedApril 2nd, 2025
  • Days on Market374
  • Short SaleN
  • RE / Bank OwnedN

Community Information

  • Address23701 S Western Avenue # 221
  • Area135 - South East Torrance - East
  • CityTorrance
  • CountyLos Angeles
  • Zip Code90501

Interior

  • InteriorLaminate
  • Interior FeaturesAll Bedrooms Down, Bedroom on Main Level, Ceiling Fan(s), Primary Suite, Unfurnished, Walk-In Closet(s)
  • AppliancesFree-Standing Range, Gas Oven, Gas Range, Range Hood, Refrigerator, Water Heater
  • CoolingNone
  • # of Stories1
  • StoriesOne

Price Change History for 23701 S Western Avenue # 221, Torrance, (MLS® #SB25076009)

Date Details Price Change
Active Under Contract
Price Reduced $82,500 $2,500 (2.94%)
Active
Active Under Contract
Price Reduced $85,000 $5,000 (5.56%)
Show More (4)

Similar Type Properties to SB25076009, 23701 S Western Avenue # 221, Torrance

Back to Results

Torrance 23701 S Western Avenue # 197

$99,000
Torrance,
3 Beds
2 Baths
1,000 SqFt
164 Days On Market
Community:

Torrance 24200 Walnut # 57

$74,995
Torrance,
1 Beds
1 Baths
644 SqFt
2 Days On Market
Community:

Torrance 2550 Pacific Coast Highway # 8

$99,000
Torrance,
1 Beds
1 Baths
875 SqFt
50 Days On Market
Community:

Torrance 1900 Artesia

$89,000
Torrance,
2 Beds
1 Baths
94 Days On Market
Community:

Similar Neighborhoods to "" in Torrance, California

Back to Results

  • City:
    Torrance
  • Price Range:
    $35,000 - $4,500,000
  • Current Listings:
    37
  • HOA Dues:
    $0
  • Average Price per Square Foot:
    $240

Back to Search Results

Based on information from California Regional Multiple Listing Service, Inc. as of April 19th, 2026 at 11:30am PDT. This information is for your personal, non-commercial use and may not be used for any purpose other than to identify prospective properties you may be interested in purchasing. Display of MLS data is usually deemed reliable but is NOT guaranteed accurate by the MLS. Buyers are responsible for verifying the accuracy of all information and should investigate the data themselves or retain appropriate professionals. Information from sources other than the Listing Agent may have been included in the MLS data. Unless otherwise specified in writing, Broker/Agent has not and will not verify any information obtained from other sources. The Broker/Agent providing the information contained herein may or may not have been the Listing and/or Selling Agent.