$695,000 - 967 Huber Street, Grover Beach

  • 0.11Acres

Grover Beach Home For Sale

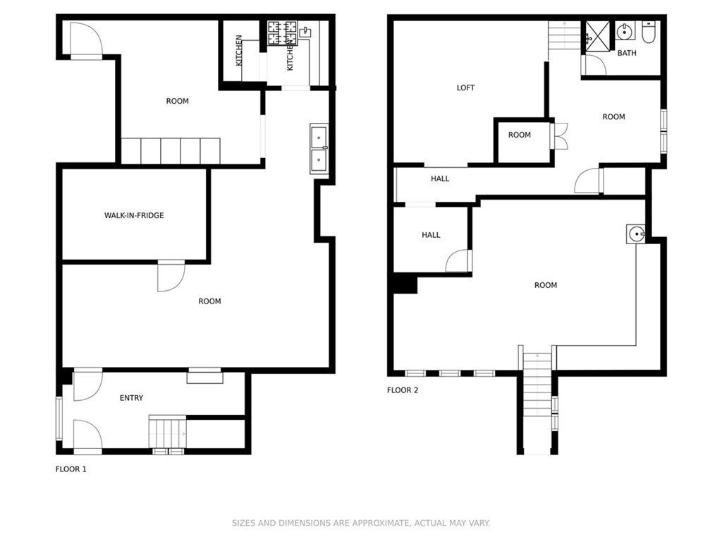
An outstanding location with major functionality and flexibility offered by this One-Of-A-Kind, Grover Beach industrial workspace. Located in the "Green Zone" Cannabis Business District with an established Licensed Commercial Kitchen space, this would make an ideal Type N infusion facility and/or Type 6 Manufacturing facility. It's also centrally located for distribution throughout California and suitable for a Type 11 Distribution facility. Think outside the box! With the right vision, this commercial kitchen space could be a project for multiple uses: well-suited as a commissary, catering company, ghost kitchen, food truck or food delivery company, co-op, bakery, or other consumable related manufacturing or processing operation. This workspace has so much opportunity to have multiple operators/tenants who can function in this commercial building with approximately 2100 sq ft of work space and three phase electrical meters for heavy manufacturing. The main floor offers a large built-in smokehouse, multiple walk-in refrigeration/freezer units, three-compartment sink and wash area, and wall-to-wall floor drains for easy cleanup. The second floor provides an office space with a bathroom and shower along with ample storage spaces throughout. Buyers to satisfy themselves with all information regarding regulatory compliance with regard to cannabis. Seller may consider financing.

Sales Agent

Sam Smith
  • Sam Smith
  • San Clemente Realtor ®
  • Phone: 949-204-5110
  • Cell: 949-204-5110
  • Contact Agent Now

Amenities

  • UtilitiesElectricity Connected, Natural Gas Connected, Phone Connected, Sewer Connected, Water Connected
  • SecuritySecurity System

Additional Information

  • Date ListedSeptember 11th, 2020
  • Days on Market537
  • ZoningIndustrial/Comm Cannabis
  • Short SaleN
  • RE / Bank OwnedN

Essential Information

  • MLS® #PI20190190
  • Price$695,000
  • Bathrooms0.00
  • Acres0.11
  • Year Built1989
  • TypeCommercial Sale
  • Sub-TypeIndustrial
  • StatusPending
  • Listing AgentDavid Hubbell
  • Listing OfficeModern Broker-Pismo Beach

Exterior

  • ExteriorAluminum Siding
  • Lot DescriptionZeroToOneUnitAcre
  • RoofMetal
  • ConstructionAluminum Siding

Community Information

  • Address967 Huber Street
  • AreaGRVC - Grover Beach
  • CityGrover Beach
  • CountySan Luis Obispo
  • Zip Code93433

Interior

  • HeatingNone

Price Change History for 967 Huber Street, Grover Beach, (MLS® #PI20190190)

Date Details Price Change
Pending
Active
Active Under Contract
Pending (from Active)

Similar Type Properties to PI20190190, 967 Huber Street, Grover Beach

Back to Results

Grover Beach 930 Huber Street # H

$750,000
Grover Beach,
Baths
137 Days On Market
Community:

Similar Neighborhoods to "" in Grover Beach, California

Back to Results

  • City:
    Grover Beach
  • Price Range:
    $595,000 - $4,100,000
  • Current Listings:
    10
  • HOA Dues:
    $0
  • Average Price per Square Foot:
    $

Back to Search Results

Based on information from California Regional Multiple Listing Service, Inc. as of December 14th, 2025 at 11:11am PST. This information is for your personal, non-commercial use and may not be used for any purpose other than to identify prospective properties you may be interested in purchasing. Display of MLS data is usually deemed reliable but is NOT guaranteed accurate by the MLS. Buyers are responsible for verifying the accuracy of all information and should investigate the data themselves or retain appropriate professionals. Information from sources other than the Listing Agent may have been included in the MLS data. Unless otherwise specified in writing, Broker/Agent has not and will not verify any information obtained from other sources. The Broker/Agent providing the information contained herein may or may not have been the Listing and/or Selling Agent.