$1,298,000 - 1500 S 3rd Avenue, Arcadia

  • 3Beds
  • 2Baths
  • 1,421SQ. Feet
  • 0.24Acres

Arcadia Home For Sale

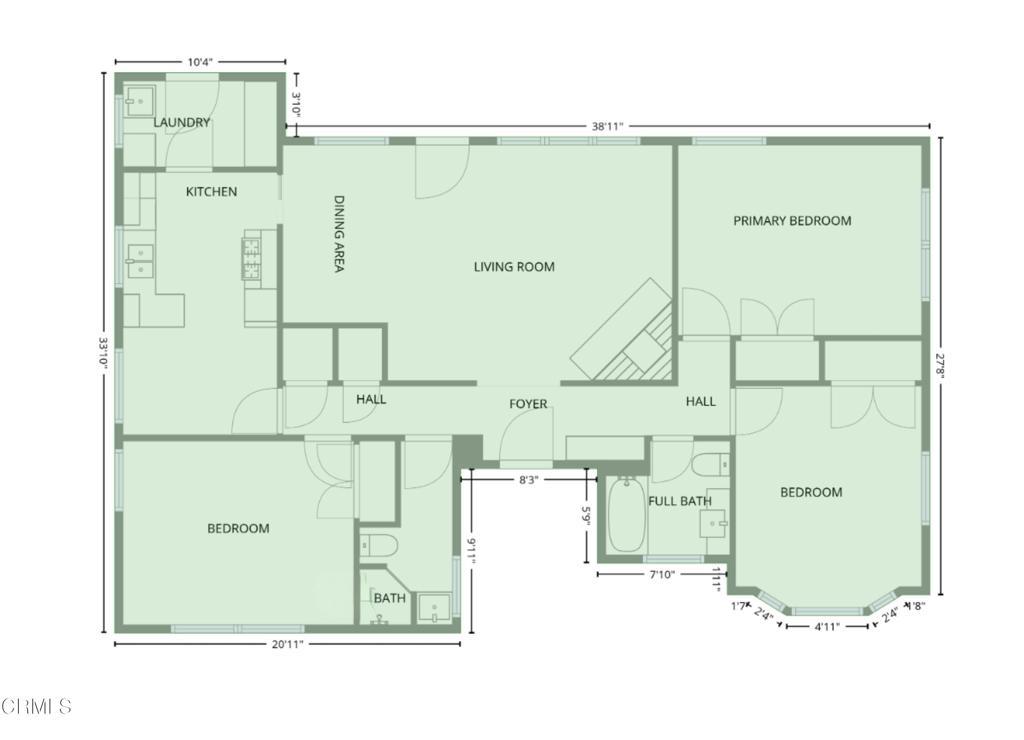
When Mr. and Mrs. Pandit were looking for just the right area to raise their only daughter they settled in Arcadia. It was 1975 and Arcadia was already well known for its schools and friendly neighborhoods. Mr. Pandit, an engineer at Ralph M. Parsons in Pasadena, loved Arcadia's proximity to his new office and specifically loved a home on 3rd Avenue, a Traditional set on a spacious 10,500 square foot lot. The three-bedroom two-bathroom floor plan of 1,421 square feet was the perfect size for his family. After 51 years of cherished memories, including their daughter's wedding in the backyard, it is now time for its next owner to create new ones.Off the covered front porch is the entry to the home. The entry opens directly into the central hallway and living room. On the south side of the home are two bedrooms and a full bathroom. Each bedroom features large windows, nicely sized closets, and original lighting. On the north side is the third bedroom and 3/4 bathroom. The living room is in the middle and features a fireplace, access to the rear yard, and multiple windows. The kitchen includes original tiled counters, oven, and stove top with vent hood along with another dining area and separate laundry room. The nearly 1/4 acre lot is certainly one of the highlights. The front yard has been beautifully landscaped, and the rear yard offers a detached two-car garage, concrete porch, assortment of plants, roses, and trees, and a very large grassy area. Additional features include refinished hardwood flooring, new exterior and interior paint, copper plumbing, newer roof, central heating and air conditioning, and Arcadia's award-winning schools.

Sales Agent

Sam Smith
  • Sam Smith
  • San Clemente Realtor ®
  • Phone: 949-204-5110
  • Cell: 949-204-5110
  • Contact Agent Now

Amenities

  • Parking Spaces2
  • ParkingDriveway, Garage
  • # of Garages2
  • GaragesDriveway, Garage
  • ViewMountain(s)
  • PoolNone

Essential Information

  • MLS® #P1-26468
  • Price$1,298,000
  • Bedrooms3
  • Bathrooms2.00
  • Full Baths1
  • Square Footage1,421
  • Acres0.24
  • Year Built1955
  • TypeResidential
  • Sub-TypeSingle Family Residence
  • StyleTraditional
  • StatusPending
  • Listing AgentJeremy Hardy
  • Listing OfficeCraig Estates and Fine Properties

Interior

  • InteriorVinyl, Wood
  • AppliancesDishwasher, Gas Cooktop, Refrigerator, Water Heater, Dryer, Washer
  • HeatingCentral
  • CoolingCentral Air
  • FireplaceYes
  • FireplacesLiving Room
  • StoriesOne

Community Information

  • Address1500 S 3rd Avenue
  • Area605 - Arcadia
  • CityArcadia
  • CountyLos Angeles
  • Zip Code91006

Additional Information

  • Date ListedMarch 27th, 2026
  • Days on Market7
  • Short SaleN
  • RE / Bank OwnedN

Price Change History for 1500 S 3rd Avenue, Arcadia, (MLS® #P1-26468)

Date Details Price Change
Pending (from Active)

Similar Type Properties to P1-26468, 1500 S 3rd Avenue, Arcadia

Back to Results

Arcadia 1625 Elevado

$1,450,000
Arcadia,
3 Beds
3 Baths
1,805 SqFt
15 Days On Market
Community:

Arcadia 1100 S 9th Avenue

$1,450,000
Arcadia,
3 Beds
2 Baths
1,819 SqFt
38 Days On Market
Community:

Arcadia 20 E Floral

$1,280,000
Arcadia,
4 Beds
2 Baths
1,725 SqFt
57 Days On Market
Community:

Arcadia 910 S 5th

$1,395,000
Arcadia,
3 Beds
2 Baths
1,260 SqFt
62 Days On Market
Community:

Similar Neighborhoods to "" in Arcadia, California

Back to Results

  • City:
    Arcadia
  • Price Range:
    $599,000 - $12,888,000
  • Current Listings:
    156
  • HOA Dues:
    $142
  • Average Price per Square Foot:
    $704

Back to Search Results

Based on information from California Regional Multiple Listing Service, Inc. as of April 19th, 2026 at 6:35pm PDT. This information is for your personal, non-commercial use and may not be used for any purpose other than to identify prospective properties you may be interested in purchasing. Display of MLS data is usually deemed reliable but is NOT guaranteed accurate by the MLS. Buyers are responsible for verifying the accuracy of all information and should investigate the data themselves or retain appropriate professionals. Information from sources other than the Listing Agent may have been included in the MLS data. Unless otherwise specified in writing, Broker/Agent has not and will not verify any information obtained from other sources. The Broker/Agent providing the information contained herein may or may not have been the Listing and/or Selling Agent.