$1,600,000 - 879 E 40th Place, Los Angeles

  • 11Beds
  • 5Baths
  • 0.14Acres

Los Angeles Home For Sale

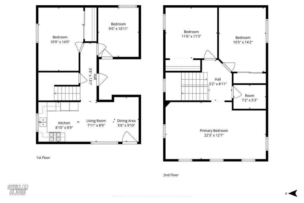
Exceptional Investment Opportunity To Acquire A Large Income-Producing 4-Unit Property In The High-Demand South Los Angeles / Downtown LA Rental Market. Well-Maintained Quadplex Offers 11 Bedrooms, 5 Bathrooms And Approximately 4,700 Square Feet Of Total Living Space On A 6,300± Square Foot Lot in LARD1.5-1 Zoning, Making It One Of The Larger Multifamily Assets In The Immediate Area. Unit1: 4Bed/2Bath Unit2: 3Bed/1Bath Unit3: 2Bed/1Bath Unit4: 2 Bed/1Bath. Additionally, With Rare Amenities Of 9 Total Private Parking Spaces (3 Covered Car Port Parking + 6 Private Uncovered – This Improves Tenant Retention And Value As Parking Is Sparse In The Area. Individually Separately Metered For Gas And Electricity. The Property Was Fully Rebuilt In 2006 And Has Received Recent Minor Updates, Providing Investors With The Benefit Of Modernized Construction Relative To Surrounding Vintage Housing Stock, Improved Structural Integrity, And Reduced Capital Expenditure Requirements. Interior Features: Shaker Kitchen Cabinets, Newer Paint, Newer Flooring, Newer Windows, Newer Sinks, Newer Bathroom Vanities, Newer Showers, Recessed Lighting, And Modern Fixtures. Ground Floor Laundry Area In Ground Floor Unit #879 With Access To Exterior (Could Be Transformed Into Shared Laundry With Coin-op Laundry, Adding Additional Income). The Property Is Fully Rented, Currently Generating Approximately $7,700 Per Month In Gross Rental Income, Offering Stable Cash Flow From Day One. With The Strong Demand For Affordable Housing In The 90011 Corridor, The Asset Presents A Compelling Opportunity For Continued Rental Growth Through Strategic Rent Adjustments, Improved Management, Or Unit Upgrades. Actualize The Development And Density Potential Upside With Improving Rental Income By ADU Development (2-4 ADU Possible), Carport Conversions, Redevelopment Utilizing LA And State Housing Incentives For Higher Density Housing + Transportation Area Incentives. RD1.5-1 Zoning, Transit Oriented Communities (TOC Tier 1), ZI-2374 State Enterprise Zone LA, Transit Oriented Incentive Area 1 (TOIA). Well Positioned – Very Close To USC, Future Olympics Location, Major Transportation Corridors, Retail And Employment Hubs. Ideal For Investors, 1031 Exchange Buyers, Value-Add Builders, Developers Seeking Rental Market With Prime Unit Mix In TOC Zone (8-12 Units Possible) With Rental Pro-Forma Of Approximately $27,600 Per Month After Redevelopment. Your Investment Opportunity Is Here, Call Listing Agent NOW!

Sales Agent

Sam Smith
  • Sam Smith
  • San Clemente Realtor ®
  • Phone: 949-204-5110
  • Cell: 949-204-5110
  • Contact Agent Now

Amenities

  • UtilitiesElectricity Connected, Natural Gas Connected, Sewer Connected, Water Connected
  • Parking Spaces9
  • ParkingAttached Carport, Assigned, Concrete, Driveway Level, Side By Side, On Site
  • GaragesAttached Carport, Assigned, Concrete, Driveway Level, Side By Side, On Site
  • ViewCity Lights, Neighborhood
  • PoolNone
  • SecurityCarbon Monoxide Detector(s), Fire Detection System, Security Gate, Smoke Detector(s), Window Bars

Additional Information

  • Date ListedMarch 13th, 2026
  • Days on Market38
  • Short SaleN
  • RE / Bank OwnedN

Essential Information

  • MLS® #OC26053122
  • Price$1,600,000
  • Bedrooms11
  • Bathrooms5.00
  • Acres0.14
  • Year Built2006
  • TypeResidential Income
  • Sub-TypeQuadruplex
  • StyleCustom
  • StatusActive
  • Listing AgentJustin Yee
  • Listing OfficeeXp Realty of Southern California, Inc

Exterior

  • ExteriorConcrete, Stucco
  • Lot DescriptionLevel, Near Public Transit, Rectangular Lot, Street Level
  • WindowsBlinds, Screens
  • RoofShingle
  • ConstructionConcrete, Stucco
  • FoundationSlab

Community Information

  • Address879 E 40th Place
  • AreaC42 - Downtown L.A.
  • CityLos Angeles
  • CountyLos Angeles
  • Zip Code90011

Interior

  • InteriorTile, Vinyl, Wood
  • Interior FeaturesCeiling Fan(s), Granite Counters, Multiple Staircases, Quartz Counters, Recessed Lighting, Storage, Bedroom on Main Level, Galley Kitchen, Main Level Primary, Block Walls
  • AppliancesElectric Oven, Free-Standing Range, Gas Range, Microwave, Refrigerator, Range Hood
  • HeatingWall Furnace
  • CoolingElectric, Zoned, Wall/Window Unit(s)
  • FireplacesNone
  • # of Stories3
  • StoriesThree Or More

Similar Type Properties to OC26053122, 879 E 40th Place, Los Angeles

Back to Results

Los Angeles 1867 W 11th

$1,625,000
Los Angeles,
11 Beds
8 Baths
6 Days On Market
Community:

Los Angeles 1037 S Bonnie Brae

$1,699,000
Los Angeles,
4 Beds
2 Baths
47 Days On Market
Community:

Los Angeles 2104 Park Grove

$1,350,000
Los Angeles,
13 Beds
9 Baths
140 Days On Market
Community:

Los Angeles 356 N Sierra Bonita

$1,700,000
Los Angeles,
8 Beds
4 Baths
32 Days On Market
Community:

Similar Neighborhoods to "" in Los Angeles, California

Back to Results

  • City:
    Los Angeles
  • Price Range:
    $275,000 - $40,000,000
  • Current Listings:
    1901
  • HOA Dues:
    $0
  • Average Price per Square Foot:
    $445

Back to Search Results

Based on information from California Regional Multiple Listing Service, Inc. as of April 20th, 2026 at 6:15pm PDT. This information is for your personal, non-commercial use and may not be used for any purpose other than to identify prospective properties you may be interested in purchasing. Display of MLS data is usually deemed reliable but is NOT guaranteed accurate by the MLS. Buyers are responsible for verifying the accuracy of all information and should investigate the data themselves or retain appropriate professionals. Information from sources other than the Listing Agent may have been included in the MLS data. Unless otherwise specified in writing, Broker/Agent has not and will not verify any information obtained from other sources. The Broker/Agent providing the information contained herein may or may not have been the Listing and/or Selling Agent.