$5,861 - 3510 Combine, Paso Robles

  • 0.20Acres

Paso Robles Home For Sale

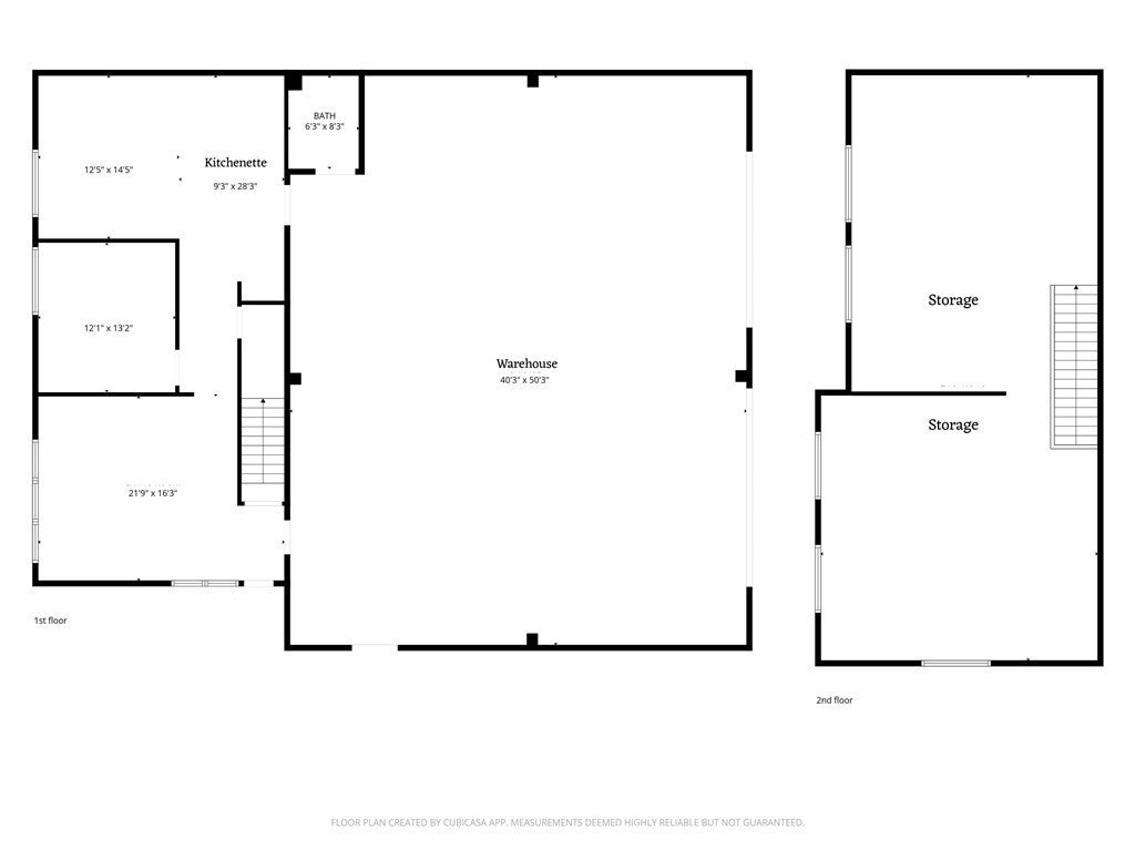
Industrial Flex Space For Lease – Combine Street Versatile industrial flex space available for immediate occupancy on Combine Street. The property features a functional combination of office, warehouse, and storage space along with a secure outdoor yard area. The first-floor office area (approx. 1,012 sq ft) provides a front administrative workspace, while the warehouse area (approx. 2,184 sq ft +/-) includes roll-up door access for convenient loading and storage. An upstairs storage area (approx. 1,178 sq ft +/-) offers additional flexibility and could potentially be converted to expanded office space or other permitted uses. At the rear of the building is a fenced and gated outdoor yard, ideal for equipment storage, vehicle parking, or additional operational space. Property Features • Approx. 4,374 sq ft total space (+/-) • Immediate availability • Front office area • Warehouse with roll-up doors • Upstairs storage or expansion space • Fenced and gated rear yard/storage area • Flexible industrial use opportunity

Sales Agent

Sam Smith
  • Sam Smith
  • San Clemente Realtor ®
  • Phone: 949-204-5110
  • Cell: 949-204-5110
  • Contact Agent Now

Amenities

  • UtilitiesElectricity Connected, Natural Gas Connected, Sewer Connected, Water Connected

Additional Information

  • Date ListedMarch 9th, 2026
  • Days on Market21
  • Short SaleN
  • RE / Bank OwnedN

Essential Information

  • MLS® #NS26052554
  • Price$5,861
  • Bathrooms0.00
  • Acres0.20
  • Year Built2021
  • TypeCommercial Lease
  • Sub-TypeIndustrial
  • StatusActive
  • Listing AgentJohn Donaldson
  • Listing OfficeGUIDE Real Estate

Exterior

  • Lot DescriptionPaved

Community Information

  • Address3510 Combine
  • AreaPRNE - PR North 46-East 101
  • CityPaso Robles
  • CountySan Luis Obispo
  • Zip Code93446

Interior

  • # of Stories2
Back to Search Results

Based on information from California Regional Multiple Listing Service, Inc. as of April 2nd, 2026 at 2:55am PDT. This information is for your personal, non-commercial use and may not be used for any purpose other than to identify prospective properties you may be interested in purchasing. Display of MLS data is usually deemed reliable but is NOT guaranteed accurate by the MLS. Buyers are responsible for verifying the accuracy of all information and should investigate the data themselves or retain appropriate professionals. Information from sources other than the Listing Agent may have been included in the MLS data. Unless otherwise specified in writing, Broker/Agent has not and will not verify any information obtained from other sources. The Broker/Agent providing the information contained herein may or may not have been the Listing and/or Selling Agent.