$1,995,000 - 23252327 Bryant Street, San Francisco

  • 6Beds
  • 3,930SQ. Feet
  • 0.06Acres

San Francisco Home For Sale

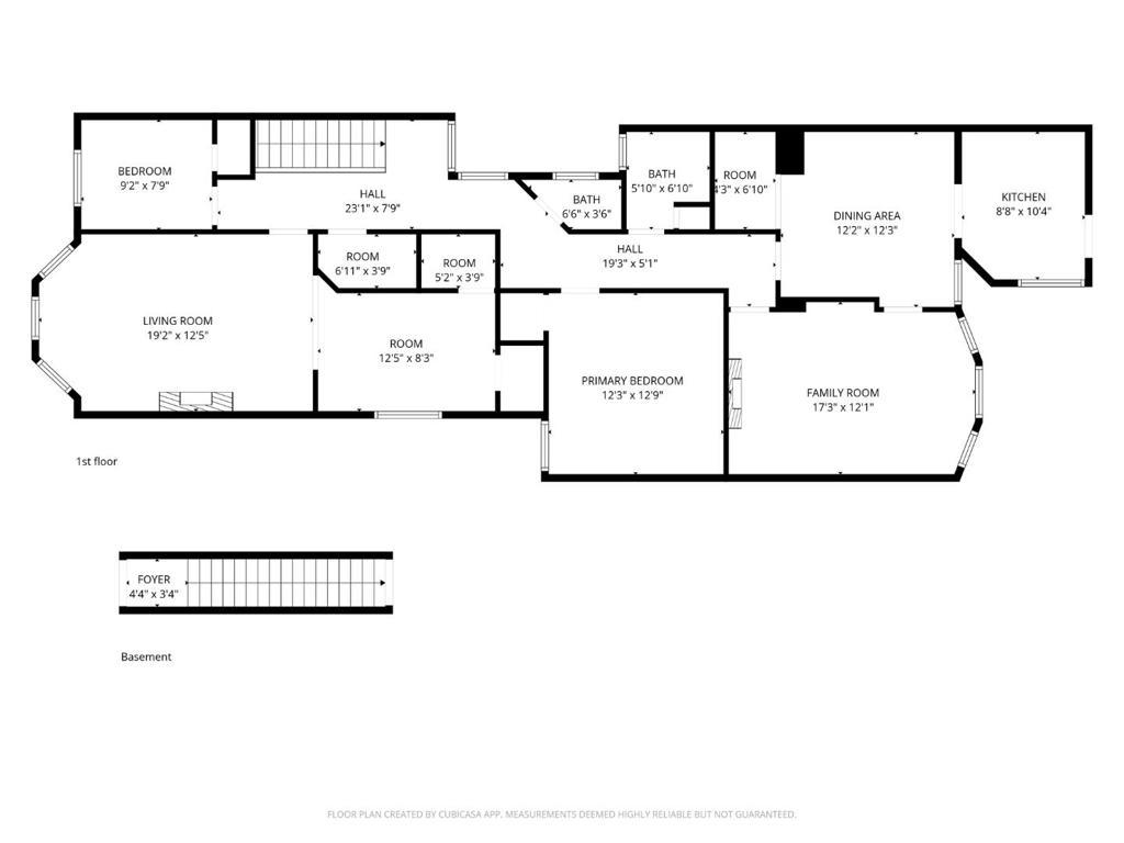
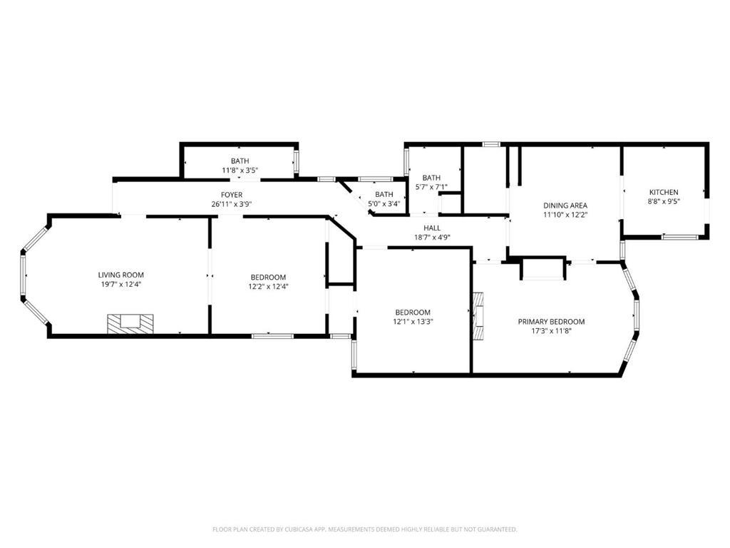
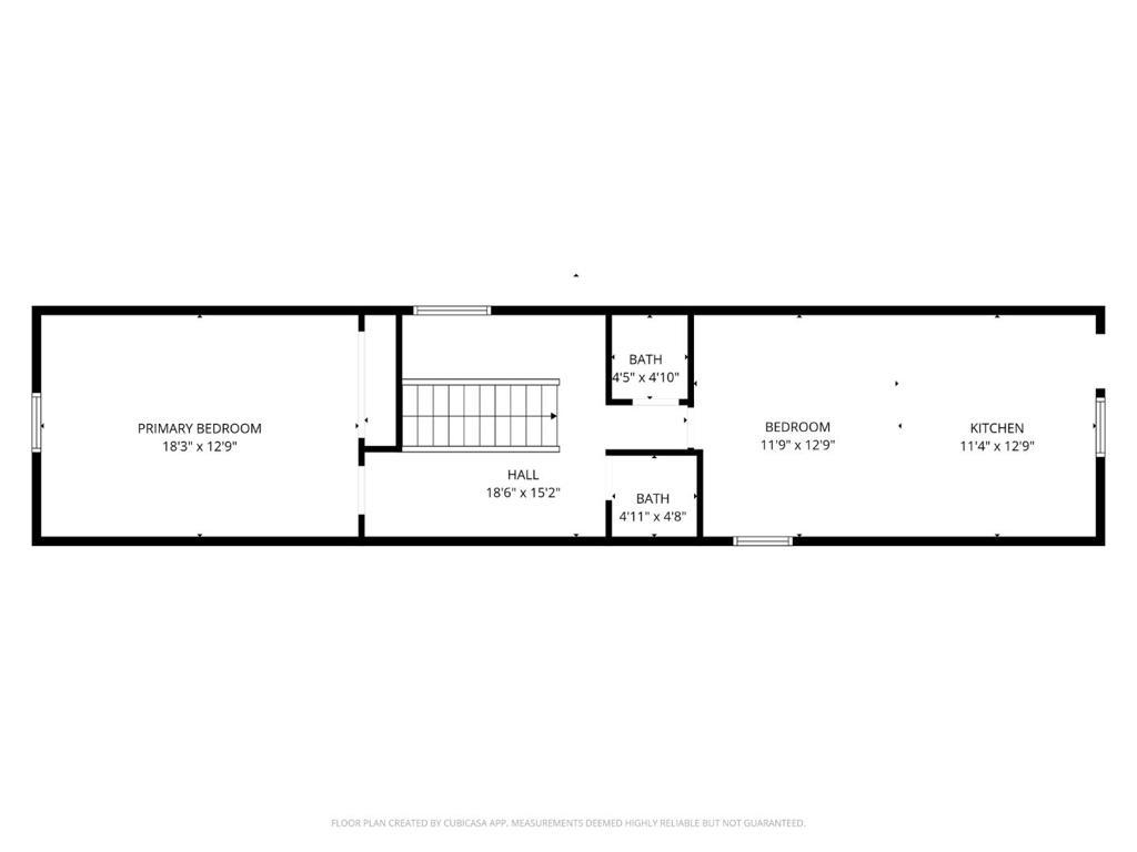
Step into this classic San Francisco home at 2325-2327 Bryant Street, a Victorian duplex rich with period detail and architectural character. From the moment you enter, youre greeted by high ceiling and intricate crown molding that showcase the homes timeless craftsmanship. Spanning four levels, this spacious property offers exceptional flexibility and opportunity. The two main residences each featuring generous 3-bedroom, 1-bath layouts are delivered vacant, providing a rare chance for immediate occupancy or rental income. A bonus room on the ground floor, complete with a separate entrance, adds even more versatility. The attic level is currently tenant-occupied, offering additional income potential. The property also includes convenient two-car tandem garage with extra storage space. Perfectly situated in the heart of the Mission District with restaurants and nightlife a stone throw away. Whether youre an owner-occupant looking to create your dream home or an investor seeking a value-add opportunity, this property delivers both charm and upside. With solid bones, a new roof, and undeniable character, 2325-2327 Bryant Street is ready for its next chapter an exceptional canvas for restoration and vision in one of San Franciscos most sought-after locations.

Sales Agent

Sam Smith
  • Sam Smith
  • San Clemente Realtor ®
  • Phone: 949-204-5110
  • Cell: 949-204-5110
  • Contact Agent Now

Amenities

  • # of Garages2

School Information

  • DistrictSan Francisco Unified

Essential Information

  • MLS® #ML82035739
  • Price$1,995,000
  • Bedrooms6
  • Bathrooms0.00
  • Square Footage3,930
  • Acres0.06
  • Year Built1900
  • TypeResidential Income
  • Sub-TypeDuplex
  • StatusActive
  • Listing AgentThomas Anicete
  • Listing OfficeKinetic Real Estate

Exterior

  • RoofShingle
  • FoundationSlab, Brick/Mortar

Additional Information

  • Date ListedApril 3rd, 2026
  • Days on Market4
  • ZoningRM1
  • Short SaleN
  • RE / Bank OwnedN

Community Information

  • Address23252327 Bryant Street
  • CitySan Francisco
  • CountySan Francisco
  • Zip Code94110

Interior

  • CoolingNone

Similar Type Properties to ML82035739, 23252327 Bryant Street, San Francisco

Back to Results

San Francisco 1191 Guerrero Street

$1,799,000
San Francisco,
4 Beds
Baths
2,680 SqFt
23 Days On Market
Community:

San Francisco 1517 Macondray Lane

$1,900,000
San Francisco,
3 Beds
Baths
1,376 SqFt
9 Days On Market
Community:

San Francisco 45924594 Mission Street

$1,668,000
San Francisco,
2 Beds
Baths
3,700 SqFt
29 Days On Market
Community:

San Francisco 2843 Geary Blvd

$1,650,000
San Francisco,
3 Beds
2 Baths
40 Days On Market
Community: LAUREL HEIGHTS

Similar Neighborhoods to "" in San Francisco, California

Back to Results

  • City:
    San Francisco
  • Price Range:
    $699,999 - $7,600,000
  • Current Listings:
    37
  • HOA Dues:
    $0
  • Average Price per Square Foot:
    $653

Laurel Heights

  • City:
    San Francisco
  • Price Range:
    $1,650,000 - $1,650,000
  • Current Listings:
    1
  • HOA Dues:
    $0
  • Average Price per Square Foot:
    $

Back to Search Results

Based on information from California Regional Multiple Listing Service, Inc. as of April 7th, 2026 at 6:11am PDT. This information is for your personal, non-commercial use and may not be used for any purpose other than to identify prospective properties you may be interested in purchasing. Display of MLS data is usually deemed reliable but is NOT guaranteed accurate by the MLS. Buyers are responsible for verifying the accuracy of all information and should investigate the data themselves or retain appropriate professionals. Information from sources other than the Listing Agent may have been included in the MLS data. Unless otherwise specified in writing, Broker/Agent has not and will not verify any information obtained from other sources. The Broker/Agent providing the information contained herein may or may not have been the Listing and/or Selling Agent.