$1,198,000 - 3058 San Jose Vineyard Court # 4, San Jose

  • 4Beds
  • 4Baths
  • 2,002SQ. Feet
  • 2017Built

San Jose Home For Sale

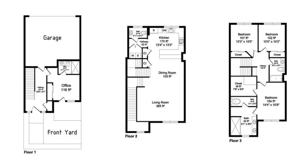
Discover a rare opportunity in Communication Hills! This exceptional townhome is situated on one of the most peaceful streets in the community, offering privacy and open views. Featuring 4 bedrooms, 3.5 bathrooms, and approximately 2,002 square feet of thoughtfully designed living space, this home combines comfort, functionality, and scenic surroundings.The main living level boasts an open-concept layout filled with natural light. The kitchen features a more expansive design with a large island ideal for cooking and entertaining. High ceilings enhance the sense of space and openness throughout.Upstairs, the spacious primary suite offers a large walk-in closet and a beautifully appointed ensuite bath. Two additional bedrooms provide flexibility for family, guests, or office use. On the 1st floor, a private bedroom with full bath and direct exterior access opens to a cozy sitting area perfect for extended family or potential rental income.Additional features include central HVAC, double-pane windows, a tankless water heater, and a water softener. Enjoy scenic walking trails, community parks, the Grand Staircase, and breathtaking valley views. Convenient access to VTA Light Rail, Caltrain, Highway 87, Downtown San Jose. Don't miss the chance to call this incredible home yours!

Sales Agent

Sam Smith
  • Sam Smith
  • San Clemente Realtor ®
  • Phone: 949-204-5110
  • Cell: 949-204-5110
  • Contact Agent Now

Amenities

  • AmenitiesTrash
  • Parking Spaces2
  • # of Garages2

School Information

  • DistrictOther

Essential Information

  • MLS® #ML82034308
  • Price$1,198,000
  • Bedrooms4
  • Bathrooms4.00
  • Full Baths3
  • Half Baths1
  • Square Footage2,002
  • Acres0.00
  • Year Built2017
  • TypeResidential
  • Sub-TypeTownhouse
  • StatusPending
  • Listing AgentSharon Wang
  • Listing OfficeKeller Williams Thrive

Exterior

  • RoofOther

Additional Information

  • Date ListedMarch 2nd, 2026
  • Days on Market15
  • ZoningR1-8
  • Short SaleN
  • RE / Bank OwnedN

Community Information

  • Address3058 San Jose Vineyard Court # 4
  • Area699 - Not Defined
  • CitySan Jose
  • CountySanta Clara
  • Zip Code95136

Interior

  • CoolingCentral Air
  • # of Stories3

Price Change History for 3058 San Jose Vineyard Court # 4, San Jose, (MLS® #ML82034308)

Date Details Price Change
Pending (from Active)

Similar Type Properties to ML82034308, 3058 San Jose Vineyard Court # 4, San Jose

Back to Results

San Jose 157 Llano De Los Robles Avenue # 4

$1,188,000
San Jose,
4 Beds
4 Baths
1,995 SqFt
36 Days On Market
Community:

San Jose 599 Marble Arch Avenue

$999,999
San Jose,
3 Beds
3 Baths
1,894 SqFt
84 Days On Market
Community:

San Jose 4641 Hampton Falls Place

$998,000
San Jose,
2 Beds
3 Baths
1,805 SqFt
27 Days On Market
Community:

San Jose 6121 Lambeck Lane

$969,000
San Jose,
3 Beds
3 Baths
1,318 SqFt
2 Days On Market
Community:

Similar Neighborhoods to "" in San Jose, California

Back to Results

  • City:
    San Jose
  • Price Range:
    $4,000 - $4,500,000
  • Current Listings:
    1326
  • HOA Dues:
    $252
  • Average Price per Square Foot:
    $2,641

Back to Search Results

Based on information from California Regional Multiple Listing Service, Inc. as of April 2nd, 2026 at 5:31pm PDT. This information is for your personal, non-commercial use and may not be used for any purpose other than to identify prospective properties you may be interested in purchasing. Display of MLS data is usually deemed reliable but is NOT guaranteed accurate by the MLS. Buyers are responsible for verifying the accuracy of all information and should investigate the data themselves or retain appropriate professionals. Information from sources other than the Listing Agent may have been included in the MLS data. Unless otherwise specified in writing, Broker/Agent has not and will not verify any information obtained from other sources. The Broker/Agent providing the information contained herein may or may not have been the Listing and/or Selling Agent.