$875,000 - 224 W 107th, Los Angeles

  • 5Beds
  • 3Baths
  • 0.12Acres

Los Angeles Home For Sale

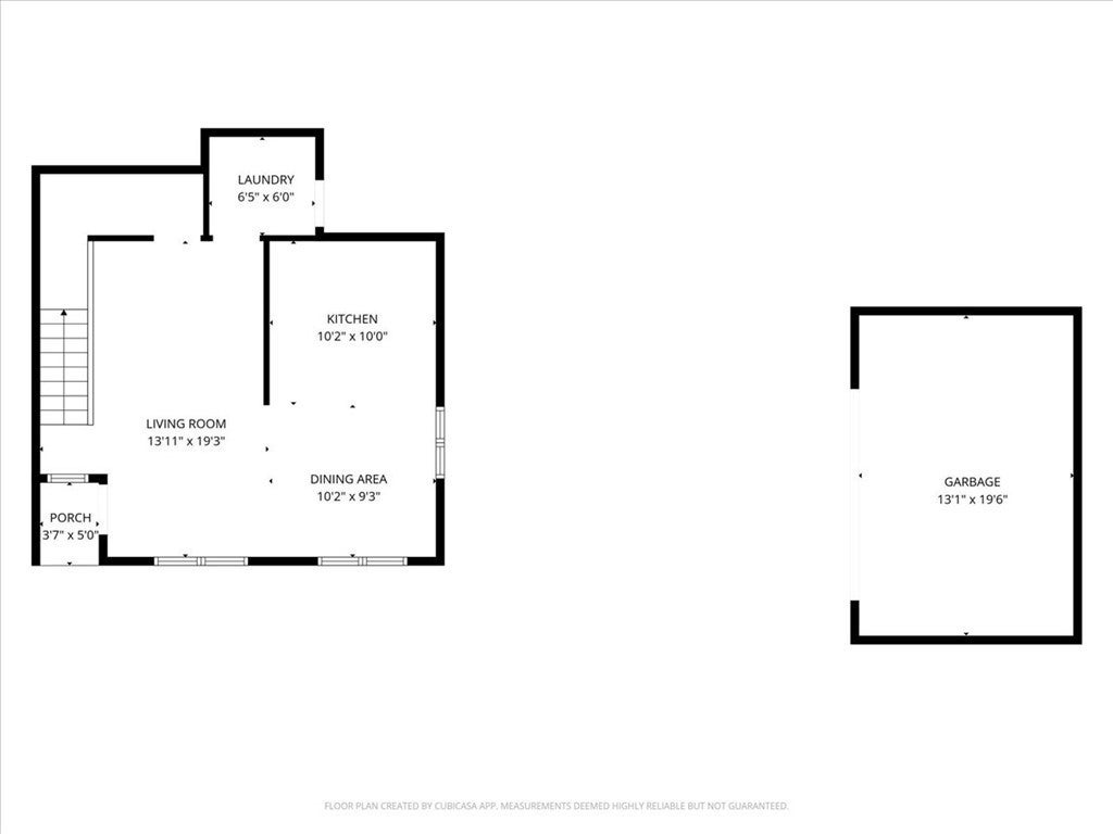
Live Smart—Rent One, Live in the Other! Discover an incredible duplex for sale in Los Angeles, offering a combined 2,738 sq. ft. of living space on a 5,317 sq. ft. R2-zoned lot. Priced under $320 per square foot (garage not included), this multi-unit income property is perfect for both first-time homebuyers and investors. Live in one unit and rent the other, or lease both for maximum returns. The front unit offers 3 bedrooms and 2 bathrooms, currently tenant-occupied with potential vacancy, providing flexibility for future use or investment strategies. The rear unit (VACANT) is move-in ready and ideal for owner occupancy, featuring a practical two-story layout with 2 bedrooms upstairs and a living room, kitchen, 1.5 bathrooms, and laundry area on the main floor. Recent upgrades include new windows, laminate flooring, two-tone interior paint, modern fixtures, and ceiling fans. The chef’s kitchen showcases a designer countertop and stainless steel appliances for a modern, turnkey feel. The exterior has been freshly painted, adding strong curb appeal and showcasing pride of ownership. A long driveway provides generous parking and leads to a 2-car detached garage, offering ADU potential to expand living space or generate additional income. This Los Angeles multi-family property is ideal for owner-users, multi-generational families, or 1031 exchange buyers looking for a solid investment in a convenient location. Schedule your private showing today and see why this duplex stands out!

Sales Agent

Sam Smith
  • Sam Smith
  • San Clemente Realtor ®
  • Phone: 949-204-5110
  • Cell: 949-204-5110
  • Contact Agent Now

Amenities

  • Parking Spaces2
  • ParkingAssigned, Direct Access, Garage
  • # of Garages2
  • GaragesAssigned, Direct Access, Garage
  • PoolNone

Additional Information

  • Date ListedOctober 31st, 2025
  • Days on Market77
  • Short SaleN
  • RE / Bank OwnedN

Essential Information

  • MLS® #MB25251586
  • Price$875,000
  • Bedrooms5
  • Bathrooms3.00
  • Acres0.12
  • Year Built1965
  • TypeResidential Income
  • Sub-TypeDuplex
  • StatusActive
  • Listing AgentXio Sandoval
  • Listing OfficeCENTURY 21 REALTY MASTERS

Exterior

  • Lot DescriptionBack Yard, Front Yard

Community Information

  • Address224 W 107th
  • AreaC34 - Los Angeles Southwest
  • CityLos Angeles
  • CountyLos Angeles
  • Zip Code90003

Interior

  • InteriorLaminate
  • Interior FeaturesCeiling Fan(s), Granite Counters
  • HeatingWall Furnace
  • CoolingNone
  • FireplacesNone
  • # of Stories2
  • StoriesTwo

Similar Type Properties to MB25251586, 224 W 107th, Los Angeles

Back to Results

Los Angeles 147 - 149 E 105th Street

$1,050,000
Los Angeles,
10 Beds
6 Baths
8 Days On Market
Community:

Los Angeles 314 - 316 W 65th Street

$1,050,000
Los Angeles,
9 Beds
5 Baths
8 Days On Market
Community:

Los Angeles 350 E 97th

$770,000
Los Angeles,
5 Beds
Baths
1 Days On Market
Community:

Los Angeles 253 E 82nd

$750,000
Los Angeles,
4 Beds
2 Baths
96 Days On Market
Community:

Similar Neighborhoods to "" in Los Angeles, California

Back to Results

  • City:
    Los Angeles
  • Price Range:
    $399,000 - $25,500,000
  • Current Listings:
    1464
  • HOA Dues:
    $0
  • Average Price per Square Foot:
    $453

Back to Search Results

Based on information from California Regional Multiple Listing Service, Inc. as of January 16th, 2026 at 11:30pm PST. This information is for your personal, non-commercial use and may not be used for any purpose other than to identify prospective properties you may be interested in purchasing. Display of MLS data is usually deemed reliable but is NOT guaranteed accurate by the MLS. Buyers are responsible for verifying the accuracy of all information and should investigate the data themselves or retain appropriate professionals. Information from sources other than the Listing Agent may have been included in the MLS data. Unless otherwise specified in writing, Broker/Agent has not and will not verify any information obtained from other sources. The Broker/Agent providing the information contained herein may or may not have been the Listing and/or Selling Agent.