$899,999 - 7533 Maie Avenue, Los Angeles

  • 9Beds
  • 8Baths
  • 4,113SQ. Feet
  • 0.13Acres

Los Angeles Home For Sale

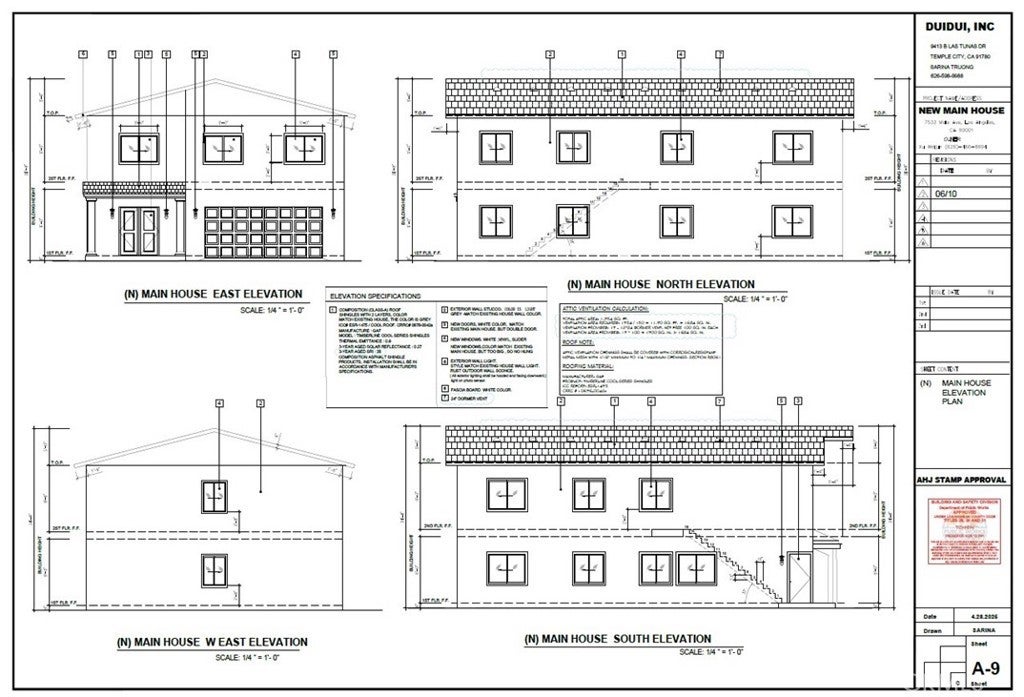
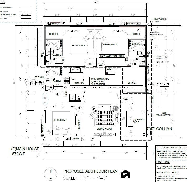
Plans were approved by July 25. Building permits are in hands. It ready to build. 572SF ORIGINAL SINGLE FAMILY HOUSE WITH BIG LOT. 4113 SF NEW DUPLEX BUILDING ADU AND CONVERSION PLAN HAVE JUST BEEN APPROVED. IT IS READY TO BUILD. FRONT BUILDING PLAN FOR NEW MAIN HOUSE: 3058 SF 2-STORY SINGLE FAMILY RESIDENCE WITH NEW SFD WITH 6 BEDROOMS, 5 BATHS AND 2-CAR GARAGE 418SF. BACK UNIT REMODEL AND CONVERTING TO ADU WITH ADDITION NEW AREA: CONVERSION OF 1055SF ACCESSORY DWELLING UNIT (ADU) WITH 3 BEDROOMS AND 3 BATHS. ALL THE PLANCHECK, PERMITS AND CITY FEES HAD BEEN PAID. NEW BUYER JUST TAKE THE PROJECT AND START THE CONSTRUCTION. SELLER IS A DEVELOPER AND CONTRACTOR AND CAN OFFER REASONABLE PRICE FOR THE BUILDING JOBS. ANY QUESTIONS, PLEASE CALL LISTING AGENT.

Sales Agent

Sam Smith
  • Sam Smith
  • San Clemente Realtor ®
  • Phone: 949-204-5110
  • Cell: 949-204-5110
  • Contact Agent Now

Amenities

  • Parking Spaces2
  • # of Garages2
  • ViewNone
  • PoolNone

School Information

  • DistrictLos Angeles Unified

Essential Information

  • MLS® #MB24002346
  • Price$899,999
  • Bedrooms9
  • Bathrooms8.00
  • Full Baths8
  • Square Footage4,113
  • Acres0.13
  • Year Built1922
  • TypeResidential
  • Sub-TypeDuplex
  • StatusActive
  • Listing AgentDavid Xu
  • Listing OfficeEXCELLENCE RE REAL ESTATE

Exterior

  • Lot DescriptionPaved

Additional Information

  • Date ListedJanuary 4th, 2024
  • Days on Market559
  • ZoningLCR3*
  • Short SaleN
  • RE / Bank OwnedN

Community Information

  • Address7533 Maie Avenue
  • AreaC37 - Metropolitan South
  • CityLos Angeles
  • CountyLos Angeles
  • Zip Code90001

Interior

  • Interior FeaturesAll Bedrooms Down
  • CoolingNone
  • FireplacesNone
  • # of Stories2
  • StoriesOne

Price Change History for 7533 Maie Avenue, Los Angeles, (MLS® #MB24002346)

Date Details Price Change
Price Increased $899,999 $200,000 (28.57%)
Price Increased (from $599,999) $699,999 $100,000 (16.67%)

Similar Type Properties to MB24002346, 7533 Maie Avenue, Los Angeles

Back to Results

Los Angeles 7516 Avalon

$950,000
Los Angeles,
6 Beds
4 Baths
2,562 SqFt
19 Days On Market
Community:

Los Angeles 644 E 88th Place

$849,000
Los Angeles,
5 Beds
3 Baths
1,602 SqFt
96 Days On Market
Community:

Los Angeles 13502 S San Pedro

$735,000
Los Angeles,
4 Beds
2 Baths
1,760 SqFt
31 Days On Market
Community:

Los Angeles 1657 W 67th Street # 2

$799,000
Los Angeles,
4 Beds
2 Baths
1,716 SqFt
389 Days On Market
Community:

Similar Neighborhoods to "" in Los Angeles, California

Back to Results

  • City:
    Los Angeles
  • Price Range:
    $249,999 - $135,000,000
  • Current Listings:
    3322
  • HOA Dues:
    $396
  • Average Price per Square Foot:
    $1,121

Back to Search Results

Based on information from California Regional Multiple Listing Service, Inc. as of December 26th, 2025 at 2:25pm PST. This information is for your personal, non-commercial use and may not be used for any purpose other than to identify prospective properties you may be interested in purchasing. Display of MLS data is usually deemed reliable but is NOT guaranteed accurate by the MLS. Buyers are responsible for verifying the accuracy of all information and should investigate the data themselves or retain appropriate professionals. Information from sources other than the Listing Agent may have been included in the MLS data. Unless otherwise specified in writing, Broker/Agent has not and will not verify any information obtained from other sources. The Broker/Agent providing the information contained herein may or may not have been the Listing and/or Selling Agent.