$549,900 - 5135 Taos Drive, Montclair

  • 3Beds
  • 3Baths
  • 1,426SQ. Feet
  • 0.11Acres

Montclair Home For Sale

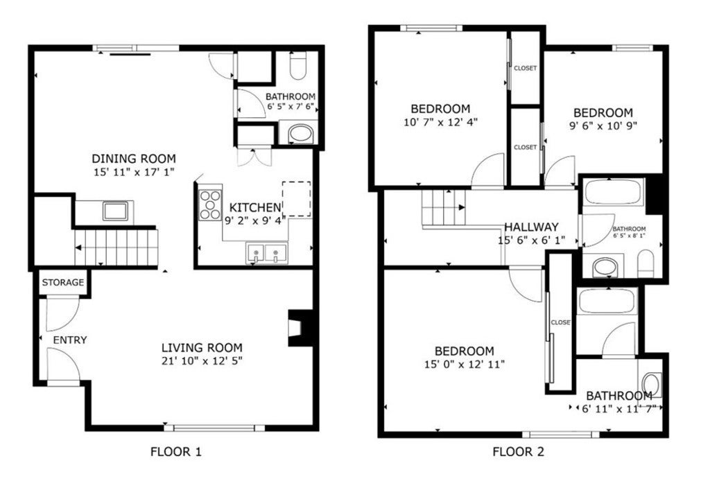
Updated Montclair Town Center Condo – Move-in Ready! Featuring 3 bedrooms and 3 bathrooms with 1,426 sq ft of living space, a large private patio, and a 2-car garage. The interior of this upgraded home includes vinyl plank flooring, textured ceilings, baseboards, and a newer HVAC system. The living room boasts a stacked stone fireplace and opens to the kitchen, which features a bar seating area, granite countertops, tile backsplash, white cabinetry, and appliances including a 4-burner cooktop, built-in oven, microwave, and dishwasher. A formal dining area and a half bathroom complete the main floor. Take the staircase with a wrought iron banister to the second floor, where you’ll find all 3 bedrooms, including the spacious primary bedroom with mirrored closets, a private bathroom, and a balcony with great views! A full-size hall bathroom serves the two secondary bedrooms. The fully fenced backyard patio is ready for the new owner's design and also provides access to the 2-car garage. Residents can also enjoy the community pool, spa, and playground. Low HOA fee and centrally located near schools, shopping, and more!

Sales Agent

Sam Smith
  • Sam Smith
  • San Clemente Realtor ®
  • Phone: 949-204-5110
  • Cell: 949-204-5110
  • Contact Agent Now

Amenities

  • AmenitiesMaintenance Grounds, Management, Playground, Pool, Spa/Hot Tub, Security
  • UtilitiesElectricity Available, Electricity Connected, Natural Gas Available, Natural Gas Connected, Sewer Available, Sewer Connected, Water Available, Water Connected
  • Parking Spaces2
  • ParkingAssigned, Garage
  • # of Garages2
  • GaragesAssigned, Garage
  • ViewMountain(s), Neighborhood
  • Has PoolYes
  • PoolCommunity, Fenced, In Ground, Association

School Information

  • DistrictOntario-Montclair

Essential Information

  • MLS® #IG25239645
  • Price$549,900
  • Bedrooms3
  • Bathrooms3.00
  • Full Baths3
  • Square Footage1,426
  • Acres0.11
  • Year Built1981
  • TypeResidential
  • Sub-TypeCondominium
  • StatusActive
  • Listing AgentMichael Espiritu
  • Listing OfficeREDFIN

Exterior

  • Lot DescriptionStreet Level
  • WindowsBlinds
  • RoofCommon Roof

Additional Information

  • Date ListedOctober 14th, 2025
  • Days on Market66
  • Short SaleN
  • RE / Bank OwnedN

Community Information

  • Address5135 Taos Drive
  • Area685 - Montclair
  • CityMontclair
  • CountySan Bernardino
  • Zip Code91763

Interior

  • InteriorVinyl
  • Interior FeaturesBuilt-in Features, Balcony, Ceiling Fan(s), Separate/Formal Dining Room, Granite Counters, Storage, Unfurnished, All Bedrooms Up
  • AppliancesBuilt-In Range, Electric Oven, Gas Range, Microwave, Range Hood
  • HeatingElectric, Fireplace(s)
  • CoolingCentral Air
  • FireplaceYes
  • FireplacesLiving Room
  • # of Stories2
  • StoriesTwo

Similar Type Properties to IG25239645, 5135 Taos Drive, Montclair

Back to Results

Montclair 5170 San Clemente Way

$554,800
Montclair,
3 Beds
2 Baths
1,296 SqFt
59 Days On Market
Community:

Montclair 5132 Aspen

$549,000
Montclair,
3 Beds
3 Baths
1,426 SqFt
48 Days On Market
Community:

Montclair 9382 Shadowood Drive

$449,000
Montclair,
2 Beds
2 Baths
1,053 SqFt
104 Days On Market
Community:

Montclair 4195 Kingsley Street # 43

$450,000
Montclair,
3 Beds
3 Baths
1,335 SqFt
66 Days On Market
Community:

Similar Neighborhoods to "" in Montclair, California

Back to Results

  • City:
    Montclair
  • Price Range:
    $430,000 - $988,000
  • Current Listings:
    31
  • HOA Dues:
    $155
  • Average Price per Square Foot:
    $441

Back to Search Results

Based on information from California Regional Multiple Listing Service, Inc. as of December 20th, 2025 at 11:25am PST. This information is for your personal, non-commercial use and may not be used for any purpose other than to identify prospective properties you may be interested in purchasing. Display of MLS data is usually deemed reliable but is NOT guaranteed accurate by the MLS. Buyers are responsible for verifying the accuracy of all information and should investigate the data themselves or retain appropriate professionals. Information from sources other than the Listing Agent may have been included in the MLS data. Unless otherwise specified in writing, Broker/Agent has not and will not verify any information obtained from other sources. The Broker/Agent providing the information contained herein may or may not have been the Listing and/or Selling Agent.