$0 - 19031 Us Highway 18 # 230, Apple Valley

  • 0.70Acres

Apple Valley Home For Sale

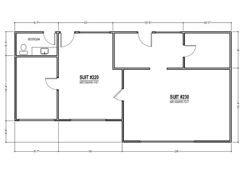
Joshua Knolls Professional Office Building is well situated on the south side of Hwy 18, at the corner of Yanan Rd in the Town of Apple Valley. This stretch of Hwy 18 sees high daily traffic counts exceeding 25,800 ADT. A two-story multi-tenant property, Joshua Knolls boasts longtime tenants such as Green Valley Home Health Services, Tri-Cities Physical Therapy, among others. Hands on ownership strives to ensure that tenants at the building are happy and satisfied with the provided facility. Located in close proximity to many professional offices and medical facilities and is less than a mile east of St. Mary’s Regional Medical Center. The building is equipped with a shared common conference room furnished and available for all tenants to use as well as common area restrooms. Suite 240 & 250 – Two (2) entrances into the office area from the common area hallway corridor. Two (2) reception areas or open collaborative space. Two (2) private offices with windows providing excellent natural light. Suite 220 – One large open office area suitable for multiple work stations or cubicles.  Smaller entry area suitable for waiting or reception.  One private room that could be a small private office or storage room.     Suite 230 – Two rooms.  One private office, one larger open area.

Sales Agent

Sam Smith
  • Sam Smith
  • San Clemente Realtor ®
  • Phone: 949-204-5110
  • Cell: 949-204-5110
  • Contact Agent Now

Exterior

  • Lot DescriptionRectangular Lot

Essential Information

  • MLS® #HD25193677
  • Bathrooms0.00
  • Acres0.70
  • Year Built1990
  • TypeCommercial Lease
  • Sub-TypeOffice
  • StatusActive
  • Listing AgentRyan Travis
  • Listing OfficeKursch Group, Inc.

Interior

  • # of Stories2

Community Information

  • Address19031 Us Highway 18 # 230
  • AreaAPPV - Apple Valley
  • CityApple Valley
  • CountySan Bernardino
  • Zip Code92307

Additional Information

  • Date ListedAugust 27th, 2025
  • Days on Market118
  • Short SaleN
  • RE / Bank OwnedN

Similar Type Properties to HD25193677, 19031 Us Highway 18 # 230, Apple Valley

Back to Results

Apple Valley 18523 Corwin Road # J

Apple Valley,
Baths
308 Days On Market
Community:

Apple Valley 18523 Corwin Road # F

Apple Valley,
Baths
316 Days On Market
Community:

Apple Valley 18031 Us Highway 18 # B

Apple Valley,
Baths
333 Days On Market
Community:

Apple Valley 15995 Tuscola # 202

Apple Valley,
Baths
382 Days On Market
Community:

Similar Neighborhoods to "" in Apple Valley, California

Back to Results

  • City:
    Apple Valley
  • Price Range:
    $0 - $5,800
  • Current Listings:
    42
  • HOA Dues:
    $0
  • Average Price per Square Foot:
    $

Back to Search Results

Based on information from California Regional Multiple Listing Service, Inc. as of December 23rd, 2025 at 4:50pm PST. This information is for your personal, non-commercial use and may not be used for any purpose other than to identify prospective properties you may be interested in purchasing. Display of MLS data is usually deemed reliable but is NOT guaranteed accurate by the MLS. Buyers are responsible for verifying the accuracy of all information and should investigate the data themselves or retain appropriate professionals. Information from sources other than the Listing Agent may have been included in the MLS data. Unless otherwise specified in writing, Broker/Agent has not and will not verify any information obtained from other sources. The Broker/Agent providing the information contained herein may or may not have been the Listing and/or Selling Agent.