$555,000 - 618 N Howard # 122, Glendale

  • 2Beds
  • 2Baths
  • 859SQ. Feet
  • 0.99Acres

Glendale Home For Sale

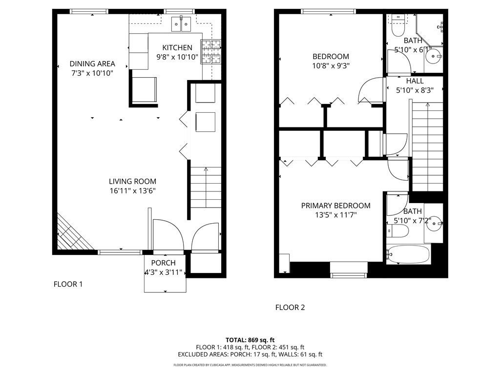
Beautifully maintained 2-bedroom, 2-bath townhouse-style condo in Glendale, CA. This inviting home features a spacious layout with one bathroom including a relaxing tub and the other a stand-up shower. Recently painted and well cared for, the unit includes an in-unit washer, gated subterranean parking, and access to a community pool and jacuzzi. Enjoy a peaceful location with easy access to nearby shops and restaurants, ideal for those who love a walkable lifestyle without being right in the center of downtown Glendale. Property as-is. No repairs will be made.

Sales Agent

Sam Smith
  • Sam Smith
  • San Clemente Realtor ®
  • Phone: 949-204-5110
  • Cell: 949-204-5110
  • Contact Agent Now

Amenities

  • AmenitiesControlled Access, Pool, Spa/Hot Tub, Storage
  • Parking Spaces2
  • ParkingAssigned
  • # of Garages2
  • GaragesAssigned
  • ViewNone
  • Has PoolYes
  • PoolAssociation

School Information

  • DistrictGlendale Unified

Essential Information

  • MLS® #DW25259521
  • Price$555,000
  • Bedrooms2
  • Bathrooms2.00
  • Full Baths2
  • Square Footage859
  • Acres0.99
  • Year Built1988
  • TypeResidential
  • Sub-TypeTownhouse
  • StatusPending
  • Listing AgentDanielle Tan
  • Listing OfficeDanielle Margeaux Tan, Broker

Exterior

  • WindowsSkylight(s)

Additional Information

  • Date ListedNovember 12th, 2025
  • Days on Market16
  • Short SaleN
  • RE / Bank OwnedN

Community Information

  • Address618 N Howard # 122
  • Area628 - Glendale-South of 134 Fwy
  • CityGlendale
  • CountyLos Angeles
  • Zip Code91206

Interior

  • InteriorLaminate, Vinyl, Wood
  • Interior FeaturesAll Bedrooms Up
  • AppliancesDishwasher, Disposal, Gas Oven, Gas Range, Microwave, Refrigerator
  • HeatingCentral, Forced Air, Fireplace(s)
  • CoolingCentral Air
  • FireplaceYes
  • FireplacesGas, Living Room
  • # of Stories3
  • StoriesTwo

Price Change History for 618 N Howard # 122, Glendale, (MLS® #DW25259521)

Date Details Price Change
Pending (from Active)

Similar Type Properties to DW25259521, 618 N Howard # 122, Glendale

Back to Results

Glendale 1340 Glenwood Road # 8

$649,000
Glendale,
2 Beds
3 Baths
1,250 SqFt
72 Days On Market
Community:

Glendale 1114 San Rafael # 7

$664,900
Glendale,
2 Beds
3 Baths
1,194 SqFt
18 Days On Market
Community:

Similar Neighborhoods to "" in Glendale, California

Back to Results

  • City:
    Glendale
  • Price Range:
    $349,943 - $3,695,000
  • Current Listings:
    119
  • HOA Dues:
    $222
  • Average Price per Square Foot:
    $742

Back to Search Results

Based on information from California Regional Multiple Listing Service, Inc. as of January 2nd, 2026 at 12:56pm PST. This information is for your personal, non-commercial use and may not be used for any purpose other than to identify prospective properties you may be interested in purchasing. Display of MLS data is usually deemed reliable but is NOT guaranteed accurate by the MLS. Buyers are responsible for verifying the accuracy of all information and should investigate the data themselves or retain appropriate professionals. Information from sources other than the Listing Agent may have been included in the MLS data. Unless otherwise specified in writing, Broker/Agent has not and will not verify any information obtained from other sources. The Broker/Agent providing the information contained herein may or may not have been the Listing and/or Selling Agent.