$515,000 - 12459 Ava Loma, Victorville

  • 5Beds
  • 3Baths
  • 2,800SQ. Feet
  • 0.15Acres

Victorville Home For Sale

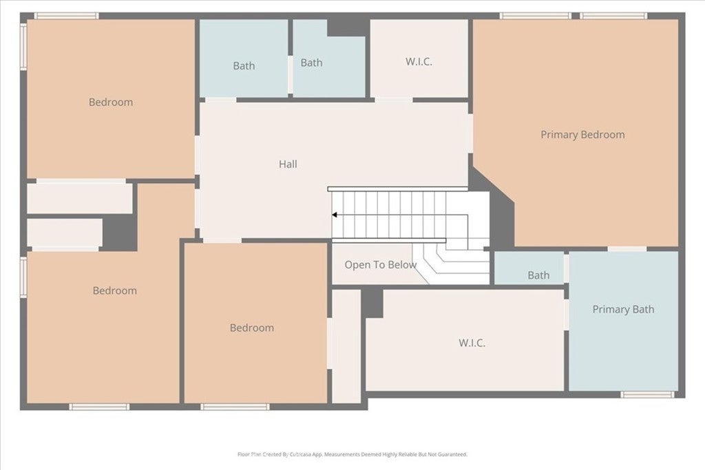
Welcome to 12459 Ava Loma St in Victorville! This beautifully refreshed 5-bedroom, 3-bathroom home offers approximately 2,800 sqft of spacious living, perfect for growing families or those who love to entertain. Freshly painted throughout, the home features a bright, clean interior with modern finishes and an inviting layout. Major bonus: the home comes equipped with PAID OFF SOLAR—delivering immediate energy savings and long-term value with no lease or additional payments. Step inside to find updated flooring and a light-filled living space with a seamless flow. The kitchen is designed for both function and style, featuring ample cabinetry, a center island, and a spacious walk-in pantry—ideal for everyday living and hosting gatherings. Upstairs, the primary suite impresses with high ceilings, creating an open and airy retreat, along with a dual vanity bathroom and a custom-built walk-in closet thoughtfully designed with extensive shelving and storage—perfect for keeping everything organized and easily accessible. Additional bedrooms offer flexibility for family, guests, or a home office. Outside, enjoy a low-maintenance backyard complete with turf and a covered patio, perfect for relaxing, entertaining, or letting kids and pets play year-round. Additional highlights include a 3-car garage, providing plenty of room for parking and storage. Conveniently located in a desirable Victorville neighborhood, this move-in ready home combines space, comfort, and modern upgrades—including the highly sought-after benefit of owned solar—don’t miss your opportunity to make it yours!

Sales Agent

Sam Smith
  • Sam Smith
  • San Clemente Realtor ®
  • Phone: 949-204-5110
  • Cell: 949-204-5110
  • Contact Agent Now

Amenities

  • UtilitiesCable Available, Electricity Connected, Natural Gas Connected, Sewer Connected, Water Connected
  • Parking Spaces3
  • ParkingConcrete, Door-Multi, Driveway, Garage Faces Front, Garage
  • # of Garages3
  • GaragesConcrete, Door-Multi, Driveway, Garage Faces Front, Garage
  • ViewMountain(s)
  • PoolNone

School Information

  • DistrictVictor Valley Union High

Essential Information

  • MLS® #CV26067241
  • Price$515,000
  • Bedrooms5
  • Bathrooms3.00
  • Full Baths3
  • Square Footage2,800
  • Acres0.15
  • Year Built2005
  • TypeResidential
  • Sub-TypeSingle Family Residence
  • StyleTraditional
  • StatusActive
  • Listing AgentHarley Adams
  • Listing OfficeDYNASTY REAL ESTATE

Exterior

  • ExteriorStucco
  • Exterior FeaturesAwning(s)
  • Lot DescriptionZeroToOneUnitAcre
  • WindowsDouble Pane Windows
  • RoofTile
  • ConstructionStucco
  • FoundationSlab

Additional Information

  • Date ListedMarch 24th, 2026
  • Days on Market9
  • Short SaleN
  • RE / Bank OwnedN

Community Information

  • Address12459 Ava Loma
  • AreaVIC - Victorville
  • CityVictorville
  • CountySan Bernardino
  • Zip Code92392

Interior

  • InteriorTile, Vinyl
  • Interior FeaturesSeparate/Formal Dining Room, Granite Counters, Pantry, Tile Counters, Walk-In Pantry, Walk-In Closet(s)
  • AppliancesDishwasher, Gas Oven, Water Heater
  • HeatingCentral
  • CoolingCentral Air, Attic Fan
  • FireplaceYes
  • FireplacesLiving Room
  • # of Stories2
  • StoriesTwo

Similar Type Properties to CV26067241, 12459 Ava Loma, Victorville

Back to Results

Victorville 12650 Cobalt

$450,000
Victorville,
3 Beds
3 Baths
2,012 SqFt
11 Days On Market
Community:

Victorville 11648 Dos Palmas

$420,000
Victorville,
4 Beds
2 Baths
1,754 SqFt
45 Days On Market
Community:

Victorville 12454 Camino Alto

$470,000
Victorville,
4 Beds
3 Baths
2,358 SqFt
50 Days On Market
Community:

Victorville 13189 Eclipse

$519,000
Victorville,
4 Beds
2 Baths
2,338 SqFt
6 Days On Market
Community:

Similar Neighborhoods to "" in Victorville, California

Back to Results

  • City:
    Victorville
  • Price Range:
    $189,000 - $999,999
  • Current Listings:
    539
  • HOA Dues:
    $35
  • Average Price per Square Foot:
    $244

Back to Search Results

Based on information from California Regional Multiple Listing Service, Inc. as of April 6th, 2026 at 10:02pm PDT. This information is for your personal, non-commercial use and may not be used for any purpose other than to identify prospective properties you may be interested in purchasing. Display of MLS data is usually deemed reliable but is NOT guaranteed accurate by the MLS. Buyers are responsible for verifying the accuracy of all information and should investigate the data themselves or retain appropriate professionals. Information from sources other than the Listing Agent may have been included in the MLS data. Unless otherwise specified in writing, Broker/Agent has not and will not verify any information obtained from other sources. The Broker/Agent providing the information contained herein may or may not have been the Listing and/or Selling Agent.