$465,000 - 948 Picaacho Drive, La Habra Heights

  • 1.66Acres

La Habra Heights Home For Sale

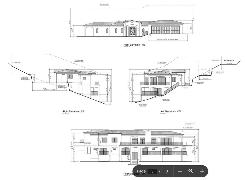
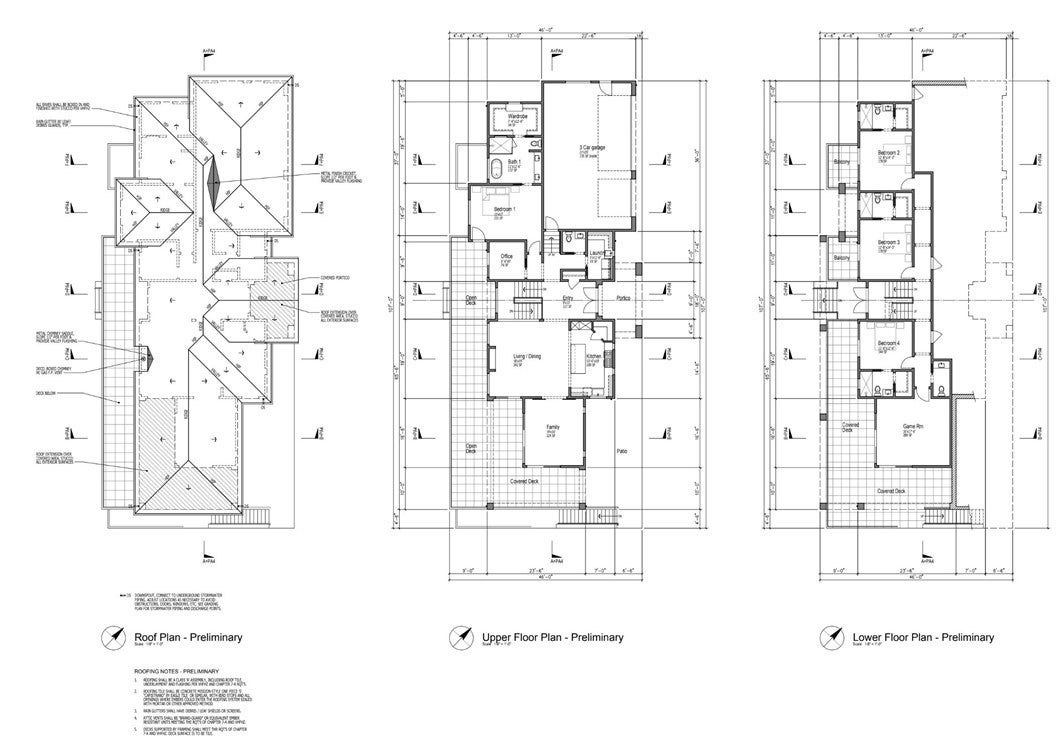
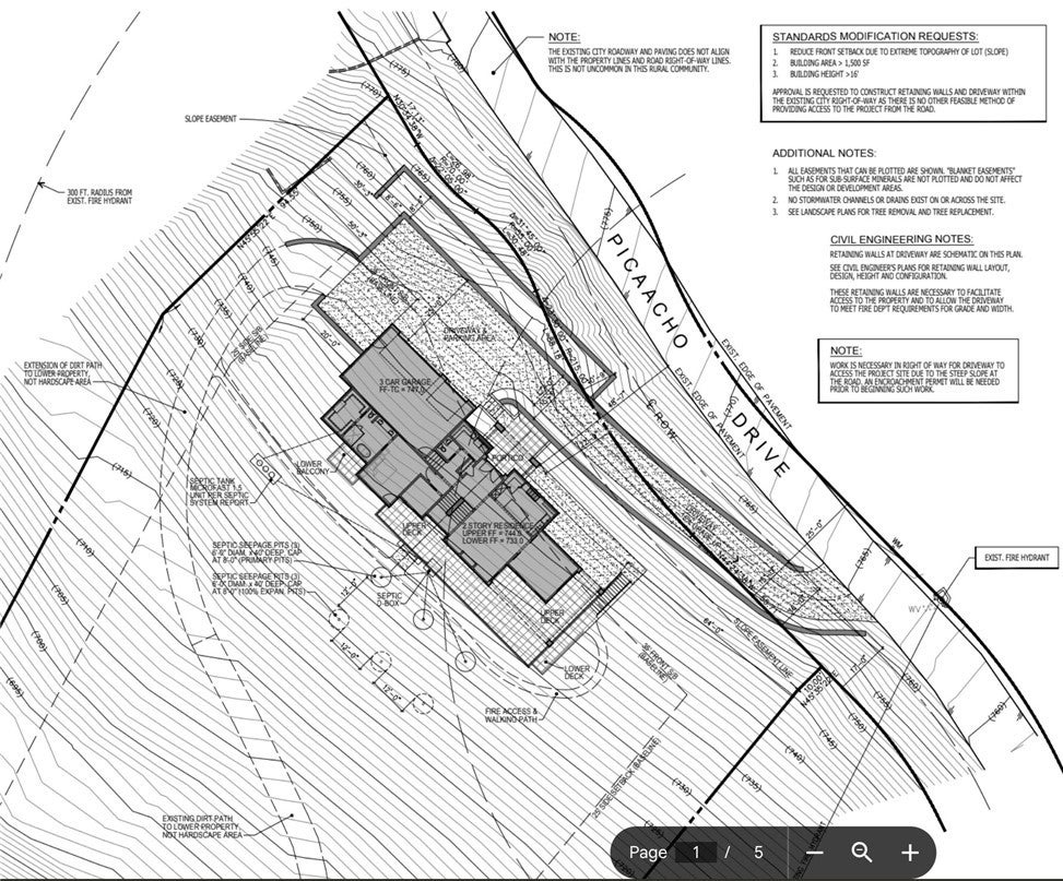
Vacant panoramic view lot with completed architectural plans for a custom luxury residence in the prestigious hills of La Habra Heights. This exceptional approximately 1.6-acre hillside parcel offers breathtaking city-light and ocean views and the opportunity to continue a thoughtfully designed approximately 3,100 square foot two-story home featuring 4 bedrooms, expansive view decks, and an attached 3-car garage, all positioned to maximize privacy and surrounding scenery. Extensive site studies and engineering work have already been completed, including soils investigation and septic feasibility, providing a significant head start for the next owner. The project has progressed through Planning, Engineering, Fire, and Landscape review with the City of La Habra Heights and is pending final civil engineering completion prior to RTI clearance, with approximately $3,500 remaining for grading plan submittal and civil clearance. The property features approximately 218 feet of frontage, approximately 387 feet of depth, and about 180 feet of width across the lower portion of the lot, creating a generous building envelope and flexible design potential. A rare small flat pad at the lower portion of the property offers additional possibilities for a future ADU, guest house, studio, pool area, garden retreat, or outdoor entertaining space, subject to city approval. Surrounded by multi-million-dollar estates and tranquil hillside landscapes, this is a rare opportunity to acquire a premier view lot with meaningful architectural and engineering progress already in place. On exceptionally clear days, Catalina Island may be visible in the distance. All information deemed reliable but not guaranteed. Buyers to independently verify plans, permits, utilities, boundaries, and development requirements.

Sales Agent

Sam Smith
  • Sam Smith
  • San Clemente Realtor ®
  • Phone: 949-204-5110
  • Cell: 949-204-5110
  • Contact Agent Now

Amenities

  • UtilitiesCable Available, Electricity Available, Natural Gas Available, Phone Available, Water Available, Sewer Not Available, Overhead Utilities
  • ViewCatalina, City Lights, Coastline, Hills, Ocean, Panoramic

Essential Information

  • MLS® #CV26041851
  • Price$465,000
  • Bathrooms0.00
  • Acres1.66
  • TypeLand
  • StatusActive
  • Listing AgentEnrique Vasquez-plaza
  • Listing OfficeCentury 21 Masters

Exterior

  • Lot DescriptionIrregular Lot, Lot Over 40000 Sqft, Sloped Down

Community Information

  • Address948 Picaacho Drive
  • Area88 - La Habra Heights
  • CityLa Habra Heights
  • CountyLos Angeles
  • Zip Code90631

Additional Information

  • Date ListedFebruary 27th, 2026
  • Days on Market43
  • ZoningR1
  • Short SaleN
  • RE / Bank OwnedN

Similar Type Properties to CV26041851, 948 Picaacho Drive, La Habra Heights

Back to Results

La Habra Heights Casalero

$389,900
La Habra Heights,
Baths
255 Days On Market
Community:

La Habra Heights Casalero Dr.

$400,000
La Habra Heights,
Baths
802 Days On Market
Community:

Similar Neighborhoods to "" in La Habra Heights, California

Back to Results

  • City:
    La Habra Heights
  • Price Range:
    $275,000 - $999,000
  • Current Listings:
    9
  • HOA Dues:
    $0
  • Average Price per Square Foot:
    $

Back to Search Results

Based on information from California Regional Multiple Listing Service, Inc. as of April 11th, 2026 at 3:51am PDT. This information is for your personal, non-commercial use and may not be used for any purpose other than to identify prospective properties you may be interested in purchasing. Display of MLS data is usually deemed reliable but is NOT guaranteed accurate by the MLS. Buyers are responsible for verifying the accuracy of all information and should investigate the data themselves or retain appropriate professionals. Information from sources other than the Listing Agent may have been included in the MLS data. Unless otherwise specified in writing, Broker/Agent has not and will not verify any information obtained from other sources. The Broker/Agent providing the information contained herein may or may not have been the Listing and/or Selling Agent.