$0 - 1869 Foothill Boulevard W, Upland

  • 0.69Acres

Upland Home For Sale

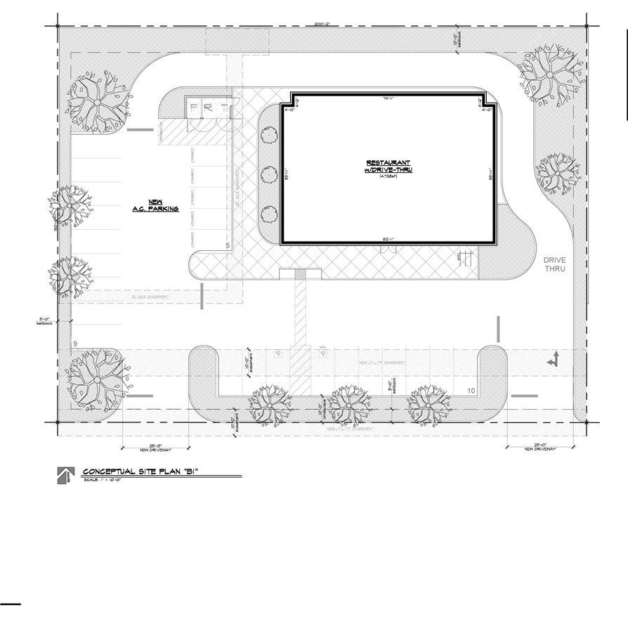
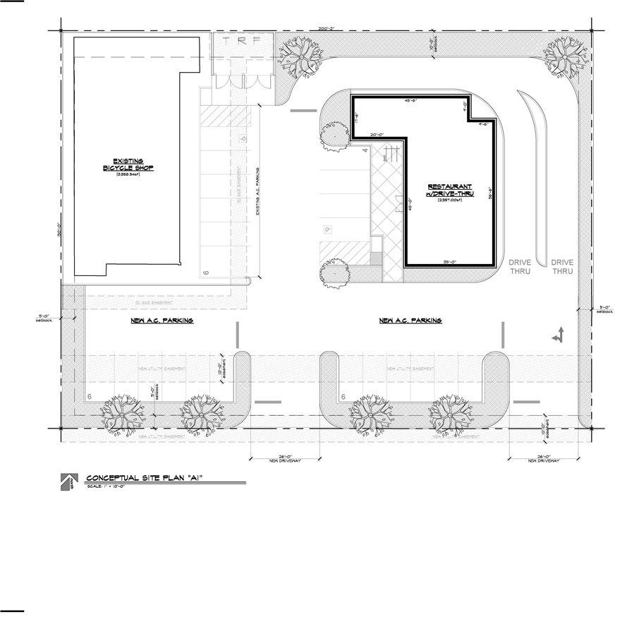
Discover an exceptional land lease opportunity at 1869 Foothill Blvd in Upland, California. This expansive 30,034-square-foot lot offers incredible potential for development in a high-traffic area, ideal for businesses seeking maximum visibility and convenience. Located directly adjacent to a bustling In-N-Out, this prime location ensures a steady flow of vehicle traffic throughout the day and evening. Whether you're looking to establish a fast-casual restaurant, retail space, or another business, this lot provides the flexibility to construct a building that meets your needs. There are options to develop up to either a 2,557-square-foot building with a drive-through or a 4,728-square-foot building with a drive-through, depending on your specific requirements. Capitalize on the drive-by traffic along Foothill Blvd and position your business for success in one of Upland's most desirable commercial corridors. Don’t miss out on this rare opportunity to secure a spot in an up-and-coming location that promises excellent returns on your investment.

Sales Agent

Sam Smith
  • Sam Smith
  • San Clemente Realtor ®
  • Phone: 949-204-5110
  • Cell: 949-204-5110
  • Contact Agent Now

Exterior

  • Lot DescriptionZeroToOneUnitAcre

Essential Information

  • MLS® #CV24182814
  • Bathrooms0.00
  • Acres0.69
  • TypeCommercial Lease
  • Sub-TypeRetail
  • StatusPending
  • Listing AgentThomas Gibson
  • Listing OfficeTHE WRIGHT ASSOCIATED COMPANIES

Interior

  • # of Stories1

Community Information

  • Address1869 Foothill Boulevard W
  • Area690 - Upland
  • CityUpland
  • CountySan Bernardino
  • Zip Code91786

Additional Information

  • Date ListedSeptember 3rd, 2024
  • Days on Market342
  • Short SaleN
  • RE / Bank OwnedN

Price Change History for 1869 Foothill Boulevard W, Upland, (MLS® #CV24182814)

Date Details Price Change
Pending (from Active)

Similar Type Properties to CV24182814, 1869 Foothill Boulevard W, Upland

Back to Results

Upland 287 N Mountain Avenue

Upland,
Baths
265 Days On Market
Community:

Upland 1595 W Foothill Boulevard

Upland,
Baths
45 Days On Market
Community:

Similar Neighborhoods to "" in Upland, California

Back to Results

  • City:
    Upland
  • Price Range:
    $0 - $1,080,000
  • Current Listings:
    33
  • HOA Dues:
    $0
  • Average Price per Square Foot:
    $

Back to Search Results

Based on information from California Regional Multiple Listing Service, Inc. as of April 20th, 2026 at 4:35am PDT. This information is for your personal, non-commercial use and may not be used for any purpose other than to identify prospective properties you may be interested in purchasing. Display of MLS data is usually deemed reliable but is NOT guaranteed accurate by the MLS. Buyers are responsible for verifying the accuracy of all information and should investigate the data themselves or retain appropriate professionals. Information from sources other than the Listing Agent may have been included in the MLS data. Unless otherwise specified in writing, Broker/Agent has not and will not verify any information obtained from other sources. The Broker/Agent providing the information contained herein may or may not have been the Listing and/or Selling Agent.