$680,000 - 22 Stanford, Lompoc

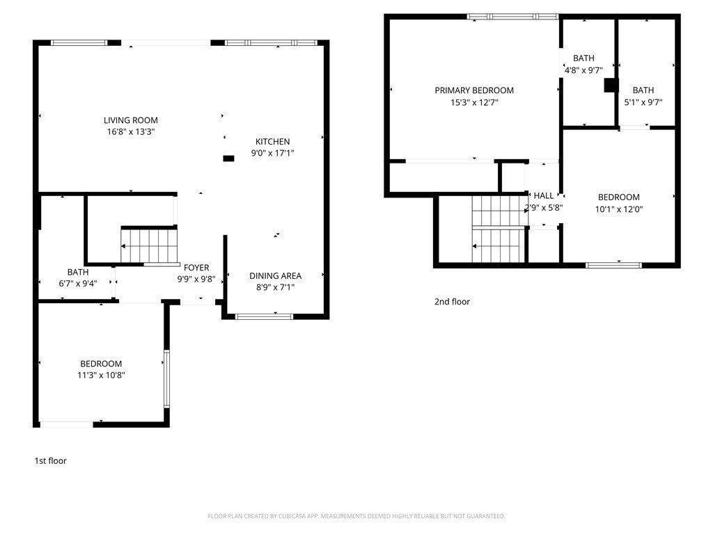
  • 2Beds
  • 3Baths
  • 1,427SQ. Feet
  • 0.06Acres

Lompoc Home For Sale

Step into this beautifully refreshed 3 bedroom 3 bathroom home and experience true golf-course living with breathtaking, unobstructed views of the 15th green and visiting deer right outside your windows! Tucked away on a quiet, cul-de-sac, this home offers a rare blend of privacy, nature and modern living. The heart of the home is the updated, open concept kitchen that flows seamlessly into a spacious great room - a perfect setting for entertaining or simply relaxing while soaking in the panoramic, park-like scenery. The living area features expansive updated windows and newer sliding glass window that frame the sweeping fairway and wildlife creating a serene backdrop year-round. Throughout the home, you'll find newer vinyl plank flooring, as well as designer upgrades to kitchen appliances, counter tops and cabinets. The primary bedroom offers a walk-in closet, a private, updated onsuite bathroom area and stunning views that make waking up feel like a retreat. The downstairs bedroom provides flexible use as a guest room, office or den. Spacious 2 car garage could hold your golf cart if you wanted one. It's rare to find a house with so many upgrades. Nearby 2 golf courses, Mission Club and La Purisma. Country Club memberships are available to round out your resort experience!

Sales Agent

Sam Smith
  • Sam Smith
  • San Clemente Realtor ®
  • Phone: 949-204-5110
  • Cell: 949-204-5110
  • Contact Agent Now

Amenities

  • AmenitiesInsurance
  • UtilitiesCable Available, Electricity Connected, Sewer Connected, Water Connected
  • Parking Spaces2
  • # of Garages2
  • ViewGolf Course
  • PoolNone

School Information

  • DistrictLompoc Unified
  • HighCabrillo

Essential Information

  • MLS® #BB25266281
  • Price$680,000
  • Bedrooms2
  • Bathrooms3.00
  • Full Baths3
  • Square Footage1,427
  • Acres0.06
  • Year Built1979
  • TypeResidential
  • Sub-TypeSingle Family Residence
  • StatusActive
  • Listing AgentGigi Santoro-robbins
  • Listing OfficeColdwell Banker Hallmark Realty

Exterior

  • Lot DescriptionZeroToOneUnitAcre

Additional Information

  • Date ListedNovember 23rd, 2025
  • Days on Market28
  • Short SaleN
  • RE / Bank OwnedN

Community Information

  • Address22 Stanford
  • Area699 - Not Defined
  • CityLompoc
  • CountySanta Barbara
  • Zip Code93436

Interior

  • InteriorVinyl
  • Interior FeaturesCeiling Fan(s), Separate/Formal Dining Room, Eat-in Kitchen, Open Floorplan, Pantry, Quartz Counters, Recessed Lighting, Bedroom on Main Level
  • AppliancesDishwasher, Gas Oven, Gas Range, Water To Refrigerator, Water Heater
  • HeatingForced Air
  • CoolingNone
  • FireplacesNone
  • # of Stories2
  • StoriesTwo

Similar Type Properties to BB25266281, 22 Stanford, Lompoc

Back to Results

Lompoc 1722 River Vista Way

$662,500
Lompoc,
4 Beds
3 Baths
1,984 SqFt
156 Days On Market
Community: South West Lmpc(54)

Lompoc 3834 Jupiter Avenue

$585,000
Lompoc,
3 Beds
2 Baths
1,368 SqFt
7 Days On Market
Community: North West Lmpc(49)

Lompoc 220 N F Street

$649,000
Lompoc,
4 Beds
2 Baths
1,574 SqFt
94 Days On Market
Community:

Lompoc 1016 E Lemon

$560,000
Lompoc,
3 Beds
2 Baths
1,697 SqFt
7 Days On Market
Community: North East Lmpc(47)

Similar Neighborhoods to "" in Lompoc, California

Back to Results

South West Lmpc(54)

  • City:
    Lompoc
  • Price Range:
    $415,000 - $662,500
  • Current Listings:
    6
  • HOA Dues:
    $276
  • Average Price per Square Foot:
    $371

North West Lmpc(49)

  • City:
    Lompoc
  • Price Range:
    $585,000 - $585,000
  • Current Listings:
    1
  • HOA Dues:
    $0
  • Average Price per Square Foot:
    $428

  • City:
    Lompoc
  • Price Range:
    $379,000 - $6,200,000
  • Current Listings:
    10
  • HOA Dues:
    $98
  • Average Price per Square Foot:
    $499

Back to Search Results

Based on information from California Regional Multiple Listing Service, Inc. as of January 23rd, 2026 at 7:20am PST. This information is for your personal, non-commercial use and may not be used for any purpose other than to identify prospective properties you may be interested in purchasing. Display of MLS data is usually deemed reliable but is NOT guaranteed accurate by the MLS. Buyers are responsible for verifying the accuracy of all information and should investigate the data themselves or retain appropriate professionals. Information from sources other than the Listing Agent may have been included in the MLS data. Unless otherwise specified in writing, Broker/Agent has not and will not verify any information obtained from other sources. The Broker/Agent providing the information contained herein may or may not have been the Listing and/or Selling Agent.