$469,000 - 1929 Glenoaks # 122, San Fernando

  • 2Beds
  • 3Baths
  • 1,348SQ. Feet
  • 3.15Acres

San Fernando Home For Sale

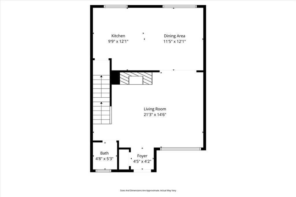
Welcome to this spacious and thoughtfully designed townhome offering 1,348 square feet of comfortable living in San Fernando. The home features two generously sized bedrooms plus a versatile bonus room on the ground level that may serve as a potential third bedroom, home office, workout space, or creative studio. This room includes a closet and two windows, offering flexibility to meet a variety of needs. A convenient half bathroom is located downstairs for guests, while upstairs includes a full bathroom with tub and shower, accented by a window that fills the space with natural light. The expansive primary suite offers exceptional space, highlighted by a wall-to-wall closet plus an additional closet and a private bathroom with an oversized vanity providing ample room to spread out. The partially remodeled kitchen has been opened up by removing overhead cabinetry, creating an inviting eat-in kitchen that flows seamlessly into the dining area. Natural light pours in through the window over the sink, and generous pantry storage adds everyday convenience. Newer natural gray-tone laminate flooring runs throughout the home, complementing the warm fireplace anchoring the living room. Large sliding glass doors open to a spacious second-level patio, ideal for relaxing or entertaining. Additional features include a two-car garage with direct access, a dedicated laundry room with storage, and access to community amenities including a pool, hot tub, and dog-friendly facilities. Ideally situated within the community, this home offers comfort, flexibility, and a welcoming atmosphere ready to be enjoyed.

Sales Agent

Sam Smith
  • Sam Smith
  • San Clemente Realtor ®
  • Phone: 949-204-5110
  • Cell: 949-204-5110
  • Contact Agent Now

Amenities

  • AmenitiesDog Park, Maintenance Grounds, Pool, Spa/Hot Tub, Trash, Water
  • Parking Spaces2
  • ParkingDirect Access, Garage, Garage Door Opener
  • # of Garages2
  • GaragesDirect Access, Garage, Garage Door Opener
  • ViewNone
  • Has PoolYes
  • PoolCommunity, In Ground, Association

Additional Information

  • Date ListedDecember 10th, 2025
  • Days on Market11
  • Short SaleN
  • RE / Bank OwnedN

Essential Information

  • MLS® #AR25275660
  • Price$469,000
  • Bedrooms2
  • Bathrooms3.00
  • Full Baths3
  • Square Footage1,348
  • Acres3.15
  • Year Built1982
  • TypeResidential
  • Sub-TypeTownhouse
  • StatusActive
  • Listing AgentRachel Bratakos
  • Listing OfficeColdwell Banker Realty

Interior

  • InteriorLaminate
  • Interior FeaturesBreakfast Bar, All Bedrooms Up
  • AppliancesDishwasher, Microwave
  • HeatingCentral
  • CoolingCentral Air
  • FireplaceYes
  • FireplacesLiving Room
  • # of Stories3
  • StoriesThree Or More

Community Information

  • Address1929 Glenoaks # 122
  • AreaSF - San Fernando
  • CitySan Fernando
  • CountyLos Angeles
  • Zip Code91340

School Information

  • DistrictLos Angeles Unified

Similar Type Properties to AR25275660, 1929 Glenoaks # 122, San Fernando

Back to Results

San Fernando 1926 Lucas Street # #2

$509,999
San Fernando,
2 Beds
2 Baths
1,136 SqFt
36 Days On Market
Community:

San Fernando 1921 Glenoaks Boulevard # 196

$484,750
San Fernando,
2 Beds
2 Baths
1,270 SqFt
50 Days On Market
Community:

San Fernando 1933 Glenoaks Boulevard # 127

$450,000
San Fernando,
3 Beds
3 Baths
1,348 SqFt
188 Days On Market
Community:

Similar Neighborhoods to "" in San Fernando, California

Back to Results

  • City:
    San Fernando
  • Price Range:
    $320,000 - $1,590,000
  • Current Listings:
    46
  • HOA Dues:
    $112
  • Average Price per Square Foot:
    $508

Back to Search Results

Based on information from California Regional Multiple Listing Service, Inc. as of December 25th, 2025 at 11:36pm PST. This information is for your personal, non-commercial use and may not be used for any purpose other than to identify prospective properties you may be interested in purchasing. Display of MLS data is usually deemed reliable but is NOT guaranteed accurate by the MLS. Buyers are responsible for verifying the accuracy of all information and should investigate the data themselves or retain appropriate professionals. Information from sources other than the Listing Agent may have been included in the MLS data. Unless otherwise specified in writing, Broker/Agent has not and will not verify any information obtained from other sources. The Broker/Agent providing the information contained herein may or may not have been the Listing and/or Selling Agent.