$525,000 - 880 W 1st Street # 604, Los Angeles

  • 1Beds
  • 2Baths
  • 1,006SQ. Feet
  • 2.85Acres

Los Angeles Home For Sale

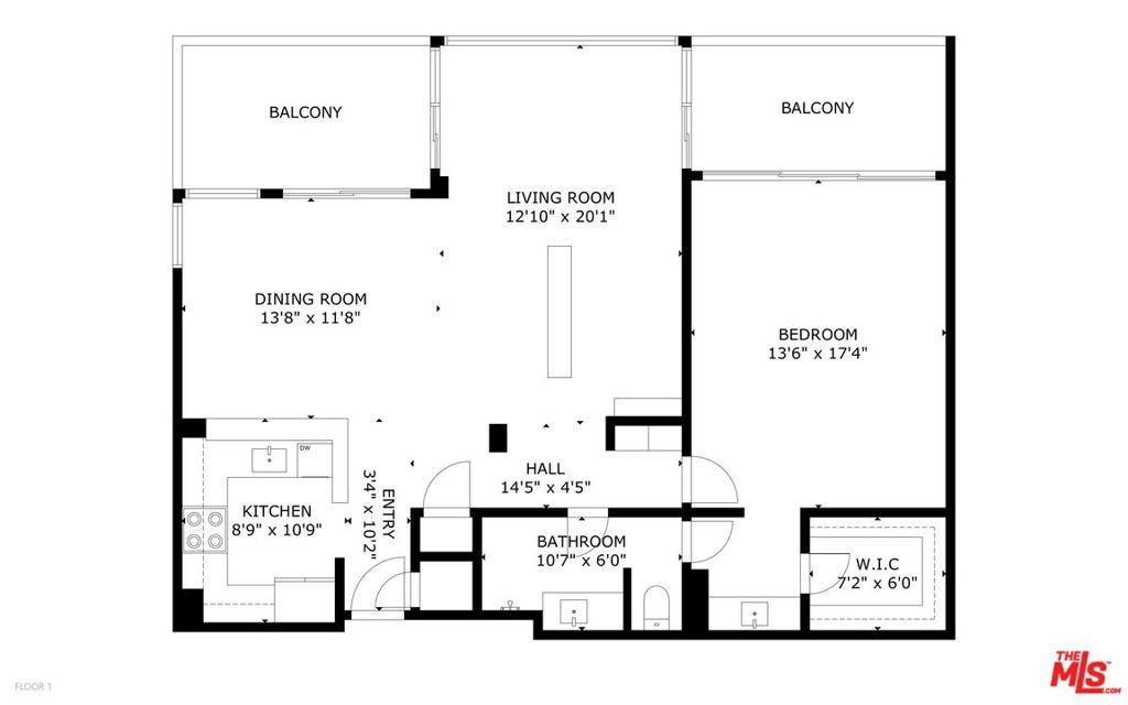
Stunning remodeled unit with quiet poolside & city views at the Promenade West. Prime downtown location with a short distance to courthouses and civic buildings. Large & Bright Open Floor Plan w/ 1006 SQFT of Living Space + 2 large private balconies with retractable awning. North East exposure offers an abundance of natural light as well as expansive views of the city, courtyard tree tops, and cooler temperatures. Kitchen has been modernized with new mid-century cabinetry, tiled backsplash, quartz countertops, and stainless steel appliances. Remodeled bathroom showcases designer tiled flooring, tiled shower, lighting, cabinetry, and vanity. Hardwood floors throughout living space along with stone tiled flooring in kitchen. Large Master Walk In Closet. 1 assigned parking space in underground secured garage included. Additional monthly parking available if needed. Promenade West is a Full Service Luxury Condominium Community Offering Ample Guest Parking, 24-Hour Security/Concierge, Pool, Spa, Exercise Room, Sauna, On Site Manager, & Basic Cable TV. Common Area Offers On-Site Dog Park, Lush Green Gardens w/ Serene Waterfalls. Local Convenience Store & Dry Cleaners Just Steps Away. Walk to Disney Concert Hall, Ahmanson Theater, Mark Taper Forum, Dorothy Chandler Pavilion, Grand Park, The Broad Museum, Restaurants, Courts, City Hall, & Metro Regional Connector. Walking score of 94 and a public transit score of 100. HOA dues cover water, trash, General liability/fire + EQ insurance. Residents pay for their own electricity + internet.

Sales Agent

Sam Smith
  • Sam Smith
  • San Clemente Realtor ®
  • Phone: 949-204-5110
  • Cell: 949-204-5110
  • Contact Agent Now

Amenities

  • AmenitiesClubhouse, Controlled Access, Maintenance Grounds, Meeting/Banquet/Party Room, Pool, Pet Restrictions, Sauna, Spa/Hot Tub, Security, Trash, Cable TV, Water
  • Parking Spaces1
  • ParkingAssigned, Controlled Entrance, Covered, Guest, Gated, Community Structure
  • GaragesAssigned, Controlled Entrance, Covered, Guest, Gated, Community Structure
  • ViewCity Lights
  • Has PoolYes
  • PoolCommunity, Fenced, Association
  • SecurityFire Detection System, Fire Sprinkler System, 24 Hour Security, Smoke Detector(s)

Essential Information

  • MLS® #25611601
  • Price$525,000
  • Bedrooms1
  • Bathrooms2.00
  • Full Baths1
  • Square Footage1,006
  • Acres2.85
  • Year Built1982
  • TypeResidential
  • Sub-TypeCondominium
  • StyleContemporary
  • StatusActive
  • Listing AgentAnh Tran
  • Listing OfficeKeller Williams Larchmont

Interior

  • InteriorWood
  • Interior FeaturesAtrium
  • AppliancesDishwasher, Electric Cooktop, Electric Oven, Disposal, Microwave, Refrigerator
  • HeatingCentral
  • CoolingCentral Air
  • FireplacesNone
  • # of Stories8
  • StoriesOne

Community Information

  • Address880 W 1st Street # 604
  • AreaC42 - Downtown L.A.
  • CityLos Angeles
  • CountyLos Angeles
  • Zip Code90012

Additional Information

  • Date ListedOctober 27th, 2025
  • Days on Market66
  • ZoningLAR5
  • Short SaleN
  • RE / Bank OwnedN

Similar Type Properties to 25611601, 880 W 1st Street # 604, Los Angeles

Back to Results

Los Angeles 100 S Alameda Street # 154

$465,000
Los Angeles,
1 Beds
1 Baths
735 SqFt
651 Days On Market
Community:

Los Angeles 121 S Hope Street # 318

$625,000
Los Angeles,
2 Beds
2 Baths
1,227 SqFt
125 Days On Market
Community:

Los Angeles 100 S Alameda Street # 353

$625,000
Los Angeles,
3 Beds
2 Baths
1,176 SqFt
121 Days On Market
Community:

Los Angeles 100 S Alameda # 348

$625,000
Los Angeles,
2 Beds
2 Baths
1,042 SqFt
49 Days On Market
Community:

Similar Neighborhoods to "" in Los Angeles, California

Back to Results

  • City:
    Los Angeles
  • Price Range:
    $249,999 - $135,000,000
  • Current Listings:
    3142
  • HOA Dues:
    $399
  • Average Price per Square Foot:
    $1,140

Back to Search Results

Based on information from California Regional Multiple Listing Service, Inc. as of December 31st, 2025 at 11:30pm PST. This information is for your personal, non-commercial use and may not be used for any purpose other than to identify prospective properties you may be interested in purchasing. Display of MLS data is usually deemed reliable but is NOT guaranteed accurate by the MLS. Buyers are responsible for verifying the accuracy of all information and should investigate the data themselves or retain appropriate professionals. Information from sources other than the Listing Agent may have been included in the MLS data. Unless otherwise specified in writing, Broker/Agent has not and will not verify any information obtained from other sources. The Broker/Agent providing the information contained herein may or may not have been the Listing and/or Selling Agent.