$349,000 - 1476 N Ave 57, Los Angeles

  • 0.25Acres

Los Angeles Home For Sale

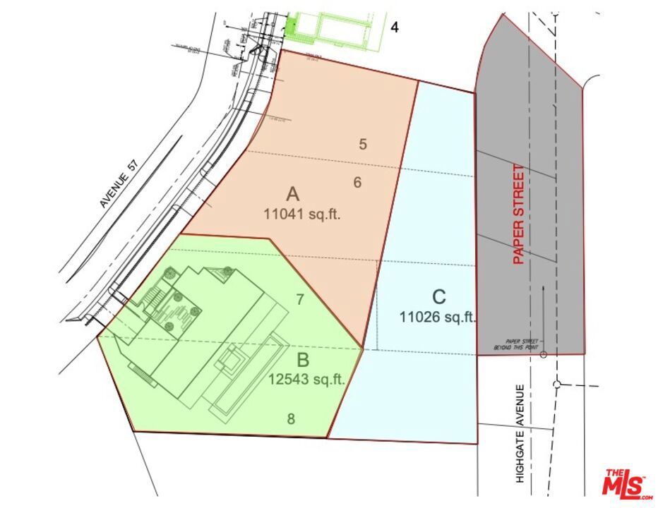
The BEST skyline view lot on the East Side - no ZAD required. Build your dream home, perched high above the sparkling streets of Highland Park, with views from your future windows to Downtown LA and beyond. This large, graded lot is ready for your plans, without the need for a ZAD waiting period. 2 additional, large, adjacent lots are also available - perhaps as a package. This listing is PARCEL "B" (APN 5485-017-023). ALSO SEE listings for PARCEL "A" 1480 N. Avenue 57 (MLS # 25585079, APN 5485-017-005) and PARCEL "C" 1425 N. Highgate Ave. (MLS# 25585123, APN 5485-017-024). Seller financing available.

Sales Agent

Sam Smith
  • Sam Smith
  • San Clemente Realtor ®
  • Phone: 949-204-5110
  • Cell: 949-204-5110
  • Contact Agent Now

Amenities

  • ViewCity Lights, Coastline, Mountain(s), Panoramic

Essential Information

  • MLS® #25585103
  • Price$349,000
  • Bathrooms0.00
  • Acres0.25
  • TypeLand
  • StatusActive
  • Listing AgentAndrew Brown
  • Listing OfficeSotheby's International Realty

Exterior

  • Lot DescriptionSloped Down

Community Information

  • Address1476 N Ave 57
  • Area632 - Highland Park
  • CityLos Angeles
  • CountyLos Angeles
  • Zip Code90042

Additional Information

  • Date ListedAugust 29th, 2025
  • Days on Market234
  • ZoningLAR11
  • Short SaleN
  • RE / Bank OwnedN

Price Change History for 1476 N Ave 57, Los Angeles, (MLS® #25585103)

Date Details Price Change
Price Reduced (from $399,000) $349,000 $50,000 (12.53%)

Similar Type Properties to 25585103, 1476 N Ave 57, Los Angeles

Back to Results

Los Angeles 133 S Avenue 64

$329,000
Los Angeles,
Baths
76 Days On Market
Community:

Los Angeles 1480 N Avenue 57

$349,000
Los Angeles,
Baths
234 Days On Market
Community:

Los Angeles 1942 N Phillips Way

$289,000
Los Angeles,
Baths
294 Days On Market
Community:

Los Angeles 1938 N Phillips Way

$299,000
Los Angeles,
Baths
294 Days On Market
Community:

Similar Neighborhoods to "" in Los Angeles, California

Back to Results

  • City:
    Los Angeles
  • Price Range:
    $1,000 - $80,000,000
  • Current Listings:
    451
  • HOA Dues:
    $0
  • Average Price per Square Foot:
    $

Back to Search Results

Based on information from California Regional Multiple Listing Service, Inc. as of April 20th, 2026 at 3:51am PDT. This information is for your personal, non-commercial use and may not be used for any purpose other than to identify prospective properties you may be interested in purchasing. Display of MLS data is usually deemed reliable but is NOT guaranteed accurate by the MLS. Buyers are responsible for verifying the accuracy of all information and should investigate the data themselves or retain appropriate professionals. Information from sources other than the Listing Agent may have been included in the MLS data. Unless otherwise specified in writing, Broker/Agent has not and will not verify any information obtained from other sources. The Broker/Agent providing the information contained herein may or may not have been the Listing and/or Selling Agent.