$1,950,000 - 2850 Alpine Blvd, Alpine

    Alpine Home For Sale

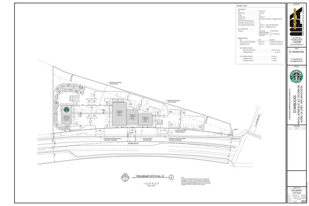
    Great Opportunity to develop this 1.79 AC Commercial lot on Alpine Blvd across from Albertsons center One of the last remaining parcels on Alpine Blvd to be developed. Possible drive-through for fast food or Starbucks type operation. Potential for 8,000 SF of retail use. Across from Alpine's regional shopping center. Zoned C-36 77,972 SF 29,300 Cars per day Excellent freeway visibility

    Sales Agent

    Sam Smith
    • Sam Smith
    • San Clemente Realtor ®
    • Phone: 949-204-5110
    • Cell: 949-204-5110
    • Contact Agent Now

    Additional Information

    • Date ListedMay 16th, 2024
    • Days on Market172
    • ZoningC-36
    • Short SaleN
    • RE / Bank OwnedN

    Essential Information

    • MLS® #240010886SD
    • Price$1,950,000
    • Bathrooms0.00
    • Acres0.00
    • TypeLand
    • StatusPending
    • Listing AgentBen Ameen
    • Listing OfficeKeller Williams Realty

    Community Information

    • Address2850 Alpine Blvd
    • Area91901 - Alpine
    • CityAlpine
    • CountySan Diego
    • Zip Code91901

    Price Change History for 2850 Alpine Blvd, Alpine, (MLS® #240010886SD)

    Date Details Price Change
    Pending
    Active
    Pending (from Active)
    Back to Search Results

    Based on information from California Regional Multiple Listing Service, Inc. as of April 19th, 2026 at 1:57am PDT. This information is for your personal, non-commercial use and may not be used for any purpose other than to identify prospective properties you may be interested in purchasing. Display of MLS data is usually deemed reliable but is NOT guaranteed accurate by the MLS. Buyers are responsible for verifying the accuracy of all information and should investigate the data themselves or retain appropriate professionals. Information from sources other than the Listing Agent may have been included in the MLS data. Unless otherwise specified in writing, Broker/Agent has not and will not verify any information obtained from other sources. The Broker/Agent providing the information contained herein may or may not have been the Listing and/or Selling Agent.