$465,000 - Vac/sierra Hwy/vic Avenue E6, Lancaster

  • 9.57Acres

Lancaster Home For Sale

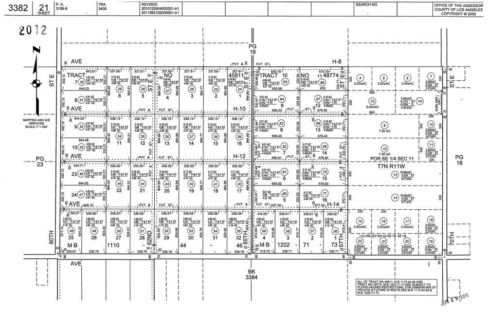
Selling 10 acres of Light Industrial Land, M-1 Zoning per LA county. Good for car storage, truck parking, warehouse and Battery Energy storage facility for Solar companies and among others. See attached documents and pictures for list of possible use for M-1 zoning. Located in the direction of growth and development, this huge vacant land has tons of potentials. Approximately 9.56 acres with wide frontage along the spine road Sierra highway just north of the city of Lancaster, about 2.7 miles. Electricity is available and located at the rear of parcel. Another road at the rear/west side of the land (secondary road). About 1.32 miles from from Fwy 14. Water nearby, about 1/2 mile away, just around the the corner of Ave E and Sierra Highway. Great investment for buy and hold investor or owner-user.

Sales Agent

Sam Smith
  • Sam Smith
  • San Clemente Realtor ®
  • Phone: 949-204-5110
  • Cell: 949-204-5110
  • Contact Agent Now

Amenities

  • UtilitiesElectricity Available, Overhead Utilities, Sewer Not Available
  • ViewPasture, Valley

Essential Information

  • MLS® #CV24112955
  • Price$465,000
  • Bathrooms0.00
  • Acres9.57
  • TypeLand
  • StatusActive
  • Listing AgentEndrico Patolot
  • Listing OfficeMAJESTIC REALTY & INVESTMENT

Exterior

  • Lot DescriptionLevel, Rectangular Lot, Street Level

Community Information

  • AddressVac/sierra Hwy/vic Avenue E6
  • AreaLAC - Lancaster
  • CityLancaster
  • CountyLos Angeles
  • Zip Code93534

Additional Information

  • Date ListedJune 3rd, 2024
  • Days on Market484
  • ZoningM-1
  • Short SaleN
  • RE / Bank OwnedN

Similar Type Properties to CV24112955, Vac/sierra Hwy/vic Avenue E6, Lancaster

Back to Results

Lancaster W 40th Street

$399,000
Lancaster,
Baths
451 Days On Market
Community:

Lancaster 3200 W Avenue L8 Avenue W

$500,000
Lancaster,
Baths
117 Days On Market
Community:

Lancaster 80 Avenue H

$400,000
Lancaster,
Baths
8 Days On Market
Community:

Lancaster 8500 W Ave J Street

$471,000
Lancaster,
Baths
129 Days On Market
Community:

Similar Neighborhoods to "" in Lancaster, California

Back to Results

  • City:
    Lancaster
  • Price Range:
    $3,990 - $12,000,000
  • Current Listings:
    1013
  • HOA Dues:
    $0
  • Average Price per Square Foot:
    $

Back to Search Results

Based on information from California Regional Multiple Listing Service, Inc. as of December 17th, 2025 at 11:20pm PST. This information is for your personal, non-commercial use and may not be used for any purpose other than to identify prospective properties you may be interested in purchasing. Display of MLS data is usually deemed reliable but is NOT guaranteed accurate by the MLS. Buyers are responsible for verifying the accuracy of all information and should investigate the data themselves or retain appropriate professionals. Information from sources other than the Listing Agent may have been included in the MLS data. Unless otherwise specified in writing, Broker/Agent has not and will not verify any information obtained from other sources. The Broker/Agent providing the information contained herein may or may not have been the Listing and/or Selling Agent.