$2,625,000 - 3933 Utah, San Diego
- 0.26Acres
San Diego Home For Sale
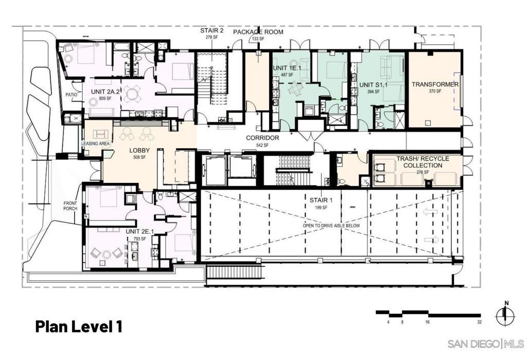
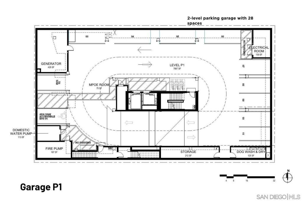
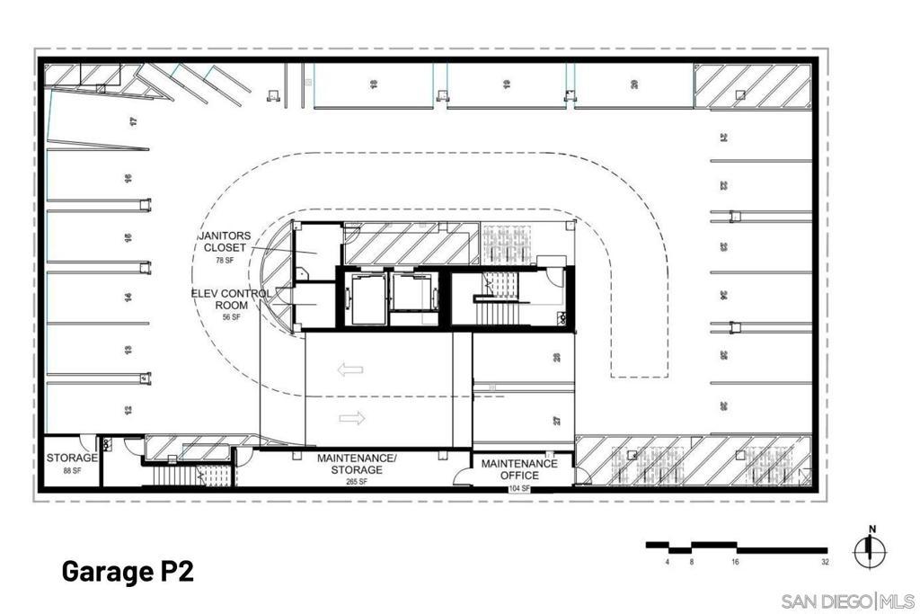
One of San Diego's rarest development opportunities, a permit-approved, shovel-ready site for an 8-story, 70-unit multifamily building in the heart of North Park. Entitlements are secured, architectural plans by Ehrlich Yanai Rhee Chaney Architects are complete, and four occupied residential units renovated in 2023 with new appliances and updated finishes generate $12,885/month ($154,620/yr) in current income while you prepare for construction. The approved project features 70 units averaging ~615 SF (studios, 1BR, 2BR), ground-floor lobby and leasing space, rooftop clubhouse and deck, and 29 underground parking spaces. Projected market rents are supported by comparable properties averaging $4.57/SF with 90%+ stabilized occupancy. At $2,625,000, just $37,500 per approved unit, this assemblage offers compelling value relative to comparable entitled land sales ranging from $69,000 to $115,000/unit. North Park is fully built out with virtually no remaining infill sites of scale. WalkScore of 97. 450,000+ jobs within 15 minutes. Both parcels (APN #446-411-11-00 + APN #446-411-12-00) must be acquired together. Architectural plans and permits for the 70-unit development are available for separate purchase. Inquire with agent for details and pricing.
Sales Agent
- Sam Smith
- San Clemente Realtor ®
- Phone: 949-204-5110
- Cell: 949-204-5110
- Contact Agent Now
Amenities
- UtilitiesNatural Gas Available
- ViewPanoramic
Essential Information
- MLS® #260008135SD
- Price$2,625,000
- Bathrooms0.00
- Acres0.26
- TypeLand
- StatusActive
- Listing AgentKen Schwartz
- Listing OfficeCentury 21 Affiliated
Exterior
- Lot DescriptionLevel
Community Information
- Address3933 Utah
- Area92104 - North Park
- SubdivisionNorth Park
- CitySan Diego
- CountySan Diego
- Zip Code92104
Additional Information
- Date ListedApril 7th, 2026
- Days on Market12
- Short SaleN
- RE / Bank OwnedN
Similar Type Properties to 260008135SD, 3933 Utah, San Diego
Back to ResultsSan Diego 4904 El Cajon Blvd
San Diego Artesian Rd & Camino Lima Parcel 33
San Diego 2550 Monument Road
San Diego Artesian Rd & Camino Lima Parcel -32
Similar Neighborhoods to "North Park" in San Diego, California
Back to ResultsTalmadge
- City:
- San Diego
- Price Range:
- $695,000 - $2,300,000
- Current Listings:
- 2
- HOA Dues:
- $0
- Average Price per Square Foot:
- $
- City:
- San Diego
- Price Range:
- $150,000 - $7,500,000
- Current Listings:
- 32
- HOA Dues:
- $0
- Average Price per Square Foot:
- $
Based on information from California Regional Multiple Listing Service, Inc. as of April 19th, 2026 at 5:55pm PDT. This information is for your personal, non-commercial use and may not be used for any purpose other than to identify prospective properties you may be interested in purchasing. Display of MLS data is usually deemed reliable but is NOT guaranteed accurate by the MLS. Buyers are responsible for verifying the accuracy of all information and should investigate the data themselves or retain appropriate professionals. Information from sources other than the Listing Agent may have been included in the MLS data. Unless otherwise specified in writing, Broker/Agent has not and will not verify any information obtained from other sources. The Broker/Agent providing the information contained herein may or may not have been the Listing and/or Selling Agent.



















