$1,029,389 - 2670 Maverick Lane, Palm Springs
- 3Beds
- 4Baths
- 2,598SQ. Feet
- 0.09Acres
Palm Springs Home For Sale
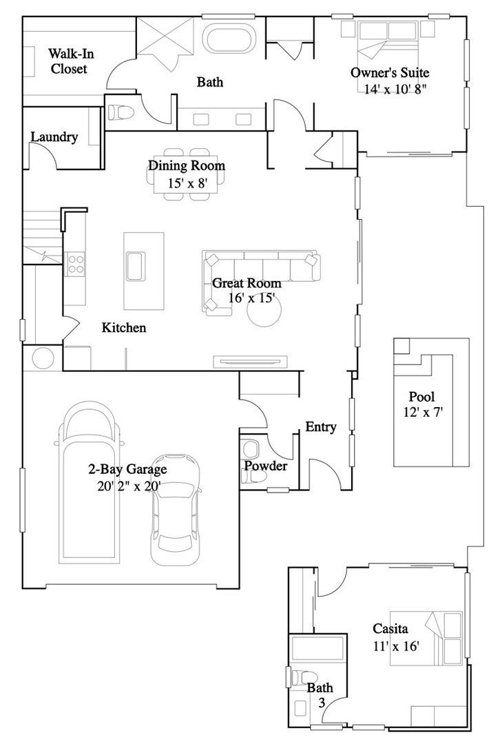
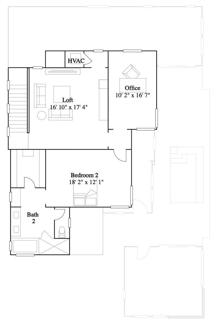
NEW CONSTRUCTION! This new two-story home encourages intimate outdoor experiences with a relaxing swimming pool. A first-floor owner’s suite provides a serene retreat with a full bathroom and walk-in closet, near a spacious and flexible open-concept floorplan where the kitchen, living and dining areas meet. New home includes a one bedroom casita with full bathroom. On the second floor, a convenient office offers a secluded work space near a versatile loft and additional bedroom. The kitchen features Miami Vena white quartz countertops. Canyon View is a new community of single-family homes for sale in Palm Springs, CA. Residents will enjoy access to an onsite park and an array of shopping, dining and entertainment options in downtown Palm Springs, just five miles away. Plan a fun-filled weekend trip to Agua Caliente Casino for upscale gaming and entertainment, or head out to one of the several local golf courses to work on your game.
Sales Agent
- Sam Smith
- San Clemente Realtor ®
- Phone: 949-204-5110
- Cell: 949-204-5110
- Contact Agent Now
Amenities
- AmenitiesMaintenance Front Yard
- UtilitiesCable Connected, Electricity Connected, Phone Connected, Sewer Connected, Underground Utilities, Water Connected
- Parking Spaces2
- ParkingDirect Access, Driveway, Garage
- # of Garages2
- GaragesDirect Access, Driveway, Garage
- ViewMountain(s)
- Has PoolYes
- PoolIn Ground, Private
- SecurityCarbon Monoxide Detector(s), Smoke Detector(s)
School Information
- DistrictPalm Springs Unified
Essential Information
- MLS® #SW25272321
- Price$1,029,389
- Bedrooms3
- Bathrooms4.00
- Full Baths3
- Half Baths1
- Square Footage2,598
- Acres0.09
- Year Built2025
- TypeResidential
- Sub-TypeSingle Family Residence
- StatusActive
- Listing AgentTodd Myatt
- Listing OfficeCentury 21 Masters
Exterior
- ExteriorFrame, Stucco
- Lot DescriptionDrip Irrigation/Bubblers, Front Yard, Level, Near Park, Sprinkler System
- ConstructionFrame, Stucco
- FoundationSlab
Additional Information
- Date ListedDecember 6th, 2025
- Days on Market10
- Short SaleN
- RE / Bank OwnedN
Community Information
- Address2670 Maverick Lane
- Area334 - South End Palm Springs
- SubdivisionCanyon View
- CityPalm Springs
- CountyRiverside
- Zip Code92264
Interior
- Interior FeaturesBreakfast Bar, Separate/Formal Dining Room, Open Floorplan, Quartz Counters, Recessed Lighting, Bedroom on Main Level, Loft, Main Level Primary, Walk-In Closet(s)
- AppliancesBuilt-In Range, Double Oven, Dishwasher, Disposal, Microwave
- HeatingCentral
- CoolingCentral Air
- FireplacesNone
- # of Stories2
- StoriesTwo
Similar Type Properties to SW25272321, 2670 Maverick Lane, Palm Springs
Back to ResultsPalm Springs 2652 Prairie Rose Lane
Palm Springs 2690 Maverick Lane
Palm Springs 2645 Bandit Lane
Palm Springs 2632 Prairie Rose Lane
Similar Neighborhoods to "Canyon View" in Palm Springs, California
Back to ResultsCanyon View
- City:
- Palm Springs
- Price Range:
- $859,408 - $1,029,389
- Current Listings:
- 6
- HOA Dues:
- $246
- Average Price per Square Foot:
- $425
Based on information from California Regional Multiple Listing Service, Inc. as of December 17th, 2025 at 8:30pm PST. This information is for your personal, non-commercial use and may not be used for any purpose other than to identify prospective properties you may be interested in purchasing. Display of MLS data is usually deemed reliable but is NOT guaranteed accurate by the MLS. Buyers are responsible for verifying the accuracy of all information and should investigate the data themselves or retain appropriate professionals. Information from sources other than the Listing Agent may have been included in the MLS data. Unless otherwise specified in writing, Broker/Agent has not and will not verify any information obtained from other sources. The Broker/Agent providing the information contained herein may or may not have been the Listing and/or Selling Agent.



























