$999,000 - 22411 Holly Court, Saugus
- 4Beds
- 3Baths
- 2,214SQ. Feet
- 0.20Acres
Saugus Home For Sale
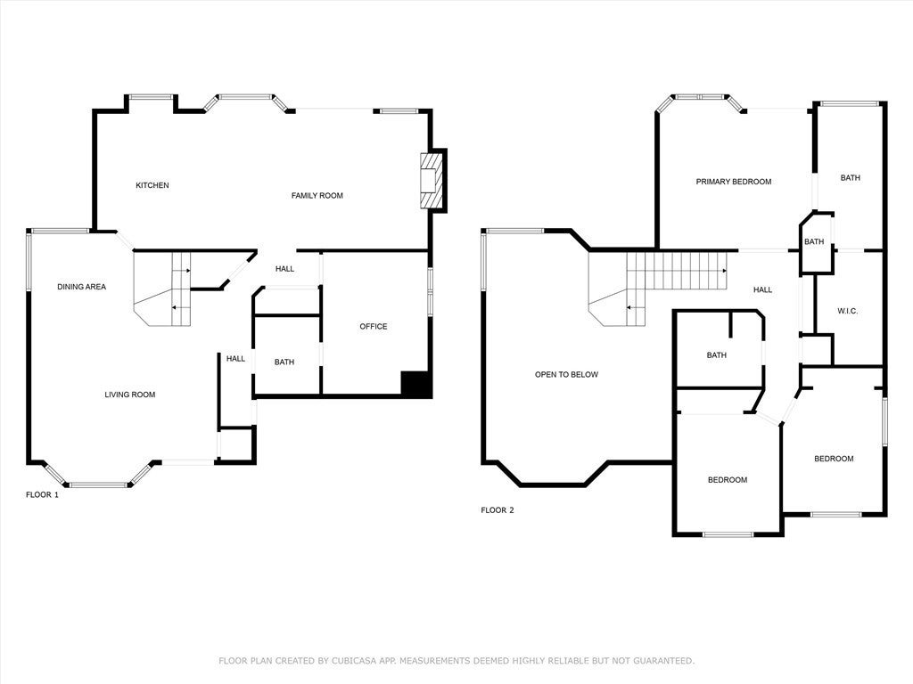
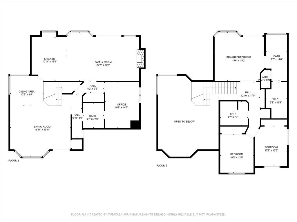
Expansive cul-de-sac lot with sweeping valley and mountain views! Some homes feel ordinary. Others feel destined. Quietly nestled at the end of a peaceful cul-de-sac in Santa Clarita, 22411 Holly Court seems to breathe with its own rhythm — calling in those who appreciate beauty, stillness, and panoramic views. From every window, the valley opens wide: palm trees swaying, golden hills stretching beyond the horizon, and sunsets painting the sky each evening. Completely upgraded just a year ago with over $150,000 in renovations, this 4-bedroom, 3-bath residence blends modern refinement with the calm of nature. Approximately 2,214 sq ft of light-filled living space rests on an 8,730 sq ft lot, offering both privacy and room to enjoy the outdoors. White oak wide plank floors, marble, and warm wood tones create a timeless, elegant flow throughout. The open-concept living area welcomes you with soaring ceilings and abundant natural light. The European-inspired kitchen is both functional and striking — featuring custom floor-to-ceiling cabinetry with soft-close drawers and doors, a built-in LG elecric oven and microwavr and a Samsung smart French-door refrigerator with touch screen family hub . The sleek design is anchored by porcelain slab countertops — large, seamless panels made of fine porcelain stoneware that mimic marble yet are lighter, eco-friendly, and resistant to stains, scratches, heat, and acids. The black porcelain backsplash with gold veining continues up the wall in one dramatic sweep. Downstairs offers a private guest suite or home office with a marble-clad walk- in shower. Upstairs, the primary suite feels like a private spa retreat — airy, calm, and filled with natural light. French doors open to a spacious balcony that captures soft breezes and glowing sunsets. The bathroom features a freestanding soaking tub positioned for the view, floating cabinetry with dual sinks, and natural bamboo woven Roman shades. Every detail — from the soft-close finishes to the minimalist fixtures was thoughtfully crafted. The backyard is fully private and expansive, framed by palms, a fruiting nectarine tree, and a young lemon tree — ideal for outdoor entertaining or quiet reflection. Located within Santa Clarita’s top-rated school district, this home offers a rare combination of tranquility, style, and convenience — with no HOA and no Mello-Roos.
Sales Agent
- Sam Smith
- San Clemente Realtor ®
- Phone: 949-204-5110
- Cell: 949-204-5110
- Contact Agent Now
Amenities
- UtilitiesElectricity Connected, Natural Gas Connected, Phone Available, Sewer Connected, Water Connected
- Parking Spaces2
- ParkingConcrete, Direct Access, Driveway, Garage Faces Front, Garage, Garage Door Opener, Paved, Public, Asphalt, Off Street, One Space, RV Access/Parking
- # of Garages2
- GaragesConcrete, Direct Access, Driveway, Garage Faces Front, Garage, Garage Door Opener, Paved, Public, Asphalt, Off Street, One Space, RV Access/Parking
- ViewCity Lights, Canyon, Hills, Mountain(s), Neighborhood, Panoramic, Valley, Trees/Woods
- PoolNone
School Information
- DistrictWilliam S. Hart Union
Essential Information
- MLS® #SR25254017
- Price$999,000
- Bedrooms4
- Bathrooms3.00
- Full Baths3
- Square Footage2,214
- Acres0.20
- Year Built1988
- TypeResidential
- Sub-TypeSingle Family Residence
- StyleContemporary, Custom, Modern, Traditional, Mediterranean
- StatusPending
- Listing AgentOlga Novikova
- Listing OfficeeXp Realty of Southern California, Inc
Exterior
- Exterior FeaturesBarbecue
- Lot DescriptionBack Yard, Corner Lot, Cul-De-Sac, Front Yard, Garden, Sprinklers In Front, Landscaped, Secluded, Flag Lot, Near Park, Near Public Transit, Sprinklers In Rear, Sprinklers Manual, Sprinklers On Side, Sprinklers Timer
- WindowsPlantation Shutters, Screens
- FoundationSlab
Additional Information
- Date ListedNovember 5th, 2025
- Days on Market25
- ZoningSCUR2
- Short SaleN
- RE / Bank OwnedN
Community Information
- Address22411 Holly Court
- AreaCOPN - Copper Hill North
- SubdivisionMtn. View Homes (MTVH)
- CitySaugus
- CountyLos Angeles
- Zip Code91390
Interior
- InteriorStone, Tile, Wood
- Interior FeaturesBeamed Ceilings, Breakfast Bar, Balcony, Cathedral Ceiling(s), Eat-in Kitchen, High Ceilings, Open Floorplan, Pantry, Two Story Ceilings, All Bedrooms Up, Bedroom on Main Level, Primary Suite, Walk-In Pantry, Walk-In Closet(s), Ceramic Counters
- AppliancesDishwasher, Electric Oven, Gas Cooktop, Disposal, Microwave, Refrigerator, Water To Refrigerator, Water Heater, Dryer, Washer, Barbecue, Freezer, Water Purifier
- HeatingCentral, Natural Gas, Fireplace(s)
- CoolingCentral Air
- FireplaceYes
- FireplacesFamily Room, Gas, Kitchen
- # of Stories2
- StoriesTwo
Price Change History for 22411 Holly Court, Saugus, (MLS® #SR25254017)
| Date | Details | Price | Change |
|---|---|---|---|
| Pending | – | – | |
| Active Under Contract (from Active) | – | – |
Similar Type Properties to SR25254017, 22411 Holly Court, Saugus
Back to ResultsSaugus 22939 Raintree Lane
Saugus 28649 Silverking
Saugus 28760 Mauch Street
Saugus 28410 Agajanian
Similar Neighborhoods to "Mtn. View Homes (MTVH)" in Saugus, California
Back to ResultsSummer Moon (summ)
- City:
- Saugus
- Price Range:
- $795,950 - $899,900
- Current Listings:
- 2
- HOA Dues:
- $195
- Average Price per Square Foot:
- $373
Wisteria (wist)
- City:
- Saugus
- Price Range:
- $899,000 - $899,000
- Current Listings:
- 1
- HOA Dues:
- $110
- Average Price per Square Foot:
- $343
Custom Copper Hill (ccopn)
- City:
- Saugus
- Price Range:
- $888,000 - $1,850,000
- Current Listings:
- 3
- HOA Dues:
- $0
- Average Price per Square Foot:
- $421
Based on information from California Regional Multiple Listing Service, Inc. as of December 27th, 2025 at 7:26pm PST. This information is for your personal, non-commercial use and may not be used for any purpose other than to identify prospective properties you may be interested in purchasing. Display of MLS data is usually deemed reliable but is NOT guaranteed accurate by the MLS. Buyers are responsible for verifying the accuracy of all information and should investigate the data themselves or retain appropriate professionals. Information from sources other than the Listing Agent may have been included in the MLS data. Unless otherwise specified in writing, Broker/Agent has not and will not verify any information obtained from other sources. The Broker/Agent providing the information contained herein may or may not have been the Listing and/or Selling Agent.













































