$1,345,000 - Studio Drive, Cayucos
- 0.08Acres
Cayucos Home For Sale
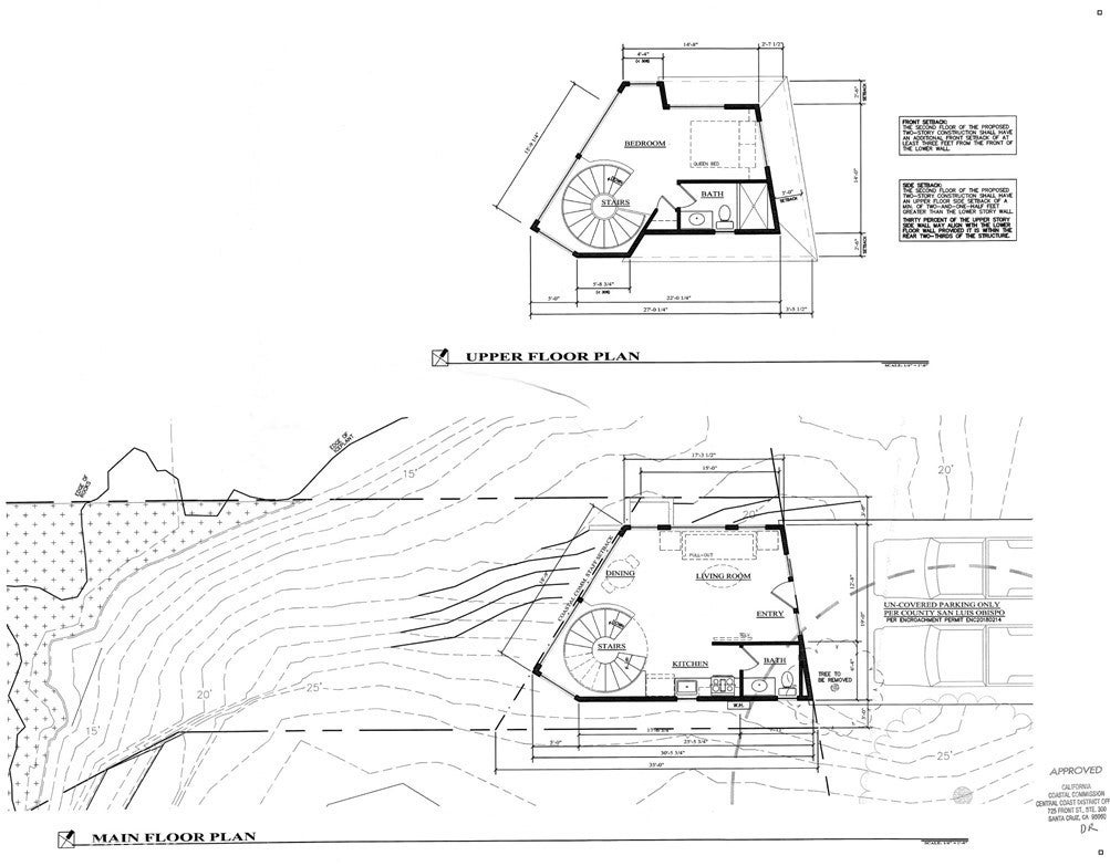
Rare oceanfront Cayucos lot with beach access and Coastal Commission approval to build! The owners spent more than a decade and $500K+ to get this extraordinary approval from the Coastal Commission to build a custom home on this beloved stretch of oceanfront. Bask in the Central Coast lifestyle with unobstructed oceanfront views, stunning sunsets, and the luxury of being able to walk straight from the property to this treasured 6-mile span of sandy beaches along SLO County's north coast. The North side of this lot is bordered by State Park land, meaning only one neighboring home for optimal panoramic views. Included with the purchase price are the custom architectural plans for a 2 bedroom 2 bathroom 1,206 sf home, along with the valid current Coastal Development Permit. This coveted Coastal Commission permit will save a new owner years of work, costs and uncertainty, allowing the next step of acquiring the building permit from SLO County to move forward. Surround yourself with everything Caycuos and the Central Coast have to offer, from charming coastal towns, pristine beaches, miles of hiking and protected open space, wineries, renowned restaurants and local farmers markets, all along this idyllic slice of California. Both the Bay Area and Los Angeles are a 3-4 hour drive, and the nearest regional airport is just 20 miles in San Luis Obispo which flies direct to major hubs including Los Angeles, San Francisco, San Diego, Phoenix, Dallas, Denver, Portland, Seattle and Las Vegas.
Sales Agent
- Sam Smith
- San Clemente Realtor ®
- Phone: 949-204-5110
- Cell: 949-204-5110
- Contact Agent Now
Amenities
- UtilitiesElectricity Available, Natural Gas Available, Sewer Available, Water Available
- ViewCoastline, Ocean, Panoramic, Pier, Water
- WaterfrontBeach Access, Beach Front, Ocean Access, Ocean Front, Ocean Side Of Highway
Essential Information
- MLS® #SC24096185
- Price$1,345,000
- Bathrooms0.00
- Acres0.08
- TypeLand
- StatusActive
- Listing AgentEllie Washington
- Listing OfficeCompass
Exterior
- Lot DescriptionZeroToOneUnitAcre, Bluff, Corners Marked
Community Information
- AddressStudio Drive
- AreaCAYU - Cayucos
- SubdivisionStrand (530)
- CityCayucos
- CountySan Luis Obispo
- Zip Code93430
Additional Information
- Date ListedMay 17th, 2024
- Days on Market549
- Zoning10
- Short SaleN
- RE / Bank OwnedN
Price Change History for Studio Drive, Cayucos, (MLS® #SC24096185)
| Date | Details | Price | Change |
|---|---|---|---|
| Price Reduced (from $1,390,000) | $1,345,000 | $45,000 (3.24%) |
Based on information from California Regional Multiple Listing Service, Inc. as of December 13th, 2025 at 3:20am PST. This information is for your personal, non-commercial use and may not be used for any purpose other than to identify prospective properties you may be interested in purchasing. Display of MLS data is usually deemed reliable but is NOT guaranteed accurate by the MLS. Buyers are responsible for verifying the accuracy of all information and should investigate the data themselves or retain appropriate professionals. Information from sources other than the Listing Agent may have been included in the MLS data. Unless otherwise specified in writing, Broker/Agent has not and will not verify any information obtained from other sources. The Broker/Agent providing the information contained herein may or may not have been the Listing and/or Selling Agent.



























