$749,000 - 1325 Medford Road, Pasadena
- 0.16Acres
Pasadena Home For Sale
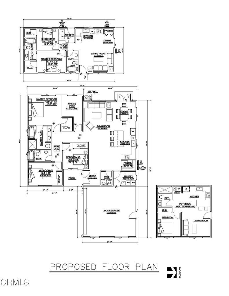
Rare opportunity to build your dream home in Upper Hastings Ranch with a fully cleared lot with Ready to Issue (RTI) permits for a single family home PLUS an ADU! Lot with panoramic views and nestled at the end of a quiet cul-de-sac in the highly sought-after Upper Hastings Ranch neighborhood. Approved permits enable you to build an 1800SF 3br + office / 2.5 ba single family home and an 800sf 2br / 2ba ADU. In addition, drawings are complete for a potential 1br/1ba JADU (not submitted for approval and no guarantees provided for approval). This is a rare opportunity to purchase a lot with RTI permits in an the prestigious Hastings Ranch area where the surrounding blocks are full of residences. Hastings Ranch is known for its charming community and community driven holiday light displays! The location is amazing with Hastings Ranch shopping and convenience to Eaton Canyon Golf Course, Caltech, Rose Bowl, Metro, nearby parks and farmers' market, and quick access to the 210 freeway.
Sales Agent
- Sam Smith
- San Clemente Realtor ®
- Phone: 949-204-5110
- Cell: 949-204-5110
- Contact Agent Now
Amenities
- UtilitiesElectricity Connected, Sewer Connected, Water Connected, See Remarks
- ViewValley
Essential Information
- MLS® #P1-25130
- Price$749,000
- Bathrooms0.00
- Acres0.16
- TypeLand
- StatusActive
- Listing AgentConnie Chang
- Listing OfficePacific Village Realty
Exterior
- Lot DescriptionSprinklers None
Community Information
- Address1325 Medford Road
- Area646 - Pasadena (NE)
- SubdivisionNot Applicable
- CityPasadena
- CountyLos Angeles
Additional Information
- Date ListedDecember 7th, 2025
- Days on Market14
- ZoningPSR6
- Short SaleN
- RE / Bank OwnedN
Similar Type Properties to P1-25130, 1325 Medford Road, Pasadena
Back to ResultsPasadena 3880 Startouch Drive
Pasadena 3597 Shaw Ranch Road
Pasadena 2905 New York Drive
Pasadena 165 S Altadena Drive
Similar Neighborhoods to "Not Applicable" in Pasadena, California
Back to ResultsNot Applicable
- City:
- Pasadena
- Price Range:
- $100,000 - $1,500,000
- Current Listings:
- 6
- HOA Dues:
- $0
- Average Price per Square Foot:
- $
- City:
- Pasadena
- Price Range:
- $249,000 - $5,500,000
- Current Listings:
- 17
- HOA Dues:
- $0
- Average Price per Square Foot:
- $
Based on information from California Regional Multiple Listing Service, Inc. as of December 22nd, 2025 at 10:40am PST. This information is for your personal, non-commercial use and may not be used for any purpose other than to identify prospective properties you may be interested in purchasing. Display of MLS data is usually deemed reliable but is NOT guaranteed accurate by the MLS. Buyers are responsible for verifying the accuracy of all information and should investigate the data themselves or retain appropriate professionals. Information from sources other than the Listing Agent may have been included in the MLS data. Unless otherwise specified in writing, Broker/Agent has not and will not verify any information obtained from other sources. The Broker/Agent providing the information contained herein may or may not have been the Listing and/or Selling Agent.

















