$949,900 - 4700 E Washington Avenue, Orange
- 3Beds
- 2Baths
- 1,526SQ. Feet
- 3.99Acres
Orange Home For Sale
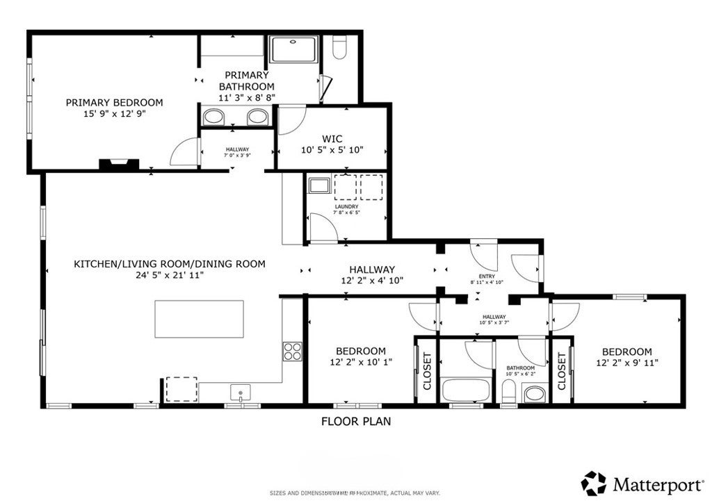
Welcome to 4700 E Washington Ave, nestled within the desirable gated community of Orchard Walk in Orange. Built in 2018, this stunning single-level residence offers 3 bedrooms and 2 bathrooms across 1,526 square feet of thoughtfully designed living space. Ideally positioned as a private end unit and attached on only one side, the home enjoys an abundance of natural light and the feel of a detached single-family residence. An inviting hallway draws you into the open-concept great room that seamlessly blends the kitchen, dining, and living areas. The chef-inspired kitchen features a large center island perfect for entertaining, while the dining space opens to a charming patio, ideal for indoor-outdoor living. The spacious primary suite offers a peaceful retreat with an en suite bathroom that includes a separate vanity area, walk-in shower, and walk-in closet with organizers. Two additional bedrooms are thoughtfully situated in their own private wing near the front of the home. Additional highlights include a convenient indoor laundry room with a sink, direct access to the attached two-car garage, and modern finishes throughout. Residents of Orchard Walk enjoy resort-style amenities including an outdoor fireplace, BBQ area, community garden, and the security of a gated entrance. Conveniently located near shopping, dining, and major freeways. Don't miss this rare opportunity!
Sales Agent
- Sam Smith
- San Clemente Realtor ®
- Phone: 949-204-5110
- Cell: 949-204-5110
- Contact Agent Now
Amenities
- AmenitiesCall for Rules, Controlled Access, Dog Park, Maintenance Grounds, Management, Maintenance Front Yard, Barbecue
- Parking Spaces2
- ParkingDirect Access, Door-Single, Garage Faces Front, Garage
- # of Garages2
- GaragesDirect Access, Door-Single, Garage Faces Front, Garage
- ViewNeighborhood
- PoolNone
School Information
- DistrictOrange Unified
Essential Information
- MLS® #OC26068809
- Price$949,900
- Bedrooms3
- Bathrooms2.00
- Full Baths2
- Square Footage1,526
- Acres3.99
- Year Built2018
- TypeResidential
- Sub-TypeCondominium
- StatusActive
- Listing AgentMin Seo
- Listing OfficeRedfin
Exterior
- RoofCommon Roof
Additional Information
- Date ListedApril 1st, 2026
- Days on Market12
- Short SaleN
- RE / Bank OwnedN
Community Information
- Address4700 E Washington Avenue
- Area75 - Orange, Orange Park Acres E of 55
- SubdivisionOrchard Walk
- CityOrange
- CountyOrange
- Zip Code92869
Interior
- InteriorCarpet, Tile, Vinyl
- Interior FeaturesGranite Counters, Open Floorplan, Recessed Lighting, All Bedrooms Down, Walk-In Closet(s)
- AppliancesDouble Oven, Dishwasher, ENERGY STAR Qualified Appliances, ENERGY STAR Qualified Water Heater, Electric Water Heater, Gas Oven, Microwave, Refrigerator, Tankless Water Heater, Water To Refrigerator, Water Heater, Water Purifier
- HeatingCentral
- CoolingCentral Air
- FireplaceYes
- FireplacesElectric, Primary Bedroom
- # of Stories1
- StoriesOne
Similar Type Properties to OC26068809, 4700 E Washington Avenue, Orange
Back to ResultsOrange 19091 E Country Hollow # 34
Orange 152 N Singingwood
Orange 3406 E. Lochleven Ln. # B
Orange 448 N Londonderry Lane # D
Similar Neighborhoods to "Orchard Walk" in Orange, California
Back to Results- City:
- Orange
- Price Range:
- $421,000 - $5,750,000
- Current Listings:
- 89
- HOA Dues:
- $131
- Average Price per Square Foot:
- $680
Streamhouse/vileurbanne
- City:
- Orange
- Price Range:
- $839,000 - $839,000
- Current Listings:
- 1
- HOA Dues:
- $578
- Average Price per Square Foot:
- $499
Based on information from California Regional Multiple Listing Service, Inc. as of April 13th, 2026 at 2:56am PDT. This information is for your personal, non-commercial use and may not be used for any purpose other than to identify prospective properties you may be interested in purchasing. Display of MLS data is usually deemed reliable but is NOT guaranteed accurate by the MLS. Buyers are responsible for verifying the accuracy of all information and should investigate the data themselves or retain appropriate professionals. Information from sources other than the Listing Agent may have been included in the MLS data. Unless otherwise specified in writing, Broker/Agent has not and will not verify any information obtained from other sources. The Broker/Agent providing the information contained herein may or may not have been the Listing and/or Selling Agent.





































