$770,000 - 256 W Avenida Palizada, San Clemente
- 0.15Acres
San Clemente Home For Sale
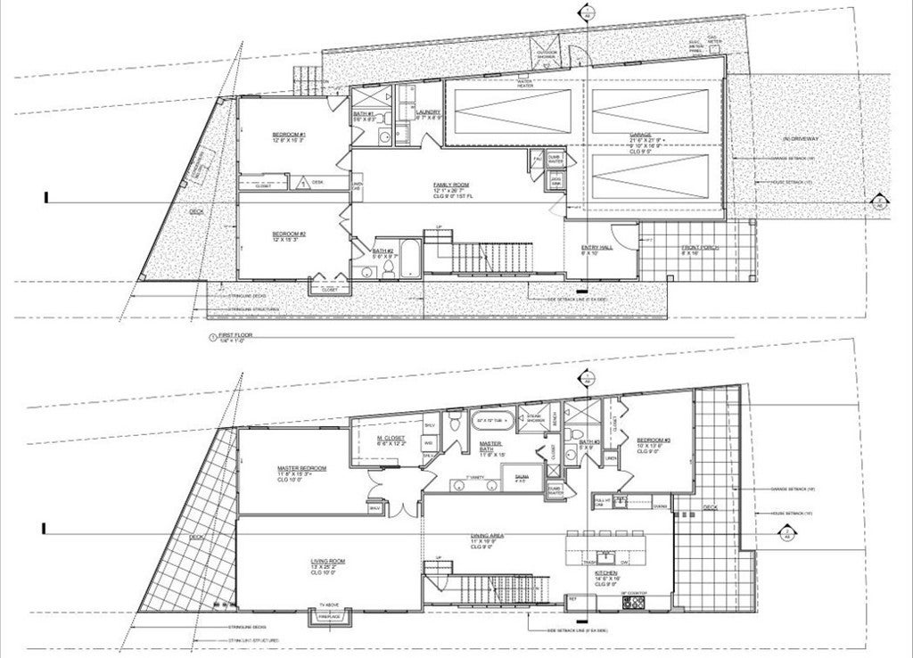
Premier Coastal Development Opportunity Easy walking distance to beach access, Linda Lane Park and popular Avenida Del Mar with loads of restaurants and shopping. Beach access takes you to the San Clemente Beach trail which leads to the San Clemente Pier, restaurants and past many surf breaks! Investors and builders will appreciate the immense value of the previously approved Coastal Commission plans for a 2,807 sq. ft. single-family home (4BR/4BA/3-car garage). Alternatively, explore the potential for a multi-unit build in this high-demand market. This is a rare chance to secure a footprint in a premier coastal market where inventory is scarce and demand remains timeless. Perfect for builders seeking their next flagship project or investors looking for a high-yield coastal asset.
Sales Agent
- Sam Smith
- San Clemente Realtor ®
- Phone: 949-204-5110
- Cell: 949-204-5110
- Contact Agent Now
Amenities
- ViewCanyon
- WaterfrontBeach Access, Ocean Access, Ocean Side Of Freeway
Essential Information
- MLS® #OC26068295
- Price$770,000
- Bathrooms0.00
- Acres0.15
- TypeLand
- StatusActive
- Listing AgentGlenn Ashworth
- Listing OfficeRoger Glenn Ashworth, Broker
Exterior
- Lot DescriptionValue In Land
Community Information
- Address256 W Avenida Palizada
- AreaSC - San Clemente Central
- SubdivisionOther
- CitySan Clemente
- CountyOrange
- Zip Code92672
Additional Information
- Date ListedMarch 29th, 2026
- Days on Market8
- ZoningR2
- Short SaleN
- RE / Bank OwnedN
Similar Type Properties to OC26068295, 256 W Avenida Palizada, San Clemente
Back to ResultsSan Clemente 524 E Avenida Pico
Similar Neighborhoods to "Other" in San Clemente, California
Back to ResultsMain Pico Corridor
- City:
- San Clemente
- Price Range:
- $670,000 - $670,000
- Current Listings:
- 1
- HOA Dues:
- $0
- Average Price per Square Foot:
- $
Based on information from California Regional Multiple Listing Service, Inc. as of April 8th, 2026 at 7:45am PDT. This information is for your personal, non-commercial use and may not be used for any purpose other than to identify prospective properties you may be interested in purchasing. Display of MLS data is usually deemed reliable but is NOT guaranteed accurate by the MLS. Buyers are responsible for verifying the accuracy of all information and should investigate the data themselves or retain appropriate professionals. Information from sources other than the Listing Agent may have been included in the MLS data. Unless otherwise specified in writing, Broker/Agent has not and will not verify any information obtained from other sources. The Broker/Agent providing the information contained herein may or may not have been the Listing and/or Selling Agent.












