$6,950 - 6206 E Cliffway Drive, Orange
- 4Beds
- 3Baths
- 2,371SQ. Feet
- 0.16Acres
Orange Home For Sale
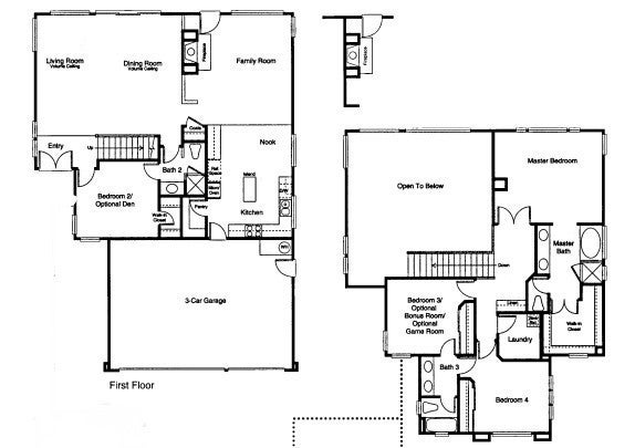
High-end home... not your typical rental. Experience the rare opportunity of unparalleled refinement in this meticulously upgraded estate. Perched within the prestigious gates at the top of Prospect Hill, you will be graced with a full view of Orange County from the backyard, living room, dining room, kitchen, and primary suite. Beyond the threshold, luxury is defined by the bespoke stone hearth, dual-sided glass fireplace and the organic warmth of DuChateau European white oak flooring that flows seamlessly through an open, light-filled floor plan. Whether you are hosting an intimate dinner or a grand soirée, the interior transitions effortlessly to the outdoors, where sweeping canyon vistas and cooling breezes create a serene backdrop. The culinary kitchen is fully equipped with professional-grade stainless steel appliances, while the integrated Aquasana whole-house filtration system ensures a wellness-focused environment. The primary suite serves as a private sanctuary, featuring a spacious walk-in closet and a refined en-suite bathroom complete with a deep soaking tub for ultimate relaxation. A rare main-level bedroom suite offers convenience for guests, while the three-car garage provides ample space for the motoring enthusiast. Located moments from the renowned Orange Hill Restaurant and offering effortless access to major corridors, this residence isn't just a home… it is a private retreat for the discerning few.
Sales Agent
- Sam Smith
- San Clemente Realtor ®
- Phone: 949-204-5110
- Cell: 949-204-5110
- Contact Agent Now
Amenities
- UtilitiesCable Available, Electricity Connected, Natural Gas Connected, Phone Available, Sewer Connected, Water Connected, None
- Parking Spaces6
- ParkingConcrete, Direct Access, Driveway, Driveway Up Slope From Street, Garage Faces Front, Garage, Garage Door Opener, Side By Side
- # of Garages3
- GaragesConcrete, Direct Access, Driveway, Driveway Up Slope From Street, Garage Faces Front, Garage, Garage Door Opener, Side By Side
- ViewCity Lights, Coastline, Hills, Mountain(s), Panoramic, Valley
- PoolNone
- SecurityCarbon Monoxide Detector(s), Smoke Detector(s)
School Information
- DistrictOrange Unified
- ElementaryLinda Vista
- MiddleSantiago
- HighEl Modena
Essential Information
- MLS® #OC25280795
- Price$6,950
- Bedrooms4
- Bathrooms3.00
- Full Baths3
- Square Footage2,371
- Acres0.16
- Year Built1996
- TypeResidential Lease
- Sub-TypeSingle Family Residence
- StyleTraditional
- StatusActive
- Listing AgentJulia Hunter
- Listing OfficeLandmark Realtors
Exterior
- ExteriorStucco
- Exterior FeaturesRain Gutters
- Lot DescriptionBack Yard, Front Yard, Lawn, Landscaped, Near Park, Yard
- WindowsPlantation Shutters
- RoofComposition
- ConstructionStucco
- FoundationSlab
Additional Information
- Date ListedDecember 27th, 2025
- Days on Market6
- Short SaleN
- RE / Bank OwnedN
Community Information
- Address6206 E Cliffway Drive
- Area72 - Orange & Garden Grove, E of Harbor, N of 22 F
- SubdivisionProspect Hill (PROH)
- CityOrange
- CountyOrange
- Zip Code92869
Interior
- InteriorWood
- Interior FeaturesBreakfast Bar, Built-in Features, Balcony, Ceiling Fan(s), Crown Molding, Cathedral Ceiling(s), Separate/Formal Dining Room, High Ceilings, Living Room Deck Attached, Open Floorplan, Quartz Counters, Stone Counters, Recessed Lighting, Two Story Ceilings, Unfurnished, Bedroom on Main Level, Entrance Foyer, Galley Kitchen, Main Level Primary, Multiple Primary Suites, Walk-In Pantry
- AppliancesSixBurnerStove, Dishwasher, Electric Oven, Gas Cooktop, Disposal, Refrigerator, Range Hood, Water To Refrigerator, Water Heater, Water Purifier, Dryer, Washer
- HeatingForced Air, Fireplace(s), Natural Gas
- CoolingCentral Air
- FireplaceYes
- FireplacesFamily Room, Gas, Living Room, Dining Room, Multi-Sided, See Through
- # of Stories2
- StoriesTwo
Similar Type Properties to OC25280795, 6206 E Cliffway Drive, Orange
Back to ResultsOrange 4720 E Washington Avenue
Orange 910 N Big Sky Lane
Orange 564 E Fellows
Orange 704 E Maple
Similar Neighborhoods to "Prospect Hill (PROH)" in Orange, California
Back to Results- City:
- Orange
- Price Range:
- $1,400 - $12,500
- Current Listings:
- 28
- HOA Dues:
- $9
- Average Price per Square Foot:
- $3
Rockhuurst
- City:
- Orange
- Price Range:
- $5,800 - $5,800
- Current Listings:
- 1
- HOA Dues:
- $0
- Average Price per Square Foot:
- $2
Other
- City:
- Orange
- Price Range:
- $2,750 - $6,700
- Current Listings:
- 7
- HOA Dues:
- $0
- Average Price per Square Foot:
- $3
Based on information from California Regional Multiple Listing Service, Inc. as of January 2nd, 2026 at 9:20am PST. This information is for your personal, non-commercial use and may not be used for any purpose other than to identify prospective properties you may be interested in purchasing. Display of MLS data is usually deemed reliable but is NOT guaranteed accurate by the MLS. Buyers are responsible for verifying the accuracy of all information and should investigate the data themselves or retain appropriate professionals. Information from sources other than the Listing Agent may have been included in the MLS data. Unless otherwise specified in writing, Broker/Agent has not and will not verify any information obtained from other sources. The Broker/Agent providing the information contained herein may or may not have been the Listing and/or Selling Agent.

















































