$1,535,000 - 83 Mission, Irvine
- 3Beds
- 3Baths
- 2,026SQ. Feet
- 0.05Acres
Irvine Home For Sale
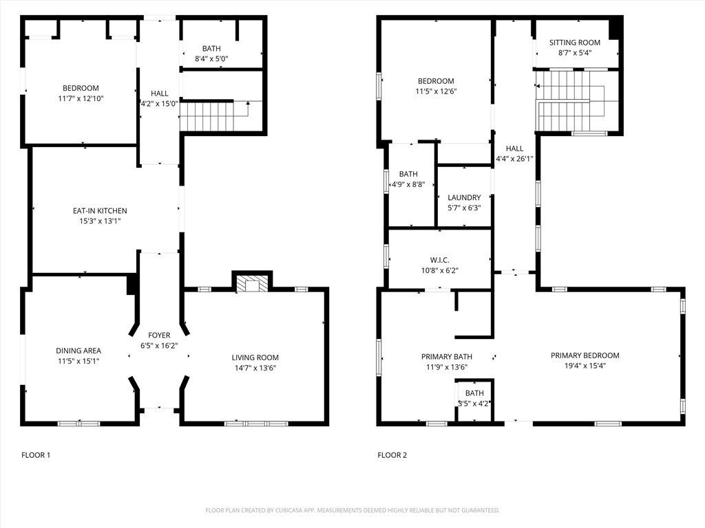
Ideally located minutes from Orange County’s top public schools, including Santiago Hills Elementary, this recently upgraded condo features new laminate flooring and fresh paint, a generously sized primary bedroom, and formal living and dining rooms, all with exceptional park views. Together with the adjacent patio, the home offers a spacious entertaining area that flows seamlessly from the living room outdoors with direct park views. The large, upgraded kitchen features stainless steel appliances and opens to a dedicated private patio, while a first-floor bedroom with a media niche offers a flexible space ideal for a family room, playroom, or guest bedroom. The second floor includes a generously sized primary bedroom with a private family room feel, an additional good-sized bedroom, a loft area well suited for study and bookshelves, and a conveniently located laundry room. The primary bathroom features a spacious closet and a jacuzzi tub. The community offers upscale amenities including a commons area, three large pools, and a beach volleyball court. Several parks are located throughout the community, including the park directly in front of the home, which features a large grassy area, barbecue stations, benches, and shaded shelters, making it ideal for birthday parties and family gatherings. Two children’s playgrounds are also located within the same park.
Sales Agent
- Sam Smith
- San Clemente Realtor ®
- Phone: 949-204-5110
- Cell: 949-204-5110
- Contact Agent Now
Amenities
- AmenitiesPicnic Area, Playground, Pool, Spa/Hot Tub
- Parking Spaces2
- ParkingGarage, Garage Door Opener
- # of Garages2
- GaragesGarage, Garage Door Opener
- ViewNone
- Has PoolYes
- PoolAssociation
School Information
- DistrictIrvine Unified
Essential Information
- MLS® #OC25240562
- Price$1,535,000
- Bedrooms3
- Bathrooms3.00
- Full Baths3
- Square Footage2,026
- Acres0.05
- Year Built2006
- TypeResidential
- Sub-TypeCondominium
- StatusActive
- Listing AgentAhmad Arshi
- Listing OfficeRegency Real Estate Brokers
Exterior
- WindowsCustom Covering(s)
Additional Information
- Date ListedOctober 15th, 2025
- Days on Market70
- Short SaleN
- RE / Bank OwnedN
Community Information
- Address83 Mission
- AreaWD - Woodbury
- SubdivisionTreo (WDTR)
- CityIrvine
- CountyOrange
- Zip Code92620
Interior
- InteriorCarpet, Tile
- Interior FeaturesBreakfast Area, Separate/Formal Dining Room, Bedroom on Main Level, Primary Suite, Walk-In Closet(s)
- AppliancesDishwasher, Disposal, Gas Range, Gas Water Heater, Microwave, Refrigerator, Water Heater, Dryer
- HeatingCentral
- CoolingCentral Air
- FireplaceYes
- FireplacesLiving Room
- # of Stories2
- StoriesTwo
Price Change History for 83 Mission, Irvine, (MLS® #OC25240562)
| Date | Details | Price | Change |
|---|---|---|---|
| Price Reduced | $1,535,000 | $13,988 (0.90%) | |
| Price Reduced (from $1,568,988) | $1,548,988 | $20,000 (1.27%) |
Similar Type Properties to OC25240562, 83 Mission, Irvine
Back to ResultsIrvine 112 Gemstone
Irvine 7 Nature
Irvine 23 Herringbone
Irvine 26 Twin Gables
Similar Neighborhoods to "Treo (WDTR)" in Irvine, California
Back to Results- City:
- Irvine
- Price Range:
- $620,000 - $5,180,000
- Current Listings:
- 94
- HOA Dues:
- $279
- Average Price per Square Foot:
- $860
Bowen Court (bowc)
- City:
- Irvine
- Price Range:
- $1,298,000 - $1,298,000
- Current Listings:
- 1
- HOA Dues:
- $210
- Average Price per Square Foot:
- $721
La Casella (lacas)
- City:
- Irvine
- Price Range:
- $1,488,888 - $1,488,888
- Current Listings:
- 1
- HOA Dues:
- $210
- Average Price per Square Foot:
- $983
Based on information from California Regional Multiple Listing Service, Inc. as of December 24th, 2025 at 10:51pm PST. This information is for your personal, non-commercial use and may not be used for any purpose other than to identify prospective properties you may be interested in purchasing. Display of MLS data is usually deemed reliable but is NOT guaranteed accurate by the MLS. Buyers are responsible for verifying the accuracy of all information and should investigate the data themselves or retain appropriate professionals. Information from sources other than the Listing Agent may have been included in the MLS data. Unless otherwise specified in writing, Broker/Agent has not and will not verify any information obtained from other sources. The Broker/Agent providing the information contained herein may or may not have been the Listing and/or Selling Agent.









































