$99,000 - 5 Park Drive, Running Springs
- 0.41Acres
Running Springs Home For Sale
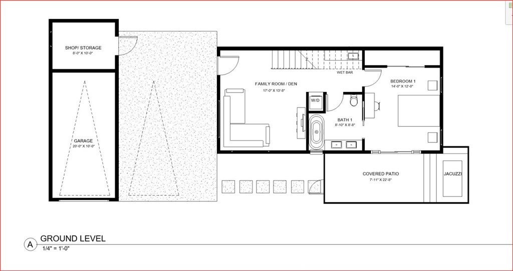
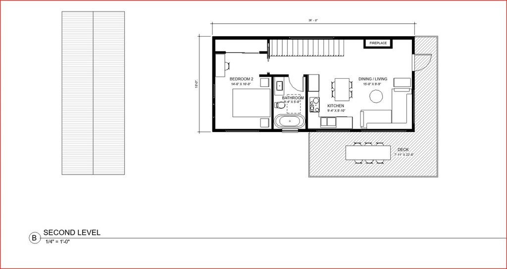
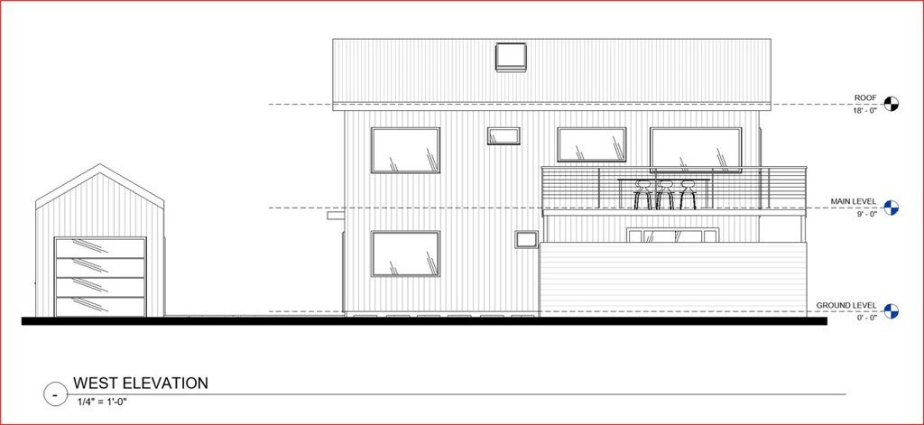
Big Price Reduction!!! Build Your Dream Home with Stunning Views in Running Springs Looking for an exceptional opportunity to build your dream home in Running Springs? Welcome to 5 Park Drive, located in the prestigious Smiley Park Country Club. This 15,000 square foot flat lot offers breathtaking panoramic views, from the city lights of Downtown Riverside to the expansive Inland Empire, and even Catalina Island on clear days. Ready-to-Build Lot with Approved Plans This lot is fully prepared for your custom mountain retreat. It includes a complete set of stamped plans that have been approved by Smiley Park Country Club and San Bernardino County. The plans feature a modern two-story design with 2 bedrooms, 2 full bathrooms, and a flexible space that could be converted into a third bedroom or den. Additionally, the plans include a detached single-car garage with a spacious workshop area and extra parking. A Nature Lover’s Paradise in Smiley Park Surrounded by mature pine trees and abundant wildlife, including deer, bears, and squirrels, this property is perfect for those who love nature and the outdoors. The lot is easily accessible year-round, thanks to its proximity to Fredalba, the main snow-plowed road. Prime Location in Running Springs Located in the sought-after Smiley Park Country Club, just a short drive from the heart of Running Springs, this lot offers the best of mountain living. Enjoy the fresh air, stunning scenery, and a close-knit community that makes Smiley Park one of the most desirable locations in the area. Your Dream Home Awaits Don’t miss this rare chance to build your custom home in one of Running Springs’ most exclusive communities. Whether you’re looking for a family retreat, a peaceful getaway, or a solid investment, 5 Park Drive in Smiley Park Country Club is the perfect choice. Contact us today to learn more about this incredible opportunity to own a piece of paradise in the San Bernardino Mountains.
Sales Agent
- Sam Smith
- San Clemente Realtor ®
- Phone: 949-204-5110
- Cell: 949-204-5110
- Contact Agent Now
Amenities
- UtilitiesCable Available, Electricity Available, Natural Gas Not Available, Phone Available, Water Available
- ViewCity Lights, Mountain(s)
Essential Information
- MLS® #EV24164892
- Price$99,000
- Bathrooms0.00
- Acres0.41
- TypeLand
- StatusActive
- Listing AgentMichael Bridges
- Listing OfficeEXP REALTY OF CALIFORNIA INC.
Exterior
- Lot DescriptionCorners Marked, Gentle Sloping, Irregular Lot
Community Information
- Address5 Park Drive
- Area288 - Running Springs
- SubdivisionSmiley Park (SMPK)
- CityRunning Springs
- CountySan Bernardino
- Zip Code92382
Additional Information
- Date ListedAugust 9th, 2024
- Days on Market501
- ZoningRS
- Short SaleN
- RE / Bank OwnedN
Price Change History for 5 Park Drive, Running Springs, (MLS® #EV24164892)
| Date | Details | Price | Change |
|---|---|---|---|
| Price Reduced | $99,000 | $16,000 (13.91%) | |
| Price Reduced (from $135,000) | $115,000 | $20,000 (14.81%) |
Similar Type Properties to EV24164892, 5 Park Drive, Running Springs
Back to ResultsRunning Springs 25 Pine Cone
Running Springs 41 Fredalba Road
Running Springs 30460 Live Oak
Running Springs 30061 Pixie Drive
Similar Neighborhoods to "Smiley Park (SMPK)" in Running Springs, California
Back to ResultsSmiley Park (smpk)
- City:
- Running Springs
- Price Range:
- $11,000 - $955,000
- Current Listings:
- 8
- HOA Dues:
- $310
- Average Price per Square Foot:
- $
Running Springs (rusg)
- City:
- Running Springs
- Price Range:
- $5,000 - $103,000
- Current Listings:
- 18
- HOA Dues:
- $7
- Average Price per Square Foot:
- $
Enchanted Forest (enfr)
- City:
- Running Springs
- Price Range:
- $45,000 - $135,000
- Current Listings:
- 5
- HOA Dues:
- $0
- Average Price per Square Foot:
- $
Based on information from California Regional Multiple Listing Service, Inc. as of December 23rd, 2025 at 8:52pm PST. This information is for your personal, non-commercial use and may not be used for any purpose other than to identify prospective properties you may be interested in purchasing. Display of MLS data is usually deemed reliable but is NOT guaranteed accurate by the MLS. Buyers are responsible for verifying the accuracy of all information and should investigate the data themselves or retain appropriate professionals. Information from sources other than the Listing Agent may have been included in the MLS data. Unless otherwise specified in writing, Broker/Agent has not and will not verify any information obtained from other sources. The Broker/Agent providing the information contained herein may or may not have been the Listing and/or Selling Agent.




















