$1,300,000 - 2415 San Pablo Ave, Oakland
- 0.06Acres
Oakland Home For Sale
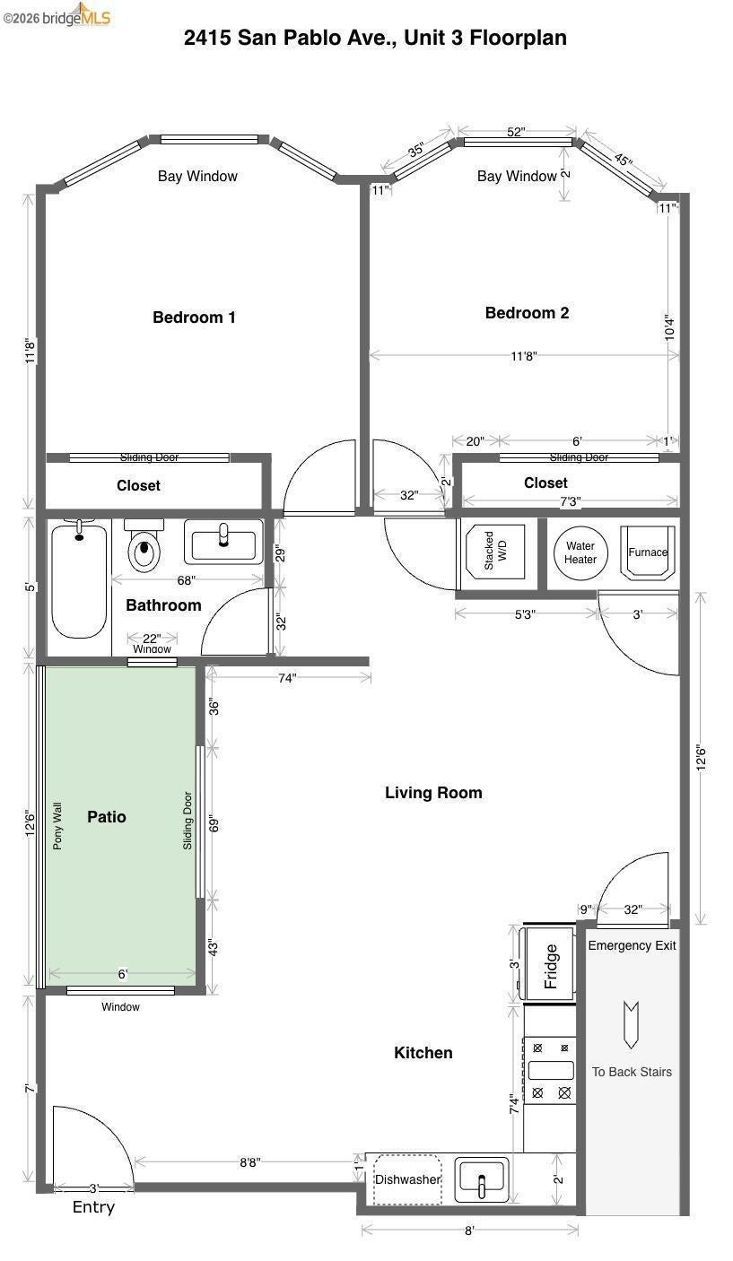
Turn-key mixed-use investment with strong in-place income and exceptional upside through rent-control exemption, ideally located along the San Pablo Ave corridor near 19th Street BART, Hwy 980, Downtown Oakland, Uptown, and Berkeley. Originally built in 1910 and substantially renovated in 2007, 2415 San Pablo Ave features 5 residential units and 1 ground-floor commercial space occupied by a long-term tattoo studio tenant of over 8 years. The residential unit mix includes one large 1-bedroom and four large 2-bedroom units, each approximately 900 SF, with modern layouts, updated flooring, contemporary kitchens, and strong natural light. Tenants also enjoy a large shared rooftop deck with panoramic views of Downtown Oakland and San Francisco. The building benefits from modern systems and major upgrades including fire sprinklers, extensive seismic improvements, exterior siding upgrades, full exterior paint completed in 2025, and various unit improvements over time. A rare low-maintenance investment with stable mixed-use income and long-term growth potential. Can also be sold with adjacent 7-unit apartment building at 2401 San Pablo Ave.
Sales Agent
- Sam Smith
- San Clemente Realtor ®
- Phone: 949-204-5110
- Cell: 949-204-5110
- Contact Agent Now
Exterior
- ExteriorStucco
- RoofShingle
- ConstructionStucco
Essential Information
- MLS® #41129073
- Price$1,300,000
- Bathrooms0.00
- Acres0.06
- Year Built2007
- TypeResidential Income
- StatusActive
- Listing AgentWillem Bos
- Listing OfficeCOMPASS
Interior
- AppliancesDryer, Washer
- HeatingForced Air
- CoolingSee Remarks
Community Information
- Address2415 San Pablo Ave
- SubdivisionWEST OAKLAND
- CityOakland
- CountyAlameda
- Zip Code94612
Additional Information
- Date ListedMarch 30th, 2026
- Days on Market15
- Short SaleN
- RE / Bank OwnedN
Similar Type Properties to 41129073, 2415 San Pablo Ave, Oakland
Back to ResultsOakland 670 32nd St
Oakland 856 21st St
Oakland 2327 San Pablo Ave
Oakland 523 25th St
Similar Neighborhoods to "WEST OAKLAND" in Oakland, California
Back to ResultsWest Oakland
- City:
- Oakland
- Price Range:
- $649,000 - $3,000,000
- Current Listings:
- 13
- HOA Dues:
- $0
- Average Price per Square Foot:
- $
Alameda
- City:
- Oakland
- Price Range:
- $1,395,000 - $1,395,000
- Current Listings:
- 1
- HOA Dues:
- $0
- Average Price per Square Foot:
- $
North Oakland
- City:
- Oakland
- Price Range:
- $725,000 - $1,425,000
- Current Listings:
- 7
- HOA Dues:
- $0
- Average Price per Square Foot:
- $
Based on information from California Regional Multiple Listing Service, Inc. as of April 14th, 2026 at 6:45pm PDT. This information is for your personal, non-commercial use and may not be used for any purpose other than to identify prospective properties you may be interested in purchasing. Display of MLS data is usually deemed reliable but is NOT guaranteed accurate by the MLS. Buyers are responsible for verifying the accuracy of all information and should investigate the data themselves or retain appropriate professionals. Information from sources other than the Listing Agent may have been included in the MLS data. Unless otherwise specified in writing, Broker/Agent has not and will not verify any information obtained from other sources. The Broker/Agent providing the information contained herein may or may not have been the Listing and/or Selling Agent.




































