$2,200,000 - 1000 W Via Vadera, Palm Springs
- 4Beds
- 4Baths
- 2,400SQ. Feet
- 0.30Acres
Palm Springs Home For Sale
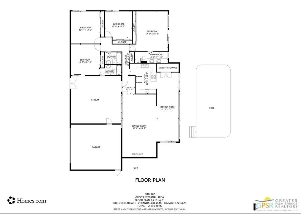
Iconic Vista Las Palmas Mid-Century Fixer | Rare Folded Plate Roof | Exceptional View Lot An exceptionally rare opportunity to reimagine and restore a true architectural icon in the heart of Vista Las Palmas, Palm Springs' most celebrated mid-century enclave. Originally designed by Palmer & Krisel for the Alexander Construction Company, this residence is one of only four known homes remaining with the coveted Folded Plate roofline, making it a prized offering for collectors and design-forward buyers. Set on one of the best view lots in Vista Las Palmas, the home enjoys sweeping, unobstructed views of the San Jacinto Mountains. The iconic folded plate roof intentionally concealed from the street creates a dramatic architectural reveal as you enter the private courtyard, setting the stage for what lies beyond. The home is a fixer and presents a rare blank canvas with unlimited renovation potential. Clerestory windows with signature diamond detailing, clean architectural lines, and strong original bones provide the foundation for a world-class transformation. The owner has already begun the planning process for a complete renovation, and conceptual floor-plan possibilities are available for review, offering insight into the property's extraordinary potential. The expansive lot and orientation lend themselves beautifully to indoor-outdoor living, resort-style grounds, and a reimagined pool and entertaining areas all framed by dramatic mountain views. Whether restored, expanded, or reinterpreted with a modern lens, the possibilities are truly endless. Offered at a compelling value relative to finished homes in the neighborhood, this iconic property represents a once-in-a-generation opportunity to create a bespoke architectural masterpiece in one of Palm Springs' most historically significant neighborhoods.
Sales Agent
- Sam Smith
- San Clemente Realtor ®
- Phone: 949-204-5110
- Cell: 949-204-5110
- Contact Agent Now
Amenities
- Parking Spaces4
- ParkingDoor-Multi, Garage, Side By Side, On Street
- # of Garages2
- GaragesDoor-Multi, Garage, Side By Side, On Street
- ViewMountain(s), Panoramic
- Has PoolYes
- PoolGunite, In Ground, Heated, Private
School Information
- DistrictPalm Springs Unified
Essential Information
- MLS® #26644455PS
- Price$2,200,000
- Bedrooms4
- Bathrooms4.00
- Full Baths3
- Square Footage2,400
- Acres0.30
- Year Built1961
- TypeResidential
- Sub-TypeSingle Family Residence
- StyleMid-Century Modern
- StatusActive
- Listing AgentDebbie Toohey
- Listing OfficePinnacle Realty Advisors
Exterior
- ExteriorStucco, Stone
- Lot DescriptionBack Yard
- ConstructionStucco, Stone
- FoundationSlab
Additional Information
- Date ListedJanuary 30th, 2026
- Days on Market13
- ZoningR1C
- Short SaleN
- RE / Bank OwnedN
Community Information
- Address1000 W Via Vadera
- Area332 - Central Palm Springs
- SubdivisionVista Las Palmas
- CityPalm Springs
- CountyRiverside
- Zip Code92262
Interior
- InteriorCarpet
- Interior FeaturesBeamed Ceilings, Ceiling Fan(s), Separate/Formal Dining Room
- AppliancesDishwasher, Disposal, Refrigerator, Dryer, Washer
- HeatingCentral, Fireplace(s), Natural Gas
- CoolingCentral Air
- FireplaceYes
- FireplacesLiving Room
- # of Stories1
- StoriesOne
Similar Type Properties to 26644455PS, 1000 W Via Vadera, Palm Springs
Back to ResultsPalm Springs 623 W Regal Drive
Palm Springs 1010 W Friar Court
Palm Springs 473 N Burton Way
Palm Springs 620 N Camino Real
Similar Neighborhoods to "Vista Las Palmas" in Palm Springs, California
Back to ResultsVista Las Palmas
- City:
- Palm Springs
- Price Range:
- $2,195,000 - $5,500,000
- Current Listings:
- 9
- HOA Dues:
- $33
- Average Price per Square Foot:
- $1,130
- City:
- Palm Springs
- Price Range:
- $149,999 - $2,499,999
- Current Listings:
- 83
- HOA Dues:
- $324
- Average Price per Square Foot:
- $465
Movie Colony
- City:
- Palm Springs
- Price Range:
- $2,150,000 - $10,500,000
- Current Listings:
- 6
- HOA Dues:
- $0
- Average Price per Square Foot:
- $1,167
Based on information from California Regional Multiple Listing Service, Inc. as of February 12th, 2026 at 7:35pm PST. This information is for your personal, non-commercial use and may not be used for any purpose other than to identify prospective properties you may be interested in purchasing. Display of MLS data is usually deemed reliable but is NOT guaranteed accurate by the MLS. Buyers are responsible for verifying the accuracy of all information and should investigate the data themselves or retain appropriate professionals. Information from sources other than the Listing Agent may have been included in the MLS data. Unless otherwise specified in writing, Broker/Agent has not and will not verify any information obtained from other sources. The Broker/Agent providing the information contained herein may or may not have been the Listing and/or Selling Agent.



































