$899,000 - 13438 Floral, Poway
- 4Beds
- 3Baths
- 1,891SQ. Feet
- 0.17Acres
Poway Home For Sale
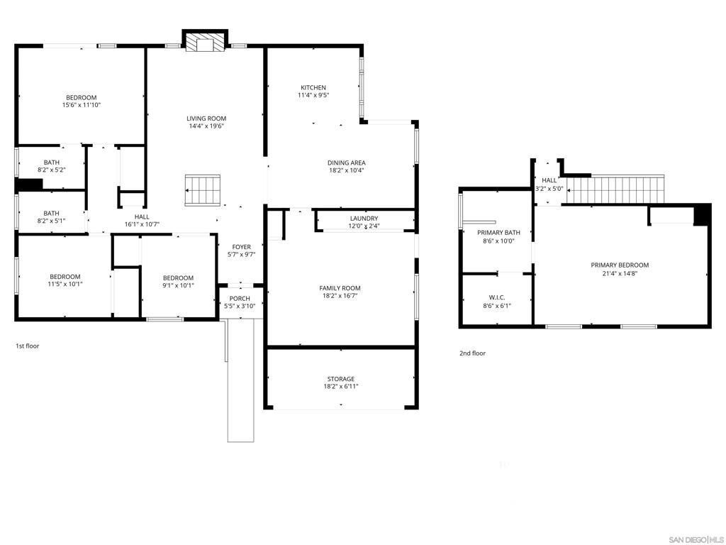
4 bedrooms and a full 3 baths. Quiet street. Move in ready home with a pool and an above ground spa. Two rooms could be primary. One downstairs and one large one upstairs (this was 2 rooms when it was built, now one large mster bedroom, the only room upstairs). Huge vaulted ceilings in the living room give this is grand feel. 49 solar panels and a new solar battery system. see attached. Recent SDGE bill was 23.00. Floor plan is in the pictures. Garage door is still on the front of this garage. Garage is partially converted to a family room. This is the room with the large TV in the pics. This is not permitted. This garage conversion is not part of the square footed listed in MLS. Garage has a few feet deep of storage. New owner could opt to remove one wall and turn this back into a garage.
Sales Agent
- Sam Smith
- San Clemente Realtor ®
- Phone: 949-204-5110
- Cell: 949-204-5110
- Contact Agent Now
Amenities
- Parking Spaces4
- ParkingDirect Access, Driveway, Garage
- # of Garages2
- GaragesDirect Access, Driveway, Garage
- Has PoolYes
- PoolIn Ground
Additional Information
- Date ListedApril 13th, 2026
- Days on Market6
- ZoningR-1:SINGLE
- Short SaleN
- RE / Bank OwnedN
Essential Information
- MLS® #260008644SD
- Price$899,000
- Bedrooms4
- Bathrooms3.00
- Full Baths3
- Square Footage1,891
- Acres0.17
- Year Built1971
- TypeResidential
- Sub-TypeSingle Family Residence
- StatusActive
- Listing AgentLee Schwartz
- Listing OfficeTeam Metro
Exterior
- RoofComposition
Community Information
- Address13438 Floral
- Area92064 - Poway
- SubdivisionPoway
- CityPoway
- CountySan Diego
- Zip Code92064
Interior
- AppliancesGas Range, Refrigerator
- HeatingForced Air, Natural Gas
- CoolingCentral Air
- FireplaceYes
- FireplacesLiving Room
- # of Stories2
- StoriesTwo
Similar Type Properties to 260008644SD, 13438 Floral, Poway
Back to ResultsPoway 14513 Mirando
Poway 13442 Mountainside Dr
Poway 14125 Halper
Poway 13447 Orange Blossom Ln
Similar Neighborhoods to "Poway" in Poway, California
Back to ResultsPoway
- City:
- Poway
- Price Range:
- $365,000 - $9,499,000
- Current Listings:
- 75
- HOA Dues:
- $170
- Average Price per Square Foot:
- $643
Based on information from California Regional Multiple Listing Service, Inc. as of April 19th, 2026 at 2:27am PDT. This information is for your personal, non-commercial use and may not be used for any purpose other than to identify prospective properties you may be interested in purchasing. Display of MLS data is usually deemed reliable but is NOT guaranteed accurate by the MLS. Buyers are responsible for verifying the accuracy of all information and should investigate the data themselves or retain appropriate professionals. Information from sources other than the Listing Agent may have been included in the MLS data. Unless otherwise specified in writing, Broker/Agent has not and will not verify any information obtained from other sources. The Broker/Agent providing the information contained herein may or may not have been the Listing and/or Selling Agent.












































































