$595,000 - 66665 1st Street, Desert Hot Springs
- 0.31Acres
Desert Hot Springs Home For Sale
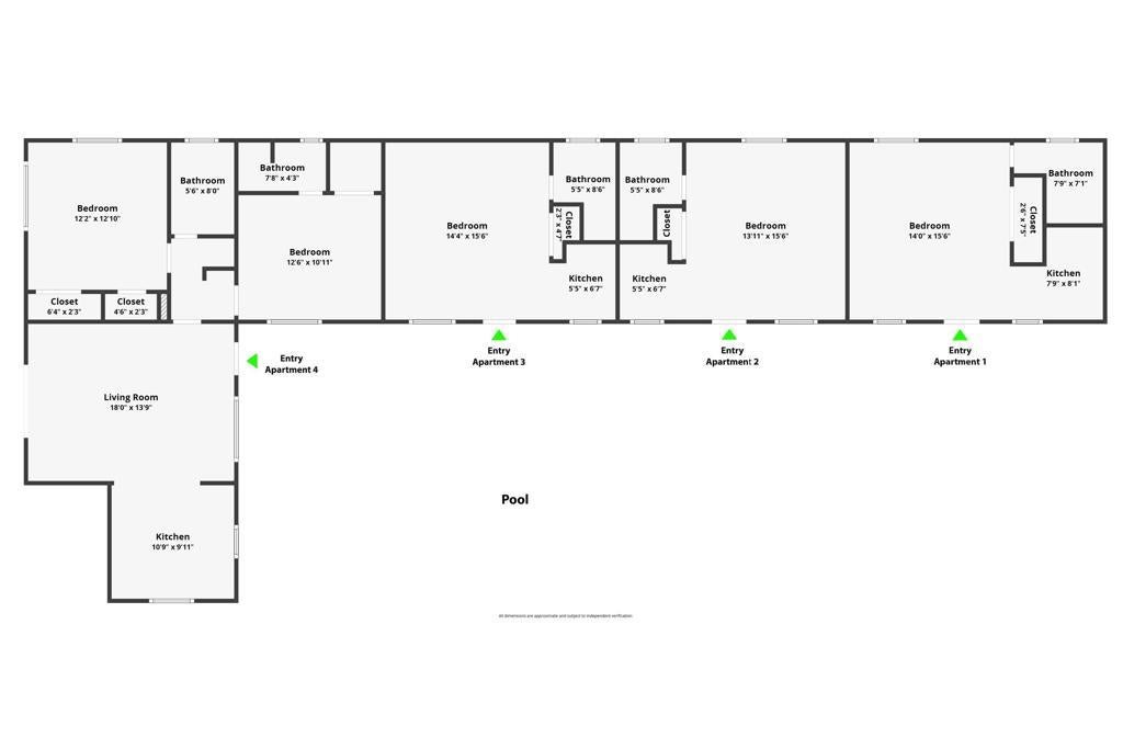
A smart investment with built-in income and room to grow, this centrally located Desert Hot Springs four-plex offers flexibility, steady cash flow, and the potential to add even more value over time.The property features three studio units currently operating as Airbnb rentals, each generating approximately $1,200 per month, along with a two-bedroom, two-bath unit leased as a long-term rental. This balanced unit mix allows for multiple income options while providing immediate returns.Amenities include a fenced pool, a separate lounging area for outdoor relaxation, and on-site parking designated for tenants. The layout supports both short-term and long-term occupancy, making the property appealing to a broad range of renters.Adding significant value is the adjacent lot, which is included in the sale and part of the same parcel as the four-plex. The lot cannot be sold separately. The City of Desert Hot Springs has indicated it would be approved for permits for either an ADU or a duplex featuring two-bedroom, two-bath units and a two-car garage, offering a clear opportunity to expand the property and increase rental income over time.Conveniently located near downtown Desert Hot Springs with easy access to main roads, shopping, and everyday essentials, this property offers a compelling opportunity for investors seeking income today with the ability to grow tomorrow.
Sales Agent
- Sam Smith
- San Clemente Realtor ®
- Phone: 949-204-5110
- Cell: 949-204-5110
- Contact Agent Now
Amenities
- Parking Spaces4
- ParkingOn Street, Side By Side, Unassigned
- GaragesOn Street, Side By Side, Unassigned
- ViewCity Lights, Mountain(s)
- Has PoolYes
- PoolCommunity, Gunite, In Ground
- SecurityGated Community
Additional Information
- Date ListedJanuary 8th, 2026
- Days on Market13
- Short SaleN
- RE / Bank OwnedN
Essential Information
- MLS® #219140995PS
- Price$595,000
- Bathrooms0.00
- Acres0.31
- Year Built1962
- TypeResidential Income
- StyleContemporary
- StatusActive
- Listing AgentSandra Quinn
- Listing OfficeRealty Trust
Exterior
- Lot DescriptionCorner Lot, Level
- RoofFoam
Community Information
- Address66665 1st Street
- Area340 - Desert Hot Springs
- SubdivisionNot Applicable-1
- CityDesert Hot Springs
- CountyRiverside
- Zip Code92240
Interior
- InteriorTile
- AppliancesElectric Cooktop, Gas Cooktop, Refrigerator, Water Heater
- HeatingBaseboard
- CoolingWall/Window Unit(s)
- # of Stories1
- StoriesOne
Similar Type Properties to 219140995PS, 66665 1st Street, Desert Hot Springs
Back to ResultsDesert Hot Springs 66550 San Diego Dr Drive
Desert Hot Springs 66254 Desert View Avenue
Desert Hot Springs N/a
Desert Hot Springs 66590 Joseph Way
Similar Neighborhoods to "Not Applicable-1" in Desert Hot Springs, California
Back to ResultsNot Applicable-1
- City:
- Desert Hot Springs
- Price Range:
- $365,900 - $3,495,000
- Current Listings:
- 8
- HOA Dues:
- $0
- Average Price per Square Foot:
- $
Hacienda Heights
- City:
- Desert Hot Springs
- Price Range:
- $575,000 - $1,975,000
- Current Listings:
- 3
- HOA Dues:
- $0
- Average Price per Square Foot:
- $564
Other
- City:
- Desert Hot Springs
- Price Range:
- $650,000 - $650,000
- Current Listings:
- 1
- HOA Dues:
- $0
- Average Price per Square Foot:
- $
Based on information from California Regional Multiple Listing Service, Inc. as of January 21st, 2026 at 6:26pm PST. This information is for your personal, non-commercial use and may not be used for any purpose other than to identify prospective properties you may be interested in purchasing. Display of MLS data is usually deemed reliable but is NOT guaranteed accurate by the MLS. Buyers are responsible for verifying the accuracy of all information and should investigate the data themselves or retain appropriate professionals. Information from sources other than the Listing Agent may have been included in the MLS data. Unless otherwise specified in writing, Broker/Agent has not and will not verify any information obtained from other sources. The Broker/Agent providing the information contained herein may or may not have been the Listing and/or Selling Agent.







































